Upein kattonäkymin avara viidennen kerroksen yksiö Roihuvuoren sydämessä!
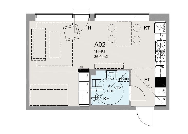
Tässä heti vapaassa kodissa on kaikki tarvittava, moderni keittotila, tilava kylpyhuone ja alkovi, jossa myös kaappitilaa.
Samassa rapussa yhtiön saunatila ja kerhohuone.
Kaikki arjen palvelut lähietäisyydellä ja liikkumaan pääset kätevästi busseilla ja metrolla. Suosittu Roihuvuoren Kirsikkapuisto pienen kävelymatkan päässä.
Kysy lisää autopaikan ostomahdollisuudesta välittäjältäsi!
Soita tai laita viesti, niin sovitaan näyttöaika!
Esittely
Su 24.5.2026 klo 15.30 – 15.50
Esittelijä

Tilaa ilmainen arviokäynti
Asunnonvaihto kannattaa aloittaa nykyisen asunnon hinnan arvioinnilla. Näin saat raamit uusille unelmillesi.
Asunnon perustiedot
| Kotiavain | 80458811 |
|---|---|
| Osoite | Strömsinlahdenpolku 11, 00820 Helsinki |
| Tyyppi | Kerrostalo |
| Omistusmuoto | Oma |
| Huoneistoselitelmä | 1h, kt, kh/wc (yj. 1h+kt) |
| Huoneet | 1 |
| Asuintilojen pinta-ala | 36 m² |
| Kokonaispinta-ala | 36 m² |
| Lisätietoja pinta-alasta | Yhtiöjärjestyksen mukainen ja isännöitsijäntodistuksen mukainen |
| Kerros | 5/6 |
| Rakennusvuosi | 2019 |
| Käyttöönottovuosi | 2019 |
| Vapautuminen | Heti |
Hinta ja kustannukset
| Myyntihinta | 55 038 € |
|---|---|
| Velkaosuus | 115 862 € |
| Velaton hinta | 170 900 € |
| Neliöhinta | 4 747,22 €/m² |
| Hoitovastike | 172,80 € / kk |
| Rahoitusvastike | 705,64 € / kk |
| Yhtiövastike yhteensä | 977,44 € / kk |
| Muu vastike | 99 € / kk |
| Muut maksut | Lisätietoja vastikkeista: Vesimaksu on ennakkomaksu, joka tasataan kerran vuodessa todellisen kulutuksen mukaan. Hallituksella valtuudet tarvittaessa periä enintään 2 kk ylimääräinen hoitovastike |
| Vesimaksu | 20 € / hlö |
Asunnon lisätiedot
| Sauna | Taloyhtiössä sauna |
|---|---|
| Parveke | Ei |
| Tietoliikenne | Laajakaista. Elisa. |
| Muuta kauppaan kuuluvaa | Sälekaihtimet |
| Asunnon kunto | Hyvä |
| Lämmitysjärjestelmän kuvaus | Kaukolämpö |
| Sähköliittymä siirtyy | Ei |
| Käyttö- ja luovutusrajoitukset | Asuinhuoneisto autopaikkojen lunastusoikeus osakkailla |
Asunnon tilat ja materiaalit
| Pääasiallinen rakennusmateriaali | Betoni |
|---|---|
| Keittiön kuvaus | Liesi (Induktioliesi), työtasot (laminaatti), seinät (laatta), lattiat (parketti), astianpesukone, liesituuletin, liesi ja jääkaappipakastin |
| Kylpyhuoneen kuvaus | WC-istuin, pesukoneliitäntä, suihkuseinä, lattialämmitys, peilikaappi ja suihku, seinät (kaakeli), lattiat (laatta) |
| Olohuoneen kuvaus | Seinät (maali), lattiat (parketti) |
| Säilytystilojen kuvaus | Kaapistot, kellarikomero, kaapistot, kellarikomero |
| Kattotyyppi | Tasakatto |
| Katon kuvaus | Huopakate |
Taloyhtiö
| Taloyhtiön nimi | Asunto Oy Helsingin Hohto |
|---|---|
| Isännöitsijän yhteystiedot | Roihuvuoren Lämpö Oy, Jukka Herrala, 09 759 7000, jukka.herrala@roihuvuorenlampo.fi |
| Huolto | Huoltoyhtiö |
| Hissi | Kyllä |
| Taloyhtiöön kuuluu | Kerhohuone |
| Taloyhtiön autopaikat | Muut tiedot: Autotalli-/ autohalli-/ autokatospaikkoja 20 kpl (autopaikat omina osakkeinaan) |
| Muuta taloyhtiöstä | Pesutupa, urheiluvälinevarasto ja huoneistokohtaiset varastot, sauna |
| Tehdyt remontit | 2020 1. vuoden takuutarkastustöitä 2021 2. vuoden takuutarkastustöitä |
| Tulevat remontit | IV-nuohous, mittaus ja säätö 2025 Aurinkopaneeliselvitys, maalämpöselvitys ja pihan kunnostusta 2026 Kiinteistön kuntoarvio 2028 |
| Energialuokka | C2013. On lain edellyttämä energiatodistus. Todistuksen laatimispv. 9.3.2017 |
| Tontin pinta-ala | 1 415 m² |
| Tontin omistus | Vuokra |
| Tontin vuokra | 54 596 € |
| Tontin vuokranantaja | Helsingin kaupunki |
| Tontin vuokrasopimus päättyy | 31.12.2075 |
| Kaavoitustiedot | Helsingin kaupunki, hel.fi, 09 3101691 |
| Kaavoitustilanne | Asemakaava |
Palvelut ja liikenneyhteydet
| Palvelut | Roihuvuoren ja Herttoniemen monipuoliset palvelut. Lähiruokakaupat pienen kävelymatkan päässä. |
|---|---|
| Koulut | Alueella |
| Päiväkodit | Useita päiväkoteja alueella |
| Liikenneyhteydet | Bussit, metro Siilitie ja Herttoniemi |





