Konalantie 39, Helsinki (Konala)

252 900 € 51 m² 2h, avok., s, kh, lasit. parveke (Yj. 2h+kt+s)
Myyntihinta 165 099,38 €
Asuinpinta-ala 51 m²
Huoneita 2
Rakennusvuosi 2017
Tyyppi Kerrostalo
Kaupunki Helsinki
Kaupunginosa Konala

Tästä myyntiin hurmaava, neliöitään suurempi koti kehittyvästä Konalasta.
Asunnon kaikki pinnat ovat hyvässä kunnossa ja se onkin täysin muuttovalmis. Asunnon isolla, lasitetulla, etelään suuntautuvalla parvekkeella vietät aikaa myrskyisälläkin säällä. Yhtiön tontti on tämän asunnon osalta lunastettu.
Kysy lisää autopaikan ostomahdollisuudesta välittäjältäsi!
Tämä asunto myydään vuokrattuna.
Ota yhteyttä välittäjään ja varaa oma esittelyaikasi!

Tilaa ilmainen arviokäynti​

Asunnonvaihto kannattaa aloittaa nykyisen asunnon hinnan arvioinnilla. Näin saat raamit uusille unelmillesi.​

Tilaa ilmainen arviokäynti​

Asunnon perustiedot

Kotiavain 80458897
Osoite Konalantie 39, 00390 Helsinki
Tyyppi Kerrostalo
Omistusmuoto Oma
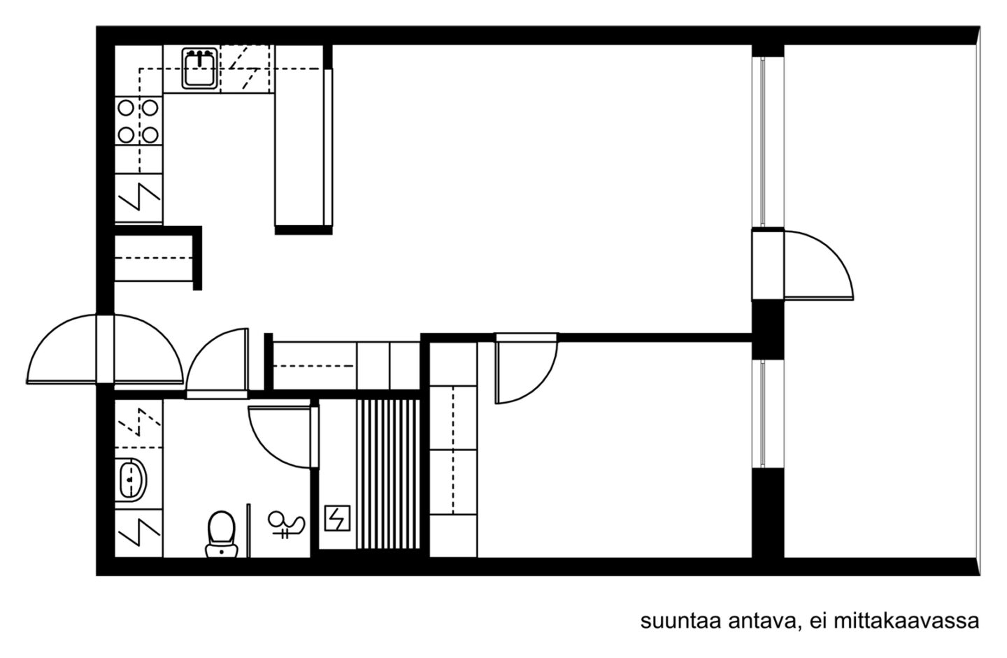
Huoneistoselitelmä 2h, avok., s, kh, lasit. parveke (Yj. 2h+kt+s)
Huoneet 2
Asuintilojen pinta-ala 51 m²
Kokonaispinta-ala 51 m²
Lisätietoja pinta-alasta Isännöitsijäntodistuksen mukainen ja yhtiöjärjestyksen mukainen
Kerros 2/5
Rakennusvuosi 2017
Käyttöönottovuosi 2017
Vapautuminen Heti

Hinta ja kustannukset

Myyntihinta 165 099,38 €
Velkaosuus 87 800,62 €
Velaton hinta 252 900 €
Neliöhinta 4 958,82 €/m²
Hoitovastike 270,30 € / kk
Rahoitusvastike 612 € / kk
Yhtiövastike yhteensä 882,30 € / kk
Muut maksut Lisätietoja vastikkeista: Vesimaksu on ennakkomaksu, tasaus vuosittain. Hallituksella on valtuus periä korkeintaan kaksi ylimääräistä hoitovastiketta tarvittaessa
Vesimaksu 20 Kulutuksen mukaan

Asunnon lisätiedot

Sauna Oma sauna
Parveke Kyllä
Parvekkeen kuvaus Lasitettu
Parvekkeen ilmansuunta Etelä
Tietoliikenne Taloverkko. Elisa 25 M.
Muuta kauppaan kuuluvaa Verhokiskot. Lisätietoja sisältyvistä varusteista: huoneistokohtainen ilmanvaihtokone, naulakko, sälekaihtimet/rullaverhot.
Asunnon kunto Hyvä
Lämmitysjärjestelmän kuvaus Kaukolämpö
Sähköliittymä siirtyy Kyllä
Lunastusoikeus yhtiöllä Kyllä
Lunastusoikeus osakkailla Kyllä
Käyttö- ja luovutusrajoitukset Lunastusoikeus koskee vain autohalliosakkeita ja varastoja, Yj 9 §. Asuinhuoneisto.

Asunnon tilat ja materiaalit

Pääasiallinen rakennusmateriaali Betoni ja betonielementti
Keittiön kuvaus Liesi (liesitaso, erillisuuni), työtasot (laminaatti), seinät (maali), lattiat (parketti), erillisuuni, liesituuletin, astianpesukone, jääkaappipakastin ja liesitaso
Kylpyhuoneen kuvaus Suihkuseinä, lattialämmitys, suihku, pesukoneliitäntä, wc-istuin, peilikaappi ja kiinteät valaisimet, seinät (kaakeli), lattiat (laatta)
Saunan kuvaus Seinät (puu), lattiat (laatta), Sähkökiuas
Olohuoneen kuvaus Seinät (maali), lattiat (parketti)
Makuuhuoneen kuvaus Lukumäärä: 1, seinät (maali), lattiat (parketti)
Kattotyyppi Tasakatto
Katon kuvaus Bitumi

Taloyhtiö

Taloyhtiön nimi Asunto Oy Helsingin Reissumies
Isännöitsijän yhteystiedot Emännöintitoimisto Aamu
Hissi Kyllä
Taloyhtiöön kuuluu Kerhohuone, A-B talossa talosauna, pesula, kuivaushuone
Taloyhtiön autopaikat Autopaikkoja 49 kpl, autohallipaikat sijaitsevat korttelin 33 alla yhteisjärjestelysopimuksen perusteella
Muuta taloyhtiöstä Urheiluvälinevarasto, kuivaushuone, kaapeli-tv, pesutupa, väestönsuoja ja lastenvaunuvarasto, huoneistokohtaiset varastot, sauna
Tehdyt remontit 2023 parvekelasien huolto, vesikaton kuntotarkastus/katselmus 2023 väestönsuojan tarkastus ja tiiveyskoe 2022 patteriverkoston paineentasaus, aurinkovoimalan kannattavuus kartoitus, ilmanvaihto: puhdistus ja säätö 2021 terassien pintakäsittely 2018 hallinnon luovutuskokous 8.2.2018 2017 vastaanotto 31.10.2017, muuttopäivä 1.11.2017
Tulevat remontit 2024 jätevesi (pohjaviemäri)- ja sadevesiviemärien sekä salaojien kuvaus/huuhtelu, kaukolämpökeskuksen/lämmönjakohuoneen tarkastus, hissien kuntoarvio 2025 10-vuotistarkastus ja kiinteistön kuntoarvio, energiatodistus 2028 parvekelasien huolto 2030 ilmanvaihdon puhdistus ja säätö 2033 väestönsuojan tiiveyskoe ja tarkastus, parvekelasitus huolto
Energialuokka C2013, On lain edellyttämä energiatodistus
Tontin pinta-ala 3 688 m²
Tontin omistus Valinnainen
Tontin vuokra 53 248,21 €
Tontin vuokranantaja Suomen Osatontti Ky
Tontin vuokrasopimus päättyy 13.6.2066
Kaavoitustiedot Helsingin kaupunki p. 09 310 1691
Kaavoitustilanne Asemakaava

Palvelut ja liikenneyhteydet

Palvelut Ristikko vieressä, Myyrmäen, Leppävaaran ja Pitäjänmäen palvelut lähellä.
Koulut Alueella
Päiväkodit Alueella
Liikenneyhteydet Vihdintie läheltä, bussit vierestä moneen suuntaan.
b74ef7bf-8f5b-4a0a-a29d-a877459b38df-1

Esa Hautamäki

Kiinteistönvälittäjä, LKV, LVV Helsinki 0505573112
Kenttä on validointitarkoituksiin ja tulee jättää koskemattomaksi.
Lähettämällä yhteydenottopyynnön hyväksyt tietojesi käsittelyn tietosuojaselosteessa esitellyllä tavalla.
Kiinnostuitko?

Ota yhteyttä välittäjään

Tilaa ilmainen arviokäynti​

Asunnonvaihto kannattaa aloittaa nykyisen asunnon hinnan arvioinnilla. Näin saat raamit uusille unelmillesi.​

Tilaa ilmainen arviokäynti​