Valoisa ja esteetön koti, hissitalon kuudennessa kerroksessa, loistavalla sijainnilla Tikkurilassa.
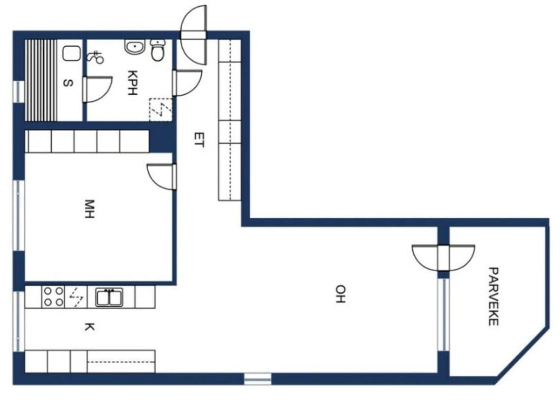
Vuonna 2018 valmistunut, esteetön yksiö sijaitsee hissitalon kuudennessa kerroksessa, josta avautuvat upeat näkymät. Asunnossa on toimiva ja selkeä pohjaratkaisu: keittiö on omalla seinällään, jättäen oleskelutilan helposti kalustettavaksi. Isot ikkunat tuovat runsaasti luonnonvaloa ja korostavat tilan avaruutta. Olohuoneen jatkeena on tilava lasitettu parveke.
Kylpyhuoneessa on lattialämmitys sekä pesukoneliitäntä, jotka tuovat arkeen lisämukavuutta.
Talo on valmistunut vuonna 2018 ja sijaitsee omalla tontilla. Hyvin hoidettu taloyhtiö, edullinen hoitovastike.
Sijainti on erinomainen: Tikkurilan monipuoliset palvelut, kahvilat ja ravintolat sekä loistavat liikenneyhteydet ovat kävelyetäisyydellä. Juna-asema ja bussipysäkit sijaitsevat aivan lähellä, joten liikkuminen on vaivatonta moneen suuntaan.
Tartu tilaisuuteen ja tule tutustumaan tähän valoisaan ja viihtyisään yksiöön, joka tarjoaa mukavaa asumista halutulla ja kehittyvällä alueella.
Asunnon vuokrasopimus on irtisanottu päättymään 1.4.2026.
Ota yhteyttä ja sovi oma esittelyaikasi.
Tilaa ilmainen arviokäynti
Asunnonvaihto kannattaa aloittaa nykyisen asunnon hinnan arvioinnilla. Näin saat raamit uusille unelmillesi.
Asunnon perustiedot
| Kotiavain | 80482584 |
|---|---|
| Osoite | Talvikkitie 7, 01300 Vantaa |
| Tyyppi | Kerrostalo |
| Omistusmuoto | Oma |
| Huoneistoselitelmä | 1h, kt, kph, parveke |
| Huoneet | 1 |
| Asuintilojen pinta-ala | 27.5 m² |
| Kokonaispinta-ala | 27.5 m² |
| Lisätietoja pinta-alasta | Yhtiöjärjestyksen mukainen ja isännöitsijäntodistuksen mukainen |
| Kerros | 6/16 |
| Rakennusvuosi | 2018 |
| Vapautuminen | Muu ehto: Asunto myydään vuokrattuna |
Hinta ja kustannukset
| Myyntihinta | 76 799,26 € |
|---|---|
| Velkaosuus | 88 200,74 € |
| Velaton hinta | 165 000 € |
| Neliöhinta | 6 000,00 €/m² |
| Hoitovastike | 130,63 € / kk |
| Rahoitusvastike | 627,17 € / kk |
| Yhtiövastike yhteensä | 757,80 € / kk |
| Muut maksut | Niin kauan kuin muulla kuin perustajaosakkaalla on huoneistoon kohdistuvaa yhtiölainaosuutta jäljellä enemmän kuin 50 % huoneiston alkuperäisestä rakennusaikaisesta yhtiölainaosuudesta, tulee yhtiön hallussa olla ao. huoneiston osalta aina vähintään kolmen (3) kuukauden pääomavastikkeiden suuruinen pääomavastikevakuus yhtiön pääomavastikesaatavan vakuutena. Yhtiön hallitus/isännöitsijä vastaa yhtiön päätöksen mukaisesti em. vastikevakuuden palauttamisesta ja/tai korottamisesta. |
| Vesimaksu | Vesimaksuennakko 17 € / kk / hlö (Ennakko, tasaus kulutuksen mukaan) |
Asunnon lisätiedot
| Sauna | Taloyhtiössä sauna |
|---|---|
| Parveke | Kyllä |
| Parvekkeen kuvaus | Sisäänvedetty ja lasitettu |
| Parvekkeen ilmansuunta | Pohjoinen |
| Asunnon kunto | Hyvä |
| Lämmitysjärjestelmän kuvaus | Kaukolämpö |
| Sähköliittymä siirtyy | Ei |
| Lunastusoikeus yhtiöllä | Ei |
| Lunastusoikeus osakkailla | Kyllä |
| Käyttö- ja luovutusrajoitukset | Käyttötarkoitus: asuinhuoneisto Yj 15§: autohalli-, mp paikka tai pp-komero lunastus Taloyhtiöllä on tupakkalain (549/2016 79§) mukainen tupakointikielto huoneistoihin kuuluvilla parvekkeilla. |
Asunnon tilat ja materiaalit
| Pääasiallinen rakennusmateriaali | Kivi ja metalli |
|---|---|
| Keittiön kuvaus | Liesi (Keraaminen liesi), työtasot (laminaatti), seinät (maali), lattiat (parketti), jääkaappi ( ja pakastilokero), astianpesukone (Siemens), erillisuuni (Siemens) ja liesituuletin, Keittiön kaapit: valkoiset Keittiön välitila: valkoinen laatta |
| Kylpyhuoneen kuvaus | WC-istuin, suihkuseinä, lattialämmitys, bidee-suihku, pesukoneliitäntä, peilikaappi, suihku, pesuallas ja allaskaappi, seinät (kaakeli), lattiat (laatta) |
| Olohuoneen kuvaus | Seinät (maali), lattiat (parketti) |
| Säilytystilojen kuvaus | Kaapistot ja kellarikomero |
| Kattotyyppi | Tasakatto |
| Katon kuvaus | Huopa |
Taloyhtiö
| Taloyhtiön nimi | Asunto Oy Vantaan Sarastus |
|---|---|
| Isännöitsijän yhteystiedot | Isännöintipiste, Marko Perämäki, PL 181, 01301, Vantaa, +358304108640, asiakaspalvelu@isannointipiste.fi |
| Huolto | Huoltoyhtiö |
| Hissi | Kyllä |
| Taloyhtiöön kuuluu | Pyörävarastot: yhtiön käytössä olevia pyörävarastoja sijaitsee myös As Oy Vantaan Säihkeen, As Oy Vantaan Loisteen ja Iltaruskon tiloissa. |
| Taloyhtiön autopaikat | Autohallipaikkoja: 58 kpl |
| Muuta taloyhtiöstä | Kuivaushuone, väestönsuoja, kaapeli-tv ja urheiluvälinevarasto |
| Tehdyt remontit | 2025 Parvekelasien korjaukset 2025 Turvavalojen akkujen uusiminen 2025 Lentovalojen akkujen uusiminen 2023 Pihakannen vuotojen korjaus (YIT) Takuukorjaus 2023 Sähköautolatausinfran rakentaminen autohalliin 2021 Parvekkeiden vesivuotojen korjaus (YIT) takuukorjaus |
| Energialuokka | C2013. On lain edellyttämä energiatodistus. Voimassa: 23.11.2028 |
| Tontin pinta-ala | 8 431 m² |
| Tontin omistus | Oma |
| Kiinteistötunnus | 0092-0061-0103-0007 |
| Kaavoitustilanne | Asemakaava |






