Monontie 6, Lahti (Jalkaranta)

45 000 € 60.5 m² 2h,k,kph/wc,et
Myyntihinta 43 441,41 €
Asuinpinta-ala 60.5 m²
Huoneita 2
Rakennusvuosi 1974
Tyyppi Kerrostalo
Kaupunki Lahti
Kaupunginosa Jalkaranta

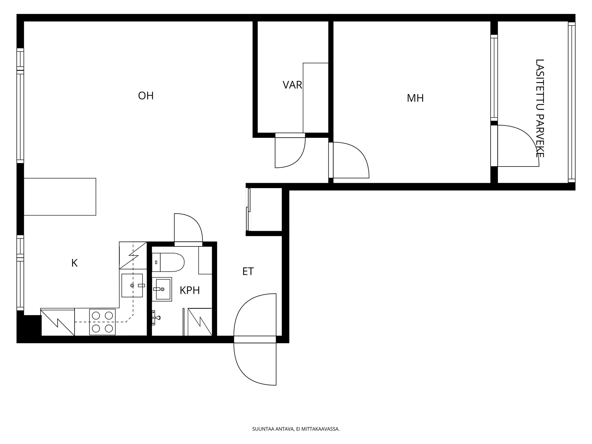
Kattavasti remontoidussa hissitalossa hyväkuntoinen, lasiparvekkeellinen, tilava ja valoisa läpitalon kaksio. Sijainti on Jalkarannassa Vesijärven välittömässä läheisyydessä, hyvät ulkoilumahdollisuudet ja bussiyhteydet. Asunto on heti vapaa. Varaa oma esittelyaikasi kohteen välittäjältä.

Tilaa ilmainen arviokäynti​

Asunnonvaihto kannattaa aloittaa nykyisen asunnon hinnan arvioinnilla. Näin saat raamit uusille unelmillesi.​

Tilaa ilmainen arviokäynti​

Asunnon perustiedot

Kotiavain 80473451
Osoite Monontie 6, 15950 Lahti
Tyyppi Kerrostalo
Omistusmuoto Oma
Huoneistoselitelmä 2h,k,kph/wc,et
Huoneet 2
Asuintilojen pinta-ala 60.5 m²
Kokonaispinta-ala 60.5 m²
Lisätietoja pinta-alasta Ei tarkistusmitattu. Pinta-alat saattavat tämän ikäisissä kohteissa (yhtiö rekisteröity ennen 01.01.1992) poiketa olennaisestikin asuinrakennusten nykyisten mittaustapojen ja standardien (SFS 5139) mukaan laskettavasta asuintilojen pinta-alasta. Pinta-ala voi siis olla edellä mainittua pienempi tai suurempi.. Tarkistusmitattu: Ei
Kerros 1/5
Rakennusvuosi 1974
Käyttöönottovuosi 1974
Vapautuminen Heti

Hinta ja kustannukset

Myyntihinta 43 441,41 €
Velkaosuus 1 558,59 €
Velaton hinta 45 000 €
Neliöhinta 743,80 €/m²
Hoitovastike 260,15 € / kk
Rahoitusvastike 41,26 € / kk
Yhtiövastike yhteensä 301,41 € / kk
Muut maksut Kylmä autopaikka 5 eur/kk, pistokepaikka 8 eur/kk, katospaikka 12 eur/kk. Taloyhtiön osakeluettelo on siirretty huoneistotietojärjestelmään. Ostajan tulee hakea omistusoikeuden rekisteröintiä Maanmittauslaitokselta. Ostaja vastaa tällöin omistusoikeuden rekisteröintikustannuksista, mahdollisista osakekirjan mitätöinnistä aiheutuvista kustannuksista sekä mahdollisesta hakemusmaksun korotuksesta. Ostajan pankin ostajalta mahdollisesti veloittamista kaupantekoon, omistusoikeuden rekisteröintiin tai panttausmerkinnän hakemiseen liittyvistä kustannuksista ostaja saa tiedon pankiltaan. Osakekirja toimitetaan siirtomerkinnällä varustettuna Maanmittauslaitokselle maksujen jälkeen allekirjoitusprosessissa annettujen valtuutusten mukaisesti. Siirtomerkitty osakekirja toimii myyjän suostumuksena omistuksen rekisteröinnille ostajan nimiin Maanmittauslaitoksen huoneistotietojärjestelmään. Ostaja on tietoinen siitä, että hänen tulee hakea omistusoikeutensa rekisteröintiä huoneistotietojärjestelmään Maanmittauslaitokselta kahden kuukauden kuluessa kauppakirjan allekirjoituksesta. Samalla paperinen osakekirja mitätöidään Maanmittauslaitoksen toimesta. DIAS-kaupassa ostajan asiamiehenä omistusoikeuden rekisteröinnissä toimii ostajan pankki.
Vesimaksu 25 € / hlö / kk

Asunnon lisätiedot

Sauna Taloyhtiössä sauna
Parveke Kyllä
Parvekkeen kuvaus Lasitettu
Tehdyt remontit 2005 kylpyhuoneremontti 2019 keittiö- ja lattiaremontit
Asunnon kunto Hyvä
Lämmitysjärjestelmän kuvaus Kaukolämpö
Sähköliittymä siirtyy Ei
Lunastusoikeus yhtiöllä Ei
Lunastusoikeus osakkailla Ei

Asunnon tilat ja materiaalit

Pääasiallinen rakennusmateriaali Betoni
Keittiön kuvaus Liesi (Induktioliesi), seinät (maali), lattiat (laminaatti), jääkaappipakastin
Kylpyhuoneen kuvaus WC-istuin, suihku, pesukoneliitäntä, peilikaappi ja bidee-suihku, seinät (kaakeli), lattiat (laatta)
Olohuoneen kuvaus Seinät (maali), lattiat (laminaatti)
Makuuhuoneen kuvaus Lukumäärä: 1, seinät (maali), lattiat (laminaatti)
Säilytystilojen kuvaus Häkkivarasto
Kattotyyppi Tasakatto
Katon kuvaus Huopa

Taloyhtiö

Taloyhtiön nimi Asunto Oy Lahden Honkalanpuisto
Isännöitsijän yhteystiedot Lahden Team-Isännöinti Oy, Heidi Siltala, Vesijärvenkatu 27, 15140, Lahti, 03 524 2100, heidi.siltala@team-isannointi.fi
Huolto Huoltoyhtiö
Hissi Kyllä
Muuta taloyhtiöstä Mankeli, kellarikomero, askarteluhuone, väestönsuoja ja urheiluvälinevarasto
Tehdyt remontit 2002 julkisivuremontti sisältäen ikkunat ja parvekkeet 2004 länsipäädyn sokkelin vedeneristys 2007 kylmiön korjaus 2008 saunaosaston remontointi 2008 lämmönvaihdin uusittu 2008 piharemonttia 2010 rakennettu lisää parkkipaikkoja sekä pelastustie 2010-2013 rappukäytävien maalaukset 2014 lauteet uusittu isompaan saunaan 2015 lämmityksen perussäätö 2015 kuivaushuoneen kondessikuivain ja lattian maalaus 2016 tuloveden tonttiputki uusittu 2017 lämmitettyjen autopaikkojen lisäys 5 kpl 2017 julkisivun pesu 2018 hissien uusiminen 2018 rengasvarastoon automaattiovet 2019 pääovien luiskien asennus 2020 kerhohuoneen lattian korotus 2021 ilmanvaihtokoneiden uusiminen ja säätö 2021 kattoremontti 2021 vierasparkkialueen lunastus Lahden kaupungilta 2021 huoneistojen ovien ja ikkunoiden säätö 2022 valvontakameroiden asennus 2022 alipainepoistin lisätty patteriverkostoon 2023 savunpoistoikkunat porraskäytäviin 2023 kylmäkellarin ylälautojen korjaus ja ilmanvaihdon parantaminen 2024 huoneistokohtaisten palovaroittimien asennus 2025 julkisivun puhdistus
Tulevat remontit Hallituksen kunnossapitotarveselvitys seuraaville viidelle vuodelle: -sähköjen uusiminen -käyttövesiputkien uusiminen
Energialuokka D2018. On lain edellyttämä energiatodistus. Voimassa: 18.04.2033
Tontin pinta-ala 5 100,9 m²
Tontin omistus Oma
Kiinteistötunnus 398-183-1-2
Kaavoitustiedot Lahden kaupunki, p. 03 814 2355
Kaavoitustilanne Asemakaava
d5ff8e74-4b0b-469f-8950-ae4214daa848

Antti Lavonen

Kiinteistönvälittäjä, LKV, LVV, kaupanvahvistaja Lahti 040 1543 796
Kenttä on validointitarkoituksiin ja tulee jättää koskemattomaksi.
Lähettämällä yhteydenottopyynnön hyväksyt tietojesi käsittelyn tietosuojaselosteessa esitellyllä tavalla.
Kiinnostuitko?

Ota yhteyttä välittäjään

Tilaa ilmainen arviokäynti​

Asunnonvaihto kannattaa aloittaa nykyisen asunnon hinnan arvioinnilla. Näin saat raamit uusille unelmillesi.​

Tilaa ilmainen arviokäynti​