Kurkimäentie 1375:ssä odottaa tilava ja lämminhenkinen omakotitalo, johon pääset muuttamaan heti kaupanteon jälkeen tai viimeistään kattoremontin valmistuttua heinä – elokuussa 2026. Katon uusiminen on jo sovittu, joten uusi omistaja pääsee nauttimaan kodista huolettomin mielin.
Vuonna 1980 valmistunut koti sijaitsee omalla 2 068 m²:n rinnetontilla, jossa yhdistyvät maaseudun viihtyisyys ja sujuvat yhteydet Kuopion keskustaan.
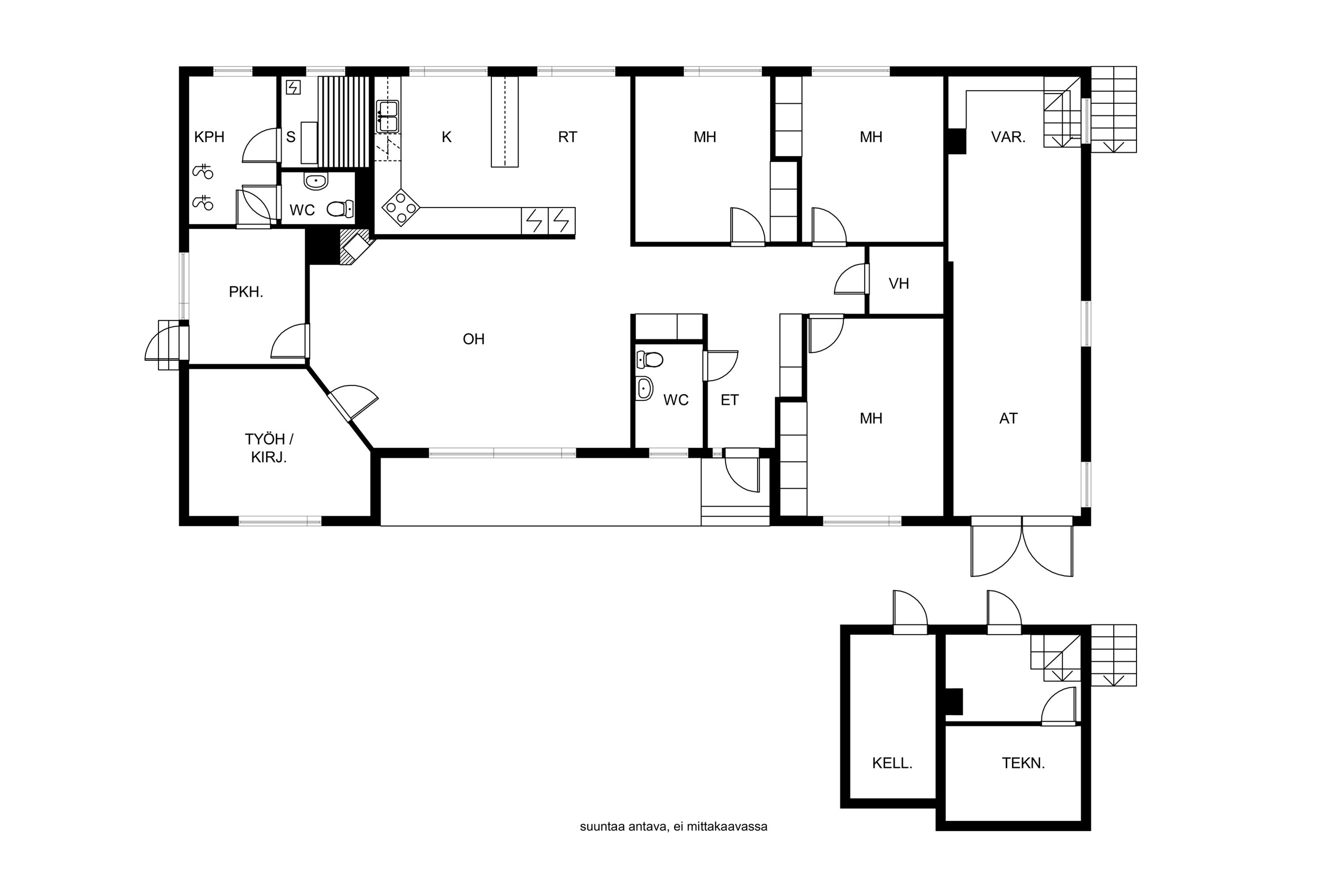
Kodin neljä makuuhuonetta tarjoavat runsaasti tilaa perheen eri tarpeisiin – lastenhuoneiksi, työtiloiksi tai vaikkapa vierashuoneiksi. Keittiö on uudistettu 2000-luvulla, samoin kodinkoneet, ja se palvelee arjen sekä juhlan tarpeita erinomaisesti. Olohuoneen tunnelmallinen takka luo lämpöä ja viihtyisyyttä erityisesti syksyn ja talven iltoihin.
Arjen mukavuutta lisäävät 2000-luvulla remontoidut kylpyhuone ja sauna. Hetivalmis-kiukaalla varustetussa saunassa rentoudut kiireisen päivän päätteeksi omassa rauhassa.
Pihkainmäki tunnetaan aktiivisesta kyläyhteisöstään ja luonnonläheisestä ympäristöstään. Upeat ulkoilumaastot, metsäreitit ja rauhallinen maalaismaisema alkavat käytännössä omalta pihalta.
Vehreällä pihapiirillä riittää tekemistä ja nautittavaa koko perheelle. Tunnelmallinen grillimaja kutsuu viettämään kesäiltoja ystävien ja perheen kesken. Lasten iloksi pihasta löytyy persoonallinen leikkimökki, ja alapihan nurmialue tarjoaa loistavat puitteet pihapeleihin ja leikkeihin. Lisäksi pihalla on runsaasti istutuksia sekä kasvihuone viherpeukalon unelmien toteuttamiseen.
Tämä koti on erinomainen valinta perheelle, joka arvostaa tilaa, luonnonläheisyyttä ja rauhallista asumista kuitenkaan tinkimättä hyvien kulkuyhteyksien tuomasta arjen helppoudesta. Tule tutustumaan ja ihastu – tässä voi olla perheesi seuraava koti.
Tilaa ilmainen arviokäynti
Asunnonvaihto kannattaa aloittaa nykyisen asunnon hinnan arvioinnilla. Näin saat raamit uusille unelmillesi.
Asunnon perustiedot
| Kotiavain | 80466907 |
|---|---|
| Osoite | Kurkimäentie 1375, 71480 Kuopio |
| Tyyppi | Omakotitalo |
| Huoneistoselitelmä | 4mh,k,rt,oh,kph,s,pkh,2wc,vh,autotalli,varasto,tt,kellari |
| Huoneet | 5 |
| Asuintilojen pinta-ala | 150 m² |
| Muiden tilojen pinta-ala | 54 m² |
| Kokonaispinta-ala | 204 m² |
| Lisätietoja pinta-alasta | Tarkistusmitattu: Ei |
| Asuinkerrosten määrä | 1 |
| Rakennusvuosi | 1980 |
| Käyttöönottovuosi | 1980 |
| Vapautuminen | Muu ehto: Nopea vapautuminen – avaimet käteen jopa kaupanteossa. |
Hinta ja kustannukset
| Myyntihinta | 156 000 € |
|---|---|
| Velaton hinta | 156 000 € |
| Muut maksut | Sähkön kulutus: n. 17 000 kWh/v |
| Kiinteistövero | 489,21 € / vuosi |
Asunnon lisätiedot
| Sauna | Oma sauna |
|---|---|
| Asunnon kunto | Tyydyttävä |
| Energialuokka | C2018. On lain edellyttämä energiatodistus. Voimassa: 28.02.2035 |
| Lämmitysjärjestelmän kuvaus | Rakennuksessa on lämmönlähteenä maalämpö. Lämmönjako tapahtuu pääasiassa ilmalämmityskanavien kautta. Lämmönjako tapahtuu autotallissa vesikiertoisen patterin avulla. Pesuhuoneessa, saunassa ja wc:ssä lämmönjako tapahtuu vesikiertoisen lattialämmityksen avulla. Lisälämmönlähteenä on Mitsubishi Electric-merkkinen ilmalämpöpumppu vuosimallia 2019. Vesikiertoisen lämmityksen putket ovat muovia. Maalämpöpumppu on Gebwell Qi9. |
| Tulisija | Takka |
| Sähköliittymä siirtyy | Kyllä |
Asunnon tilat ja materiaalit
| Pääasiallinen rakennusmateriaali | Puu ja tiiliverhoilu |
|---|---|
| Keittiön kuvaus | Liesi (Keraaminen liesi), työtasot (laminaatti), seinät (tapetti ja maali), lattiat (laminaatti), jääkaappi, jääkaappipakastin, erillisuuni, liesituuletin ja astianpesukone, Remontoitu 2000 luvulla. |
| Kylpyhuoneen kuvaus | Suihku (2 kpl), seinät (kaakeli), lattiat (laatta), Remontoitu 2000 luvulla. |
| WC-tilojen kuvaus | Lukumäärä: 2, WC-istuin, peili ja allaskaappi, seinät (Kaakeli), lattiat (Laatta), Remontoitu 2000 luvulla. |
| Saunan kuvaus | Heti valmis -sähkökiuas, Remontoitu 2000 luvulla. |
| Kodinhoitohuoneen kuvaus | Pesukoneliitäntä, lattialämmitys, lattiakaivo, pyykkikaapit, pöytätaso ja kuivausteline, lattiat (laatta), seinät (kaakeli), Remontoitu 2000 luvulla. |
| Olohuoneen kuvaus | Seinät (maali), lattiat (laminaatti) |
| Makuuhuoneen kuvaus | Lukumäärä: 4, seinät (tapetti ja maali), lattiat (parketti ja laminaatti) |
| Säilytystilojen kuvaus | Vaatehuone, lämmin ulkovarasto, kaapistot ja kellarikomero |
| Kattotyyppi | Aumakatto |
| Katon kuvaus | Tiili |
Asunnon tontti
| Tontin omistus | Oma |
|---|---|
| Kiinteistötunnus | 297-482-14-43 |
| Tontin tyyppi | Rinnetontti |
| Tontin pinta-ala | 2 068 m² |
| Tie perille | Kyllä |
| Kaavoitustilanne | Ei kaavoitettu |
Palvelut ja liikenneyhteydet
| Liikenneyhteydet | Koulukyyti omasta pihasta Pihkainmäen kouluun 0-6 luokat. |
|---|






