Tässä on tarjolla poikkeuksellinen tilaisuus sinulle, joka arvostat ekologisuutta, perinteistä rakennustapaa sekä terveellisiä materiaaleja.
Tämä arkkitehdin suunnittelema ekologinen talo on rakennettu tinkimättömällä periaatteella “puhtaasti ja hengittäen”. Unohda muovit, kipsilevyt sekä mineraalivillat, täällä rakenteet ovat täysin hengittäviä, sillä edellä mainittuja ei ole käytetty. Tuulettuva rossipohja kantaa taloa vankasti kalliolla. Rakenteissa ei ole käytetty yhtäkään tunnettua riskirakennetta.
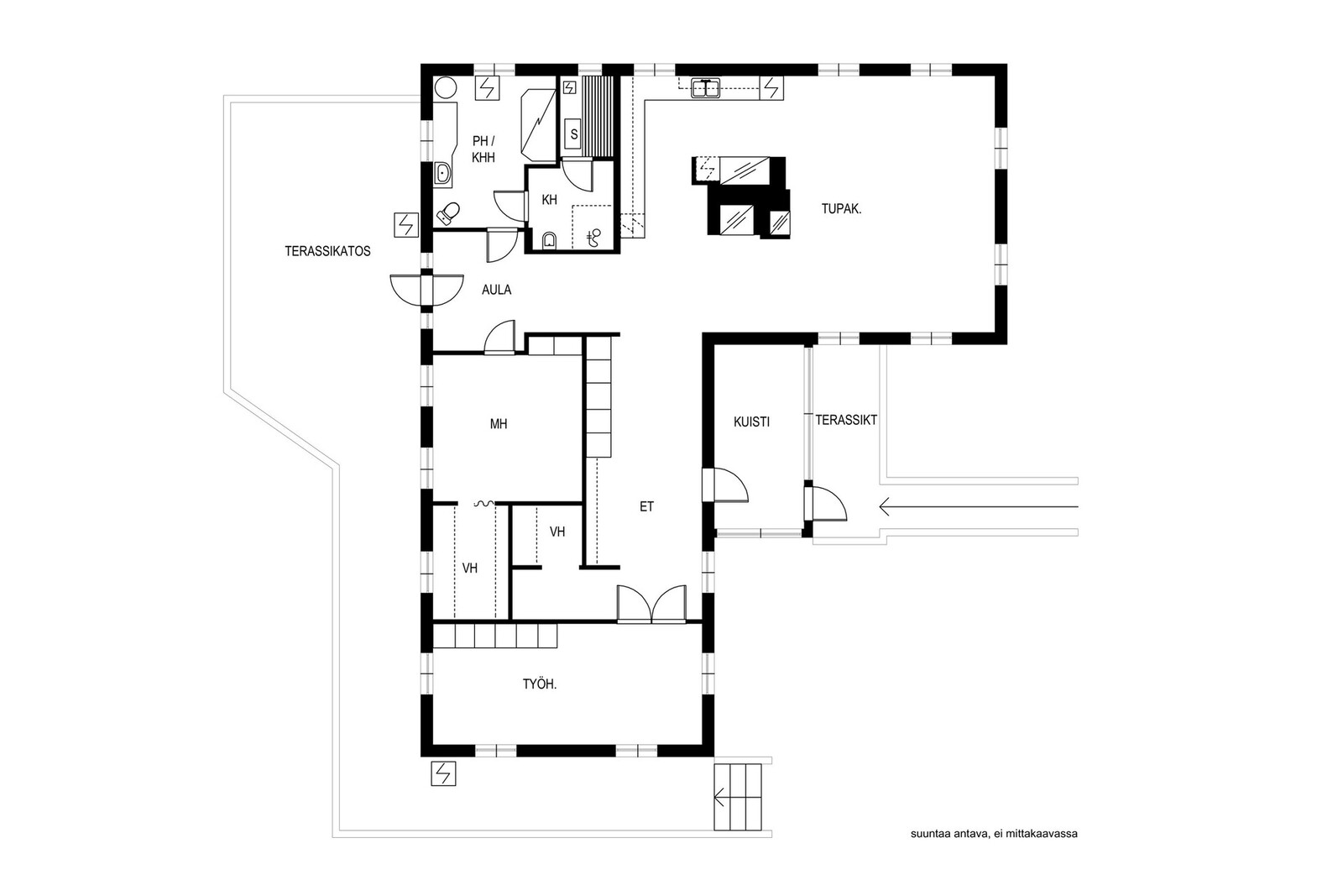
Kodin sydämen muodostaa avara ja yhtenäinen keittiö- ja olohuonekokonaisuus. Olohuoneessa säväyttää upea, lähes 5 metrin huonekorkeus sekä katseenvangitsijana loistaa upea muurattu tulisija, joka kätkee sisäänsä peräti kolme varaavaa puulämmitysratkaisua: sydänuunin, uunin ja takan. Jalkojesi alla tuntuu Kuusamon ikihongasta veistetty, leveä ja lämmin lankkulattia, joka kantaa mukanaan pohjoisen metsän ikiaikaista rauhaa. Olohuoneen puolelle mahtuu suurempikin ruokapöytä ja tilaa jää reilusti. Keittiössä perinteinen puuliesi rätisee kodikkaasti sähkölieden rinnalla luoden aitoa maalaistalon taikaa. Keittiössä on paljon lasku- sekä kaappitilaa. Asuintilat ovat helposti muunneltavissa, sillä talossa ei ole kantavia väliseiniä. Esimerkiksi työhuone on tarvittaessa jaettavissa kahdeksi makuuhuoneeksi. Käytännöllisyyttä lisäävät kaksi erillistä vaatehuonetta, joista toinen on ns. päämakuhuoneen yhteydessä.
Talon puolilämmin kuisti on todellinen harvinaisuus, sillä se on kuin suoraan historiankirjoista. Sen ikkunat ovat peräisin Saustilan kartanon vanhasta kuistista noin vuodelta 1820. Ikkunoiden käsinpuhallettu vaaleansininen lasi on Perttelin Inkereen lasitehtaan valmistamaa (1794–1865). Kuistin katto muodostaa sisällä kolme holvikaarta, ja katto sekä seinät ovat lähes oksatonta mäntyä.
Isolta terassilta, josta suurin osa on katettu avautuvat, rauhoittavat näkymät yli peltojen ja metsäiset maisemat. Täällä kelpaa ihastella vuodenaikojen vaihtumista.
Talo sijaitsee, yli hehtaarin kokoisella tilalla luonnon rauhassa ja naapureita ei ole lähipiirissä. Omaa turvaa ja rauhan kruunaa tehokas kameravalvonta.
Kiinteistö tarjoaa poikkeuksellisen upeat puitteet harrastustoiminnalle tai yritystoiminnalle. Pihapiirissä on suuri talousrakennus, joka sisältää reilusti lämmitettävää varasto- ja verstastilaa. Lisäksi reilusti lämmittämätöntä varastotilaa sekä suuri katos esimerkiksi puutavaralle.
Kodin sähkönkulutus on erittäin maltillinen (n. 7 500 – 10 500 kWh/vuosi). Jos haluat tulevaisuudessa siirtyä muihin energiamuotoihin, järeään 1 800 litran lämmitysjärjestelmään on tehty valmiit varaukset esimerkiksi maalämmölle.
Tämä koti on tehty sinulle, joka et suostu tekemään kompromisseja puhtauden, luonnon ja arkkitehtuurin suhteen.
Ole nopea, ota yhteyttä ja lähdetään ihastumaan tulevaan kotiisi!
Tilaa ilmainen arviokäynti
Asunnonvaihto kannattaa aloittaa nykyisen asunnon hinnan arvioinnilla. Näin saat raamit uusille unelmillesi.
Asunnon perustiedot
| Kotiavain | 80503921 |
|---|---|
| Osoite | Vuorelantie 137, 21630 Lielahti Tl |
| Tyyppi | Omakotitalo |
| Huoneistoselitelmä | 3 h, k, 2*vh, kkh, khp, s |
| Huoneet | 3 |
| Asuintilojen pinta-ala | 167 m² |
| Muiden tilojen pinta-ala | 26 m² |
| Kokonaispinta-ala | 193 m² |
| Asuinkerrosten määrä | 1 |
| Rakennusvuosi | 2025 |
| Käyttöönottovuosi | 2020 |
| Vapautuminen | Muu ehto: 2 kk kaupoista / sop. mukaan |
Hinta ja kustannukset
| Myyntihinta | 280 000 € |
|---|---|
| Velaton hinta | 280 000 € |
| Muut maksut | Puun kulutus 6-12 m3 (heittokuutio). Tiehoitokunta on perusteilla. Sähköä kulunut 7500-10500 kWh välillä vuosina 2022-2024. Jätesäiliön tyhjennys noin 180 euroa/ kerran vuodessa. Varainsiirtovero 3 %. |
| Kiinteistövero | 786,74 € / vuosi |
Asunnon lisätiedot
| Sauna | Oma sauna |
|---|---|
| Muuta kauppaan kuuluvaa | Lisätietoja sisältyvistä varusteista: hälytys- /valvontajärjestelmä, ilmalämpöpumppu x 2, istutukset, kaapistot, lämminvesivaraaja |
| Asunnon kunto | Hyvä |
| Energialuokka | C2018. On lain edellyttämä energiatodistus. Energiatodistuksen viimeinen voimassaolopäivä on 17.7.2035. |
| Lämmitysjärjestelmän kuvaus | Puu, vesikiertoinen patterilämmitys, uuni/takka, uuni ja ilmalämpöpumppu |
| Tulisija | Kolme eri puulämmitystä olohuoneessa. Sydän uuni (keskuslämmitys). Uuni. Takka. Kaikki ovat varaavia. Hormit nuohottu 1.2026 |
| Viemäri | Saostussäiliön koko on 2 m3 |
| Sähköliittymä siirtyy | Kyllä |
Asunnon tilat ja materiaalit
| Pääasiallinen rakennusmateriaali | Puu |
|---|---|
| Keittiön kuvaus | Liesi (puuliesi, sähköliesi), työtasot (laminaatti), seinät (laatta ja puu), lattiat (leveä lankkulattia), jääkaappipakastin, liesi ja liesituuletin / hormi, varattu paikka astianpesukoneelle, kiinteät valaisimet |
| Kylpyhuoneen kuvaus | Suihku, lattialämmitys ja pisulaari, seinät (kaakeli), lattiat (laatta) |
| Saunan kuvaus | Seinät (puu), lattiat (laatta), Sähkökiuas |
| Kodinhoitohuoneen kuvaus | Pöytätaso, lattialämmitys, pesukoneliitäntä, lattiakaivo ja wc-istuin, lattiat (laatta), seinät (puu) |
| Olohuoneen kuvaus | Seinät (puu), lattiat (leveä lankkulattia) |
| Makuuhuoneen kuvaus | Seinät (puu), lattiat (laminaatti ja korkki) |
| Säilytystilojen kuvaus | Vaatehuone ja kaapistot |
| Kattotyyppi | Harjakatto |
| Katon kuvaus | Pelti |
Asunnon tontti
| Tontin omistus | Oma |
|---|---|
| Kiinteistötunnus | 445-485-2-659, 445-485-2-659-L1 |
| Tontin tyyppi | Tasamaatontti |
| Tontin pinta-ala | 1,018 ha |
| Tie perille | Kyllä |
| Lisätietoja tontista | Kiinteistöllä sijaitsee vuokraoikeus, joka siirtyy uudelle omistajalle kaupan yhteydessä. Myydään siis kokonaisuus talo ja maapohja. |
| Lisätietoja rakennusoikeudesta | Rakennusoikeus varmistettava Paraisten kaupungin rakennusvalvonnasta. |
| Kaavoitustiedot | Paraisten kaupunki (02) 458 5700 |
| Kaavoitustilanne | Yleiskaava |
| Muut rakennukset | Talousrakennus, varasto, muita rakennuksia. Talousrakennus n. 196 m² (lämmitettävää varasto-/verstastilaa), lämmittämätöntä varastotilaa n. 112 m², lämmitettävä verstas/varasto 53 m²+25 m²+6 m², maakellari, jonka päällä n. 10 m²:n varasto. Katos noin 150 m². Katokselle ei lupaa |






