Tämä tilava omakotitalo Oulun Pyykösjärvellä tarjoaa ainutlaatuisen mahdollisuuden luoda unelmiesi koti. Talo sijaitsee omalla 805 neliömetrin tontilla, josta avautuvat upeat näkymät Pyykösjärvelle. Aurinkoinen pihapiiri kutsuu nauttimaan ulkoilmasta ja tarjoaa runsaasti tilaa puutarhaunelmille.
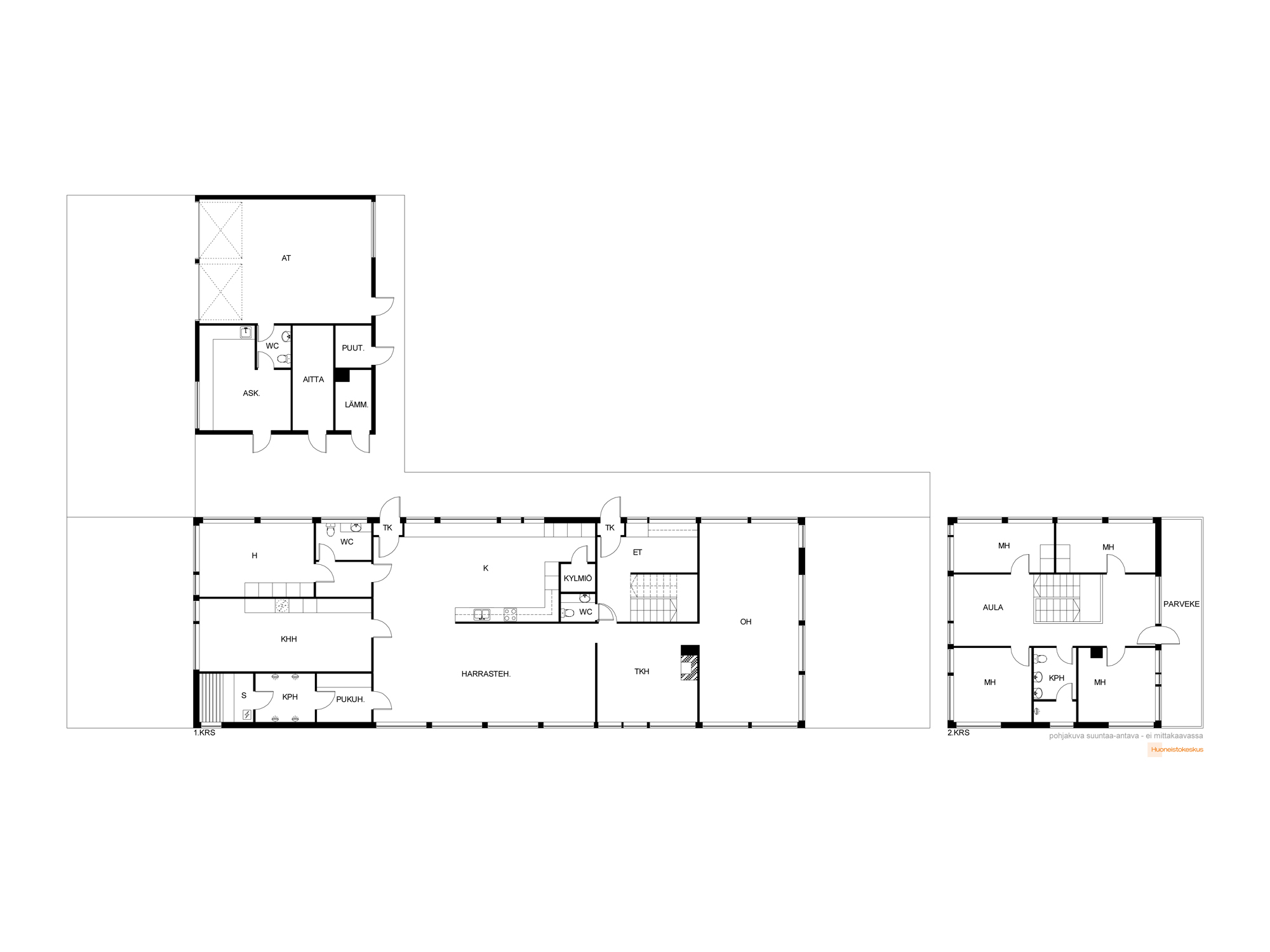
Vuonna 1973 valmistunut talo on kahdessa kerroksessa ja sen 300 neliömetrin asuintilat tarjoavat runsaasti tilaa suuremmallekin perheelle. Talossa on kuusi makuuhuonetta, joten jokaiselle perheenjäsenelle löytyy oma rauhallinen tila. Olohuoneen takka luo lämpöä ja tunnelmaa viileisiin iltoihin.
Keittiössä on käytännöllinen laattalattia ja laminaattityötasot, ja se on varustettu sähköhellalla. Talon kolme wc:tä ja sauna takaavat arjen sujuvuuden. Yläkerran parvekkeelta voi ihailla ilta-aurinkoa, ja entinen uima-allastila toimii nyt monikäyttöisenä harrastetilana.
Talo kaipaa joitakin korjauksia, kuten valesokkelin kunnostusta ja ikkunoiden huoltoa, mutta tarjoaa samalla mahdollisuuden muokata siitä juuri sinun näköisesi. Viimeisimmät remontit, kuten katon osittainen uusiminen, on tehty syksyllä 2025.
Pyykösjärven alue on rauhallinen ja luonnonläheinen, mutta silti lähellä Oulun keskustan palveluita. Tämä talo on täydellinen valinta niille, jotka arvostavat tilaa, rauhaa ja mahdollisuutta tehdä kodista juuri oman näköisensä. Tartu tilaisuuteen ja tee tästä talosta uusi kotisi!
Tilaa ilmainen arviokäynti
Asunnonvaihto kannattaa aloittaa nykyisen asunnon hinnan arvioinnilla. Näin saat raamit uusille unelmillesi.
Asunnon perustiedot
| Kotiavain | 80462345 |
|---|---|
| Osoite | Uistintie 7, 90550 Oulu |
| Tyyppi | Omakotitalo |
| Huoneistoselitelmä | 5mh,oh,th,kph,kps/s,3wc |
| Huoneet | 6 |
| Asuintilojen pinta-ala | 300 m² |
| Muiden tilojen pinta-ala | 71 m² |
| Kokonaispinta-ala | 371 m² |
| Lisätietoja pinta-alasta | Ei tarkistusmitattu. Pinta-alat saattavat tämän ikäisissä kohteissa (rekisteröity ennen 01.01.1992) poiketa olennaisestikin asuinrakennusten nykyisten mittaustapojen ja standardien (SFS 5139) mukaan laskettavasta asuintilojen pinta-alasta. Pinta-ala voi siis olla edellä mainittua pienempi tai suurempi. Pinta-alatiedot on saatu kaupungin/kunnan rakennusvalvonnasta / rakennuspiirustuksista / myyjältä, eikä niitä ole tarkistusmitattu, joten ne saattavat poiketa olennaisestikin nykymääräysten mukaan mitattavista pinta-aloista.. Tarkistusmitattu: Ei |
| Asuinkerrosten määrä | 2 |
| Rakennusvuosi | 1973 |
| Käyttöönottovuosi | 1973 |
| Vapautuminen | Sopimuksen mukaan |
Hinta ja kustannukset
| Myyntihinta | 195 000 € |
|---|---|
| Velaton hinta | 195 000 € |
| Muut maksut | Lämmitys +sähkö n. 3800 €/v |
| Kiinteistövero | 621,09 € / vuosi |
Asunnon lisätiedot
| Sauna | Oma sauna |
|---|---|
| Tehdyt remontit | Kts.erillinen huoltokirja |
| Asunnon kunto | Tyydyttävä |
| Lisätietoja kunnosta | Pitää varautua valesokkelin korjaamiseen, ikkunoiden ja ovien huoltokäsittely. Eristyslasielementit ovat ylittäneet teknisen käyttöikänsä. Pesuhuoneen ja saunan tekninen käyttöikä lopussa. Kylpyhuoneen ovat ikääntyneet. Allashuoneen sisäkatossa havaittu valumajälki. Kattohuopa on korjattu ja villat vaihdettu vuotokohdasta katon kautta välittömästi havainnon jälkeen. |
| Energialuokka | D2018. On lain edellyttämä energiatodistus. Voimassa: 02.10.2035. et-luku 233 |
| Lämmitysjärjestelmän kuvaus | Kaukolämpö |
| Tulisija | Takka |
| Sähköliittymä siirtyy | Ei |
Asunnon tilat ja materiaalit
| Pääasiallinen rakennusmateriaali | Puu |
|---|---|
| Rakennusmateriaalien kuvaus | Perustukset: Maanvaraiset betonianturat Perusmuuri: Harkkoperusmuuri Alapohja: Maanvastainen betonilaatta, lämmöneristys alapuolella Ulkoseinät: Puurakenteisia Julkisivupinnoite: Lautaverhous Väliseinät: Puu-/ levyrakenteiset * Lämmöntuotto: Kaukolämmönsiirrin Lämmönjako: Vesikiertoiset patterit |
| Keittiön kuvaus | Liesi (Sähköhella), työtasot (laminaatti), seinät (maali), lattiat (kaakeli), jääkaappi ja erillinen pakastin |
| Kylpyhuoneen kuvaus | Suihku, seinät (puu), lattiat (laatta), Laattalattiat, seinät puuta. |
| WC-tilojen kuvaus | Lukumäärä: 3, WC-istuin ja peili, seinät (Tapetti), lattiat (Laatta ja muovimatto) |
| Saunan kuvaus | Seinät (puu), lattiat (laatta), Sähkökiuas |
| Kodinhoitohuoneen kuvaus | Pesukoneliitäntä, pöytätaso ja pyykkikaapit, lattiat (muovimatto), seinät (maali) |
| Olohuoneen kuvaus | Seinät (maali ja puu), lattiat (lattiamatto) |
| Makuuhuoneen kuvaus | Lukumäärä: 5, seinät (maali), lattiat (muovimatto, laminaatti ja korkkimatto) |
| Muut huoneet ja tilat | Entinen uima-allastila on nyt harrastetilana. |
| Säilytystilojen kuvaus | Kylmä ulkovarasto ja kaapistot |
| Kattotyyppi | Tasakatto |
| Katon kuvaus | Bitumikermikate |
Asunnon tontti
| Tontin omistus | Oma |
|---|---|
| Kiinteistötunnus | 564-63-14-4 |
| Tontin tyyppi | Tasamaatontti |
| Tontin pinta-ala | 805 m² |
| Tie perille | Kyllä |
| Rakennusoikeuden pinta-ala | 400 |
| Lisätietoja rakennusoikeudesta | AOR II 1 as 400m² |
| Kaavoitustiedot | Kaavoitus Oulu p.050 3166 850 |
| Kaavoitustilanne | Asemakaava |
Muut lisätiedot
| Pihan kuvaus | Aurinkoinen pihapiiri josta näkymät Pyykösjärvelle. |
|---|






