Tässä kodissa tila, tyyli ja erinomainen sijainti yhdistyvät upeaksi kokonaisuudeksi. Avara kaksio hurmaa korkealla huonekorkeudella, suurilla ikkunoilla ja tilavalla olohuoneella. Tyylikkäästi remontoitu keittiö kaasuliesineineen tarjoaa sekä arjen sujuvuutta että näyttävyyttä.
Makuuhuoneeseen mahtuu luontevasti myös työpiste, ja toimivat säilytysratkaisut tekevät kodista käytännöllisen kokonaisuuden.
Tyylikäs historiallinen rappukäytävä antaa arvokkaan ensivaikutelman. Iso Roobertinkadun kävelykadun varrella sijaitseva koti tarjoaa Punavuoren parhaat palvelut, kahvilat ja liikenneyhteydet lähietäisyydellä – todellinen tilaisuus yhdistää kaupunkielämä ja asumisen väljyys.
Ota heti yhteyttä kysyäksesi lisätietoja: Marja Mannerroos, kiinteistönvälittäjä, LKV, DI, p. 045 1100 660, marja.mannerroos@huoneistokeskus.fi.
.
Esittely
Su 24.5.2026 klo 16.20 – 16.50
Esittelijä

Tilaa ilmainen arviokäynti
Asunnonvaihto kannattaa aloittaa nykyisen asunnon hinnan arvioinnilla. Näin saat raamit uusille unelmillesi.
Asunnon perustiedot
| Kotiavain | 80466370 |
|---|---|
| Osoite | Iso Roobertinkatu 3-5, 00120 Helsinki |
| Tyyppi | Kerrostalo |
| Omistusmuoto | Oma |
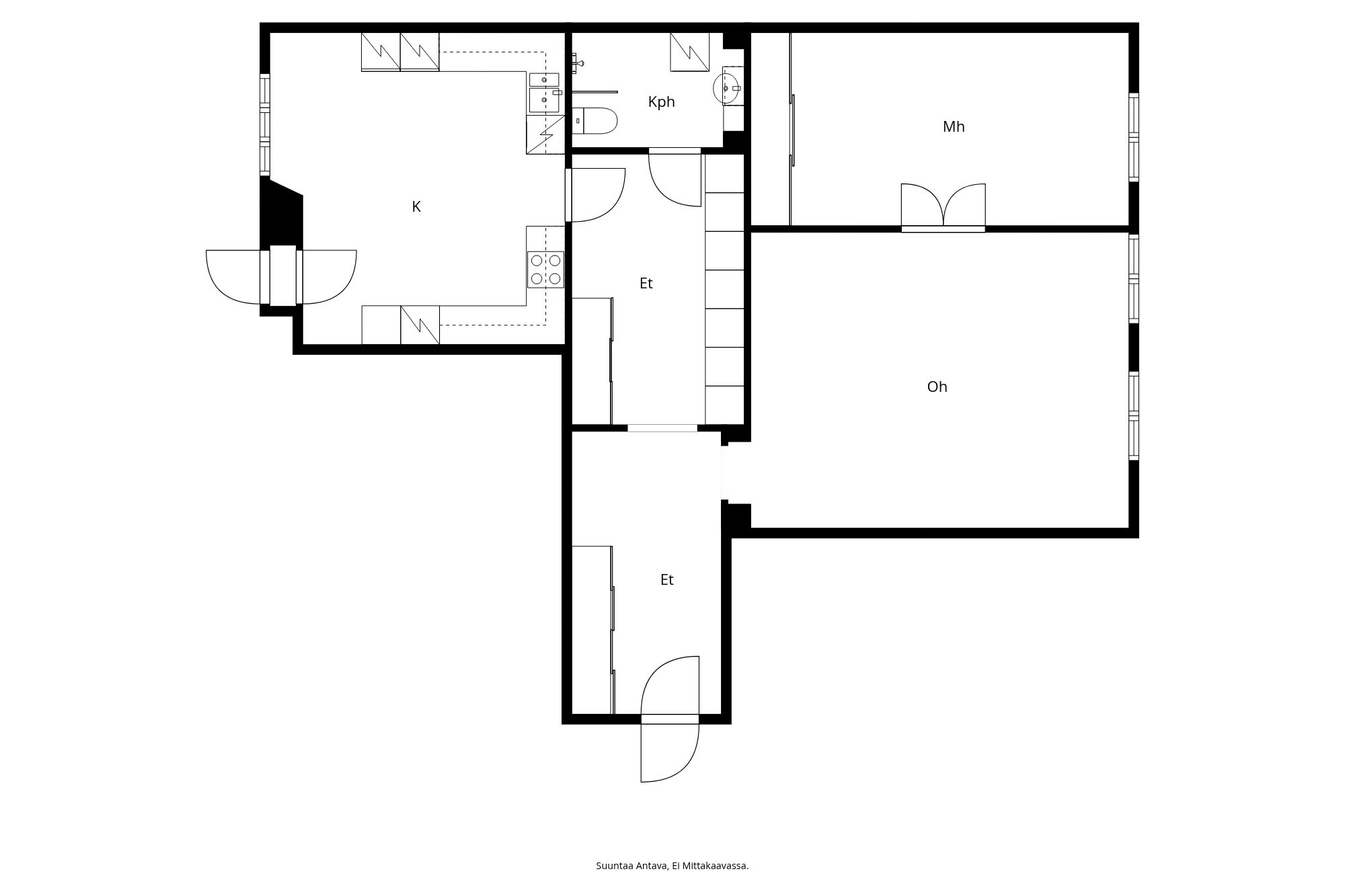
| Huoneistoselitelmä | Oh, mh, k, aula, kph |
| Huoneet | 2 |
| Asuintilojen pinta-ala | 96 m² |
| Kokonaispinta-ala | 96 m² |
| Lisätietoja pinta-alasta | Ei tarkistusmitattu. Pinta-alat saattavat tämän ikäisissä kohteissa (yhtiö rekisteröity ennen 01.01.1992) poiketa olennaisestikin asuinrakennusten nykyisten mittaustapojen ja standardien (SFS 5139) mukaan laskettavasta asuintilojen pinta-alasta. Pinta-ala voi siis olla edellä mainittua pienempi tai suurempi.. Tarkistusmitattu: Ei |
| Kerros | 4/4 |
| Rakennusvuosi | 1875 |
| Käyttöönottovuosi | 1875 |
| Vapautuminen | Muu ehto: 2 kk kaupanteosta tai sopimuksen mukaan |
Hinta ja kustannukset
| Myyntihinta | 607 038,23 € |
|---|---|
| Velkaosuus | 4 961,77 € |
| Velaton hinta | 612 000 € |
| Neliöhinta | 6 375 €/m² |
| Hoitovastike | 700,80 € / kk |
| Rahoitusvastike | 9,60 € / kk |
| Yhtiövastike yhteensä | 710,40 € / kk |
| Muut maksut | Yhtiöllä on Nordean limiittitili, jonka suuruus on 42 046,98 euroa. Limiittiä ei ole käytössä. |
| Vesimaksu | Sisältyy hoitovastikkeeseen |
Asunnon lisätiedot
| Sauna | Taloyhtiössä sauna |
|---|---|
| Parveke | Ei |
| Tehdyt remontit | Keittiön uusiminen, n. 10 v sitten. |
| Muuta kauppaan kuuluvaa | Ikkunoiden sälekaihtimet, olohuoneen valaisin, eteisaulan kirjahylly ja pesukone. Eteisen valaisimista voi neuvotella erikseen. |
| Asunnon kunto | Hyvä |
| Lämmitysjärjestelmän kuvaus | Kaukolämpö |
| Sähköliittymä siirtyy | Ei |
| Lunastusoikeus yhtiöllä | Ei |
| Lunastusoikeus osakkailla | Ei |
Asunnon tilat ja materiaalit
| Pääasiallinen rakennusmateriaali | Tiili |
|---|---|
| Keittiön kuvaus | Todellinen kulinaristin unelma! Laadukkaasti varusteltu tilava erillinen keittiö, joka on uusittu täydelllisesti n. 10 v sitten. Varustus: induktio-kaasuliesi, erillisuuni höyrytoiminnalla sekä mikroaaltouuni-uuni -yhdistelmä, täyskorkea viinikaappi, jääkaappi-pakastin, integroitu astianpesukone. seinämallinen liesituuletin, integroitu kahvikone, kaikki AEG. Lattia on keraamista laattaa, välitila kaakelia, seinät maalattu. Työtasot pähkinäpuuta. Avohyllystö kuuluu kauppaan. Keittiön puukaihtimet kuuluvat kauppaan. Keittiöön on myös erillinen oma sisäänkäynti (B-portaasta). Em. ovesta on kulku B-portaan kautta asunnon vintille. |
| Kylpyhuoneen kuvaus | Tilava kylpyhuone on kokonaisuudessaan uusittu LVI-saneerauksen yhteydessä. Lisäksi kalusteet on uusittu n. 10 v sitten (kiiltävänvalkoiset). Varustus: suihku, suihkuseinä, WC-istuin, pesukoneliitäntä, allaskaappi, peilikaappi, pyyhekuivain, bideesuihku, pesukone, Lattia laattaa, seinät kaakelia. |
| Olohuoneen kuvaus | Ruhtinaallisen kokoinen ja valoisa olohuone, josta on viihtyisät näkymät Iso Roobertinkadulle. Olohuoneen lattia on alkuperäinen ruutumallinen Töölön tammi parketti, seinät maalattua tapettia. Katossa kauniit ornamentit. HUOM! Olohuoneen valaisin kuuluu kauppaan. Ikkunoissa sälekaihtimet. |
| Makuuhuoneen kuvaus | Olohuone avautuu kauniista pariovista makuuhuoneeseen. Makuuhuoneen lattia on alkuperäistä lankkua, joka on käsitelty kuultomaalilla. Seinät maalattu tapetti, Makuuhuoneessa on seinän levyinen Inarian maitolasiliukuovikaapisto Ikkunoissa sälekaihtimet, kuuluu kauppaan. |
| Muut huoneet ja tilat | Huoneistossa on sekä sisääntuloaula että varsinainen eteisaula. Kummassakin alkuperäiset lautalattiat ja seinät maalattua tapettia. Eteisaulassa on seinän levyinen kirjahylly, ja se kuuluu kauppaan. Kaikissa huoneissa on kaunis korkea lattialista. |
| Säilytystilojen kuvaus | Kellarikomero ja vinttikomero, Huoneistolla on poikkeuksellisen suurikokoinen vinttikomero (B-portaassa), jonne käynti keittiön erillisestä ovesta. Huoneiston kellarikomeroon on käynti porttikongista. |
| Seinämateriaalien kuvaus | Kiviseinät, joiden päällä on rakennuslevy. |
| Kattotyyppi | Harjakatto |
| Katon kuvaus | Pelti |
Taloyhtiö
| Taloyhtiön nimi | Asunto Oy Helsingin Fasaanilinna |
|---|---|
| Isännöitsijän yhteystiedot | Ardour Oy, Jussi Vikström, Urho Kekkosen katu 4-6, 00100, Helsinki, jussi.vikstrom@ardour.fi |
| Huolto | Huoltoyhtiö |
| Hissi | Ei |
| Taloyhtiöön kuuluu | 9 porraskäytävää. Liiketila 24 kpl, 1 312 m2 Asuinhuoneisto 78 kpl, 4 233 m2 Toimistohuoneisto 2 kpl, 260 m2 Muu 6 kpl, 256 m2 |
| Taloyhtiön autopaikat | Piha-autopaikkoja: 17 kpl, Muut tiedot: Asukaspysäköintitunnus B, Punavuori, Eira: 60 €/kuukausi (1.12. alkaen 64,50 €/kuukausi). Täyssähköinen ajoneuvo 45 €/kuukausi (1.12. alkaen 48,40 €/kuukausi). |
| Muuta taloyhtiöstä | Vinttikomero, kaapeli-tv, pesutupa ja pyörävarasto |
| Tehdyt remontit | 1960 Katon korjaus 1990 Ikkunat 1990 Sähkösaneeraus 1991 Lämmönjakolaitteiden uusiminen 1999 Porrashuonemaalaukset 2004 Putkistosaneeraus 2004 Julkisivuremontti 2004 Katon maalaus 2009 Kiinteistön kuntoarvio 2010 Vesikattojen kunnostus 2012 Yhtiön kunnossapitovastuulle kuuluvia huoneistokorjauksia 2013 Porraskäytävien ulko-ovien kunnostus 2013 Yhtiön kunnossapitovastuulle kuuluvia huoneistokorjauksia 2013 Myymälätilojen ikkunakorjauksia ja kunnostuksia 2013 Rännien lämmityskaapeleiden uusiminen 2014 Kadunpuoleisen fasadin rappausvaurion korjaus 2015 Myymälätilojen ikkunalasituksien uusiminen 2015 Myymälätilojen ulko-ovien kunnostus 2016 Pihakannen kuntotutkimus 2018-2019, 2021 Pihakansikorjaus 2020 Katon kuntoarvio: raportin perusteella välttämättömät työt mm. piippujen ja vuotovahinkojen sekä ullakkotilojen korjausta 2021 Kiinteistön kuntoarvio, Kiwa Inspecta 2021 Kattoturvatuotteet, lumiesteet 2021-2022 Katon kunnon ylläpitotoimet, turvavarusteiden täydennys 2023 Porraskäytävien 7 C ja 3-5 C pinnotteiden korjaus 2023 Kattoturvalaitteiden täydennys 2024 Katon saattolämmityskaapeleiden korjaus 2024 Ilmanvaihtoon liittyviä korjauksia 2024 Sähköjärjestelmien ylläpito |
| Energialuokka | E2018. On lain edellyttämä energiatodistus. Voimassa: 16.09.2031 |
| Tontin pinta-ala | 3 162 m² |
| Tontin omistus | Oma |
| Kiinteistötunnus | 91-5-88-2 |
| Kaavoitustiedot | Helsingin kaupunki, Kaupunkiympäristön asiakaspalvelu, p. +358 931022111, Työpajankatu 8, 00580 Helsinki. |
| Kaavoitustilanne | Asemakaava |
Palvelut ja liikenneyhteydet
| Palvelut | Lähikauppa K-Market Iso Roba, n. 130 m. Viiskulman terveysasema, Pursimiehenkatu 4, n. 500 m. Yksityiset lääkäripalvelut mm. Eiran lääkärikeskus, Laivurinkatu 29, n. 750 m. Posti Punavuori, Annankatu 8, n. 180 m. |
|---|---|
| Koulut | Helsingin eurooppalainen koulu, n. 400 m, Helsingin normaalilyseo, Ratakatu 6, n. 270 m, Snellmannin ala-asteen koulu, Punavuorenkatu 8-10, n. 450 m, Tehtaankadun ala-aste, Tehtaankatu 15, n. 850 m, Elias-koulu, Ehrensvärdintie 31-35, n. 1 km, Grundskolan Norsen, Cygnaeus enheten, n. Umioninkatu 2, n. 650 m. |
| Päiväkodit | Lähietäisyydellä runsaasti päiväkoteja, mm. Päiväkoti Eira, Päiväkoti Meripirtti, Päiväkoti Onnela, Päiväkoti Tähtitorni, Päiväkoti Haukka, Päiväkoti Rööperi, Päiiväkoti Elias, |
| Liikenneyhteydet | Sekä raitiovaunu- että bussipysäkki kivenheiton päässä. |
Muut lisätiedot
| Muut kaupan kannalta merkittävät tiedot | Ei ole. |
|---|





