Tervetuloa tutustumaan tähän tyylikkääseen ja huolellisesti hoidettuun paritalokotiin Pohjassa! Sekä koulu että Päivölän kauppakeskus sijaitsevat sopivan lähellä. Erinomaiset kulkuyhteydet valtaväylille ja Seinäjoen keskustaan. Rauhallinen, lapsiperheille hyvin sopiva naapurusto.
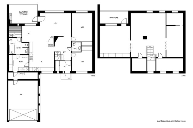
Tämän kodin sisääntulokerroksessa on kaksi makuuhuonetta. Avara olohuone yhdistyy ruokailutilaan, jonka kautta päästään hyvin varusteltuun keittiöön. Pesuhuoneessa kylpyamme sekä oma sauna. Kodinhoitohuoneessa reilusti työ- ja kaappitilaa. Yläkerrassa lisäksi paljon neliöitä harraste- ja säilytystiloiksi.
Sisätiloja ja talotekniikkaa on uusittu, mm. vesikate uusittu vuonna 2023, pinnat vuonna 2017, keittiö remontoitu vuonna 2011 ja pesutilat saneerattu vuonna 2006. Kiinteistön ja rakennuksen hallinta on jaettu hallinnanjakosopimuksella, ei tarvetta yhtiökokouksiin tai muihin asunto-osakeyhtiön velvoitteisiin.
Myös tämän kodin siisti pihapiiri ihastuttaa. Katettu takaterassi sekä paviljonki tarjoavat suojaisan ajanviettopaikan. Takaterassilla voi nauttia iltapäivän ja illan auringosta. Myös etupihan puolella terassi, johon aamuaurinko miellyttävästi paistaa. Lisäksi tilava autokatos sekä pihapaikat useammalle autolle.
Ota yhteyttä ja varaa yksityinen esittelyaikasi!
Myyntipäällikkö YKV, LKV Justus Kareno
p. 050 309 7500, justus.kareno@huoneistokeskus.fi.
Tilaa ilmainen arviokäynti
Asunnonvaihto kannattaa aloittaa nykyisen asunnon hinnan arvioinnilla. Näin saat raamit uusille unelmillesi.
Asunnon perustiedot
| Kotiavain | 80479910 |
|---|---|
| Osoite | Vallinkatu 4 B, 60120 Seinäjoki |
| Tyyppi | Paritalo |
| Huoneistoselitelmä | 3h, k, ph, s, wc, autokatos, (harraste/ullakkotilat) |
| Huoneet | 3 |
| Asuintilojen pinta-ala | 111 m² |
| Muiden tilojen pinta-ala | 24.5 m² |
| Kokonaispinta-ala | 135.5 m² |
| Lisätietoja pinta-alasta | Ilmoitettu pinta-ala perustuu rakennuspiirustuksiin. Yläkerran tilat eivät sisälly ilmoitettuun kerrosalaan. Yläkerran laajennukseen ei ole haettu rakennuslupaa eikä sitä jälkikäteen ole mahdollista saada asuintiloiksi asemakaavan rajoitusten vuoksi. Rakennusvalvontaviranomaisen rekisterissä olevat tiedot kiinteistöllä sijaitsevasta rakennuksesta: kokonaisala 271 m², kerrosala 271 m², huoneistoala: A 3h+k 111 m² ja B 4 h+k 107 m². . Tarkistusmitattu: Ei |
| Asuinkerrosten määrä | 1 |
| Rakennusvuosi | 1986 |
| Vapautuminen | Sopimuksen mukaan |
Hinta ja kustannukset
| Myyntihinta | 245 000 € |
|---|---|
| Velaton hinta | 245 000 € |
| Muut maksut | Normaalit omakotitalokiinteistön kustannukset mm. varainsiirtovero, vakuutukset, vesi, sähkö, hulevesi. Hallinnanjakosopimuksen mukaisesti kumpikin puoli vastaa omista vakuutus-, kiinteistövero-, vesi-, sähkö-, ja jätehuoltomaksuista. Toteutunut sähkön kokonaiskulutus ollut vuonna 2025 noin 19 000 kWh, tämän kustannus ollut (siirto + osto) 2545,40 €. |
| Kiinteistövero | 477,74 € / vuosi |
| Sähkölämmityksen kulutus | 19000 |
Asunnon lisätiedot
| Sauna | Oma sauna |
|---|---|
| Tehdyt remontit | Yläkerran tilat noin 59 m² otettu käyttöön vuonna 1995 ( 2h, aula ja wc). Laajennukseen ei haettu rakennuslupaa eikä sitä jälkikäteen ole mahdollista saada asuintiloiksi kaavamääräysten vuoksi. Yläkerran tilat eivät siten ole huoneisto- tai kerrosalassa ilmoitettuja tiloja vaan ullakon säilytys/harrastetilaa. |
| Asunnon kunto | Hyvä |
| Energialuokka | E2018. On lain edellyttämä energiatodistus. Voimassa: 28.09.2033 |
| Lämmitysjärjestelmän kuvaus | Sähkö, ilmalämpöpumppu ja takka |
| Tulisija | Varaava takka |
| Sähköliittymä siirtyy | Kyllä |
Asunnon tilat ja materiaalit
| Pääasiallinen rakennusmateriaali | Tiili |
|---|---|
| Keittiön kuvaus | Liesi (Induktioliesi), työtasot (laminaatti), seinät (maali), lattiat (vinyyli), jääkaappi, erillinen pakastin, erillisuuni, liesituuletin, astianpesukone ja liesi |
| Kylpyhuoneen kuvaus | WC-istuin, lattialämmitys ja kylpyamme, seinät (kaakeli), lattiat (laatta) |
| WC-tilojen kuvaus | Lukumäärä: 2, seinät (Kaakeli), lattiat (Laatta) |
| Saunan kuvaus | Seinät (puu), lattiat (laatta), Sähkökiuas |
| Kodinhoitohuoneen kuvaus | Lattiat (laatta), seinät (maali ja kaakeli) |
| Olohuoneen kuvaus | Seinät (maali), lattiat (vinyyli) |
| Makuuhuoneen kuvaus | Lukumäärä: 2, seinät (tapetti), lattiat (vinyyli) |
| Säilytystilojen kuvaus | Kylmä varasto, jonne kulku kodinhoitohuoneesta. Autokatos, joka muutettu suljetuksi (kylmä) tilaksi. Edelleen autokatos, ei haettu muutoslupaa talliksi. |
| Kattotyyppi | Harjakatto |
| Katon kuvaus | Pelti |
Asunnon tontti
| Tontin omistus | Oma |
|---|---|
| Kiinteistötunnus | 743-6-81-4 |
| Tontin pinta-ala | 1 167 m² |
| Tie perille | Kyllä |
| Rakennusoikeuden pinta-ala | 268.41 |
| Tehokkuusluku | 0.23 |
| Lisätietoja rakennusoikeudesta | Tontin rakennusoikeus on käytetty. |
| Kaavoitustiedot | Seinäjoen kaupunki, kaavoitus. |
| Kaavoitustilanne | Asemakaava |
Palvelut ja liikenneyhteydet
| Palvelut | Päivölän kauppakeskus noin 1 km. |
|---|---|
| Koulut | Pohja noin 1 km. |
| Päiväkodit | Pohja noin 1 km. |






