Tervetuloa tutustumaan poikkeukselliseen omakotitaloon idyllisessä ruukkimiljöössä – Åminneforsissa, lähellä viehättäviä Billnäsin ja Fiskarsin ruukkikyliä! Tämä näyttävä vuonna 1939 rakennettu ns. Amerikan Villa henkii historiaa, mutta tarjoaa asumismukavuutta täysin nykyaikaisessa muodossa.
Alun perin neljän perheen kodiksi rakennettu talo on vuosien saatossa peruskorjattu ja yhdistetty yhdeksi isoksi, n. 250 m²:n suuruiseksi kodiksi, jossa tilaa riittää suurellekin perheelle tai monipuoliseen toimintaan. Asuinhuoneita on 8–9, ja kokonaispinta-alaa on n. 330 m². Tämä talo hurmaa niin tilallaan kuin tunnelmallaan – ja tarjoaa mahdollisuuden myös esim. Airbnb-majoitustoimintaan!
Sijainti on ainutlaatuinen: luonnon rauhaa, historiallista miljöötä ja monipuolisia palveluita. Nord Centerin laadukkaat golf- ja ravintolapalvelut ovat kivenheiton päässä, ja Karjaan sekä Pohjan koulut ja päiväkodit ovat helposti saavutettavissa. Tämä on koti, jossa arki ja vapaa-aika kohtaavat täydellisesti.
Reilun 3.400 m²:n puutarhatontti antaa tilaa elää ja leikkiä – täällä viihdytään niin kesäpäivien puutarhajuhlissa kuin talven lumileikeissäkin.
Tervetuloa ihastumaan – tällaisia koteja on harvoin tarjolla!
Esittely
Su 24.5.2026 klo 15.30 – 16.00
Esittelijä

Tilaa ilmainen arviokäynti
Asunnonvaihto kannattaa aloittaa nykyisen asunnon hinnan arvioinnilla. Näin saat raamit uusille unelmillesi.
Asunnon perustiedot
| Kotiavain | 80459439 |
|---|---|
| Osoite | Stålbackantie 69, 10410 Åminnefors |
| Tyyppi | Omakotitalo |
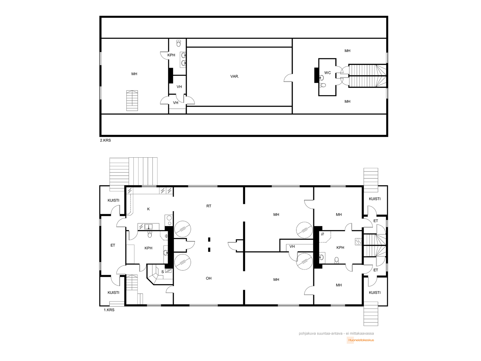
| Huoneistoselitelmä | Ak: Oh/rt, k, kirjasto, 3 mh, kph/wc, s,et. Yk: mh/th, wc, ullakko, pieni kaksio, kph. Kellari |
| Huoneet | 6 |
| Asuintilojen pinta-ala | 250 m² |
| Muiden tilojen pinta-ala | 80 m² |
| Kokonaispinta-ala | 330 m² |
| Lisätietoja pinta-alasta | Pinta-alat perustuvat rakennuslupa-asiakirjoihin eikä pinta-aloja ole tarkastusmitattu, joten todelliset nykystandardin mukaan laskettavat pinta-alat voivat siten poiketa olennaisestikin ilmoitetuista. Todelliset pinta-alat voivat siten olla ilmoitettua vähemmän tai enemmän.. Tarkistusmitattu: Ei |
| Rakennusvuosi | 1939 |
| Käyttöönottovuosi | 1939 |
| Vapautuminen | Muu ehto: viimeistään 2 kk kaupasta/sopimuksen mukaan |
Hinta ja kustannukset
| Myyntihinta | 179 000 € |
|---|---|
| Velaton hinta | 179 000 € |
| Muut maksut | Nuohottu viimeksi v. 2023/Nuohousmaksu n. 60 €. |
| Kiinteistövero | 489,33 € / vuosi |
| Vesi- ja jätevesimaksu | 50 € / kk |
| Puhtaanapito | 28 € / kk |
| Lämmityskustannukset | 200 € / kk |
Asunnon lisätiedot
| Sauna | Oma sauna |
|---|---|
| Muuta kauppaan kuuluvaa | Lisätietoja sisältyvistä varusteista: ilmalämpöpumppu, irralliset kaapit, istutukset, jätesäiliö, kaapistot, kiinteät valaisimet, lämminvesivaraaja, naulakko, parveke-/terassilasitus, sälekaihtimet/rullaverhot, verhotangot |
| Tehdyt remontit | 2009: Kattoremontti, yläkerran “kaksio”, alakerran kph:eet, saunaa remontoitu, lautalattioiden hionta, julkisivun maalaus ja päätyjen pylväät. 2023: Ilmalämpöpumppu. Edell. omistajan aikana isommat remontit; mm. k, salaojat, 4:n perheen talo muutettu yhdeksi. |
| Asunnon kunto | Tyydyttävä |
| Energialuokka | E2018. On lain edellyttämä energiatodistus. Voimassa: 06.05.2036 |
| Lämmitysjärjestelmän kuvaus | Ilmalämpöpumppu, puu, sähkö, sähköpatterilämmitys ja uuni |
| Tulisija | 4 pönttöuunia ja puuhella |
| Vesihuollon kuvaus | Talossa on ollut aikanaan 4:n perheen asunnot. Vanhat vesipisteet on poistettu. |
| Sähköliittymä siirtyy | Kyllä |
Asunnon tilat ja materiaalit
| Pääasiallinen rakennusmateriaali | Puu |
|---|---|
| Keittiön kuvaus | Keittiössä keltainen kaapisto, jk-pak. -15, apk -17, liesituuletin, keraaminen taso, erill.uuni, puuhella. Lattialämmitys ei toimi. |
| Kylpyhuoneen kuvaus | Kylpyhuoneissa lattiat laattaa ja seinät laattaa ja paneelia. Suihkukaapit, pk-liitännät. Lattialämmitykset toimii. Peilikaappi ja peili. |
| WC-tilojen kuvaus | Lukumäärä: 4, 4 erillistä wc:tä. Lattiat laattaa, seinät laattaa, levyä, maalattu. “Kaksiossa” vedeneristys. |
| Saunan kuvaus | Saunassa lattia laattaa, seinät paneloitu, sähkökiuas. Puukiukaalle hormivalmius. |
| Olohuoneen kuvaus | Alakerran huoneissa lautalattiat , seinät ja katot maalatut |
| Makuuhuoneen kuvaus | Lukumäärä: 7 |
| Säilytystilojen kuvaus | Ullakko ja kellari n. 2 m korkea, Kellari n. 2 m korkea |
| Kattotyyppi | Harjakatto/Tiilikate |
Asunnon tontti
| Tontin omistus | Oma |
|---|---|
| Kiinteistötunnus | 710-684-1-83 |
| Tontin tyyppi | Tasamaatontti |
| Tontin pinta-ala | 3 400 m² |
| Tie perille | Kyllä |
| Lisätietoja tontista | Tasainen puutarhatontti, alapiha rajoittuu metsään |
| Rakennusoikeuden pinta-ala | 250 |
| Lisätietoja rakennusoikeudesta | AO, 250 m2, käytetty 246 m2 |
| Kaavoitustiedot | Raaseporin kaupunki |
| Kaavoitustilanne | Yleiskaava |
Palvelut ja liikenneyhteydet
| Palvelut | Karjaalla n. 7 km |
|---|---|
| Koulut | Ruotsinkielinen koulu Billnäs Suomenkielinen koulu Pohja tai Karjaa Yläkoulut Karjaalla |
| Päiväkodit | Pohjassa sekä ruotsin- että suomenkielinen |
| Liikenneyhteydet | Paikallisbussipysäkki n. 300 m. Ruukkialueet Billnäs n. 2 km ja Fiskars n. 7 km, Nordcenter Golf n. 1,5 km, Påminne-laskettelukeskus/Mäkipyöräily/Mäkiautorata/kahvila n. 500 m. Rautatieasema n. 7 km. Kevyenliikenteenväylä n. 100 m. |
Muut lisätiedot
| Pihan kuvaus | Tasainen puutarhapiha |
|---|---|
| Ranta | Ei rantaa |





