Tämä kodikas omakotitalo sijaitsee rauhallisella Rakokiven alueella Lahdessa.
Vuonna 1982 valmistunut talo tarjoaa tilavat 102 m² asuintilat yhdessä tasossa.
Lisäksi löytyy myös autotalli/varasto sekä kaksikin verantaa.
Kaikenkaikkiaan pinta-ala 149 m2.
Talo on rakennettu omalle 1053 m² tontille, mikä tarjoaa runsaasti tilaa niin puutarhanhoitoon kuin vapaa-ajan viettoon. Tontti rajoittuu puistoalueeseen, vain yhdellä rajalla toiseen asuinkiinteistöön.
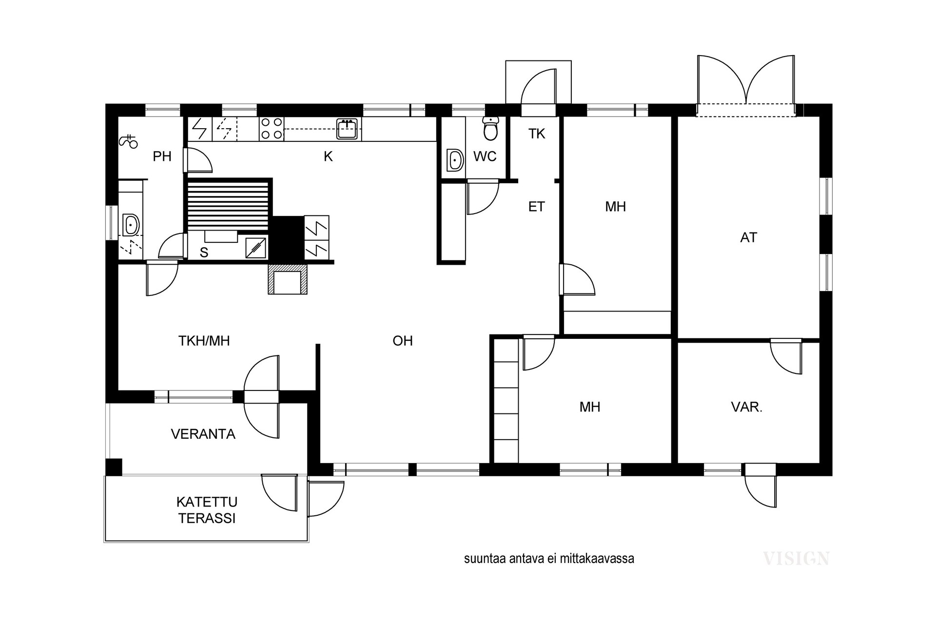
Talon sydän on olohuoneen jatkeena oleva takkahuone, jossa on lämpöä varaava takka luomassa tunnelmaa viileinä iltoina.
Keittiö on uusittu vuonna 2000 ja se on varustettu nykyaikaisilla kodinkoneilla. Kaksi makuuhuonetta tarjoavat mukavat puitteet lepoon ja rentoutumiseen. Kylpyhuone on peruskorjattu vuonna 1999 ja sinne on juuri asennettu uusi suihkukaappi.
Sauna on myös remontoitu vuonna 1999, ja tarjoaa rentouttavat löylyt sähkökiukaan lämmössä mahdollisuus vaihtaa puukiukaaseen.
Kaksi katettua terassia laajentavat oleskelutiloja ulos ja tarjoavat mainiot puitteet kesäpäivistä nauttimiseen.
Talo on pidetty hyvässä kunnossa, ja vuosien varrella on tehty useita parannuksia, kuten katon pesu ja pinnoitus vuonna 2019 sekä ikkunoiden ja ulko-ovien uusiminen vuonna 2021. Sähkölämmityksen lisäksi talossa on ilmalämpöpumppu ja puulämmitys, mikä tuo joustavuutta lämmityskustannuksiin.
Rakokiven alue on tunnettu rauhallisuudestaan ja vehreistä ulkoilumahdollisuuksistaan. Alueelta löytyy myös hyvät palvelut ja kulkuyhteydet Lahden keskustaan. Tämä talo tarjoaa erinomaisen mahdollisuuden asua viihtyisällä alueella omassa rauhassa. Tartu tilaisuuteen ja tule tutustumaan tähän monipuoliseen kotiin!
Ainoastaan yksityisesittelyt, joten sovi oma kiireetön aikasi!
Tilaa ilmainen arviokäynti
Asunnonvaihto kannattaa aloittaa nykyisen asunnon hinnan arvioinnilla. Näin saat raamit uusille unelmillesi.
Asunnon perustiedot
| Kotiavain | 80462297 |
|---|---|
| Osoite | Sienitie 9, 15550 Lahti |
| Tyyppi | Omakotitalo |
| Huoneistoselitelmä | 4h,k,s,kph,veranta, autotalli, pihavarasto |
| Huoneet | 4 |
| Asuintilojen pinta-ala | 102 m² |
| Muiden tilojen pinta-ala | 47 m² |
| Kokonaispinta-ala | 149 m² |
| Lisätietoja pinta-alasta | Kauppahinta ei ole pinta-ala perusteinen.. Tarkistusmitattu: Ei |
| Asuinkerrosten määrä | 1 |
| Rakennusvuosi | 1982 |
| Käyttöönottovuosi | 1982 |
| Vapautuminen | Heti |
Hinta ja kustannukset
| Myyntihinta | 115 000 € |
|---|---|
| Velaton hinta | 115 000 € |
| Muut maksut | Vesi- ja viemäri sekä jätemaksut kulutuksen ja taksojen mukaisesti. |
| Kiinteistövero | 385 € / vuosi |
| Sähkölämmityksen kulutus | 8500 |
Asunnon lisätiedot
| Sauna | Oma sauna |
|---|---|
| Asunnon kunto | Tyydyttävä |
| Energialuokka | D2018. On lain edellyttämä energiatodistus. Voimassa: 19.12.2034. Laadittu 19.12.2024 |
| Lämmitysjärjestelmän kuvaus | Sähkö, ilmalämpöpumppu, puu ja lattialämmitys |
| Tulisija | Varaava takka |
| Vesihuollon kuvaus | Käyttövesiputket ovat muovia suojaputkessa. Alkuperäiset. |
| Viemäri | Viemäriputket ja kaivot ovat muovia. Alkuperäiset. |
| Sähköliittymä siirtyy | Kyllä |
Asunnon tilat ja materiaalit
| Pääasiallinen rakennusmateriaali | Puurakenteinen, mineraalivillaeriste, tiiliverhous |
|---|---|
| Keittiön kuvaus | Liesi (Keraaminen liesi), seinät (kaakeli ja maali), lattiat (parketti), astianpesukone, liesi, liesituuletin, erillinen pakastin ja jääkaappipakastin, Uusittu kokonaisuudessaan v.2000. |
| Kylpyhuoneen kuvaus | Suihkukaappi ja lattialämmitys, seinät (kaakeli), lattiat (laatta), Peruskorjattu v.1999 kokonaan. Suihkukaappi asennettu v.2025. Tilat ovat teknisen ikänsä päässä ja tulee peruskorjata (ei kosteutta tarkastuksessa). |
| WC-tilojen kuvaus | Lukumäärä: 1, WC-istuin, peilikaappi, pesuallas ja bidee-suihku, seinät (Puolipaneeli ja tapetti), lattiat (Muovimatto), Alkuperäiskuntoinen. |
| Saunan kuvaus | Seinät (paneeli), lattiat (laatta), Sähkökiuas ja mahdollisuus puukiukaaseen, hormi seinän takana., Peruskorjattu v.1999. |
| Kodinhoitohuoneen kuvaus | Pesukoneliitäntä, lattiat (muovimatto), seinät (maali) |
| Olohuoneen kuvaus | Seinät (tapetti), lattiat (parketti) |
| Makuuhuoneen kuvaus | Lukumäärä: 2, seinät (tapetti ja maali), lattiat (vinyyli), Makuuhuoneissa ja takkahuoneessa laminaatin alle on jätetty lautalattia. |
| Säilytystilojen kuvaus | Kylmä ulkovarasto ja seinäkaapit |
| Kattotyyppi | Harjakatto |
| Katon kuvaus | Betonitiili |
Asunnon tontti
| Tontin omistus | Oma |
|---|---|
| Kiinteistötunnus | 398-36-442-1 |
| Tontin tyyppi | Tasamaatontti |
| Tontin pinta-ala | 1 053 m² |
| Tie perille | Kyllä |
| Lisätietoja tontista | Tasainen tontti tien päässä, joka rajoittuu VP-alueeseen ja naapuri vain yhdellä rajalla, |
| Lisätietoja rakennusoikeudesta | AO-1 omakotirakennusten ja muiden enintään kahden perheen talojen korttelialue, jossa kullekin rakennuspaikalle saa rakentaa enintään 250 m2 kerrosalaa. |
| Kaavoitustilanne | Asemakaava ja yleiskaava |
| Muut rakennukset | Pihavarasto |






