Tyylikäs, avara ja valoisa v. 2006 valmistunut huolella pidetty omakotitalo keskellä rauhallista pientaloaluetta. Reilut asuintilat sekä erinomaiset alakerran vapaa-ajanviettotilat, harrastehuoneet ja varastotilat. Suuri terassiparveke ilta-aurinkoon päin sekä suojainen piha-alue.
Nikinmäen alueelta löytyvät hienojen ulkoilualueiden lisäksi mm. lähikauppa ja koulu.
Sovi oma esittelyaikasi ja tule tutustumaan hienoon kotiin!
Tilaa ilmainen arviokäynti
Asunnonvaihto kannattaa aloittaa nykyisen asunnon hinnan arvioinnilla. Näin saat raamit uusille unelmillesi.
Asunnon perustiedot
| Kotiavain | 80459178 |
|---|---|
| Osoite | Salakkakuja 3, 01490 Vantaa |
| Tyyppi | Omakotitalo |
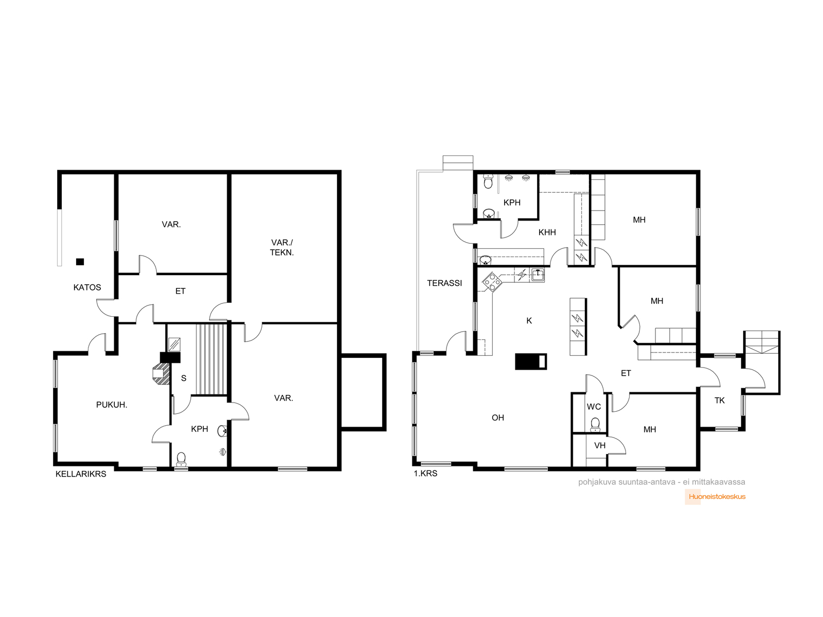
| Huoneistoselitelmä | 4h, k, khh, kh/wc, erill. wc, vh, alakerrassa saunaosasto, takkahuone, 2 harrastehuonetta, 2 varastohuonetta |
| Huoneet | 4 |
| Asuintilojen pinta-ala | 113 m² |
| Muiden tilojen pinta-ala | 137 m² |
| Kokonaispinta-ala | 250 m² |
| Lisätietoja pinta-alasta | Kerrosala 129 m2. Pinta-alatiedot on saatu rakennuspiirustuksista eikä niitä ole tarkistusmitattu. |
| Asuinkerrosten määrä | 2 |
| Rakennusvuosi | 2006 |
| Käyttöönottovuosi | 2006 |
| Vapautuminen | Muu ehto: 2-3 kk / sopimuksen mukaan |
Hinta ja kustannukset
| Myyntihinta | 410 000 € |
|---|---|
| Velaton hinta | 410 000 € |
| Muut maksut | Sähkönkulutus ollut keskim. n. 22.000 Kwh/vuosi. Kiinteistövero 736,28. Nuohous 70 e/v. Lisäksi vesi kulutuksen mukaan sekä kiinteistövakuutus. |
Asunnon lisätiedot
| Sauna | Oma sauna |
|---|---|
| Muuta kauppaan kuuluvaa | Lisätietoja sisältyvistä varusteista: hälytys- /valvontajärjestelmä, kaapistot, sälekaihtimet/rullaverhot, verhotangot, (Kauppaan ei kuulu: Yhden makuuhuoneen vaatekaappi.) |
| Tehdyt remontit | IV-kanavien puhdistus 2021, julkisivumaalaus 2017, katon puhdistus ja pesu 2016, lattialämmityksen termostaatit uusittu 2016, alakerran 2 seinään sisustuskiveä 2016, terassit öljytty 2025, sokkelin maalaus 2014, wc istuimet vaihdettu 2015-16, suihkut ja hanat vaihdettu 2012, keittiön lattiaan laatta parketin tilalle 2024 (jääkaapista vuotanut vettä parketille), ulko-ovi vaihdettu, sisämaalauksia, katon puhdistusta ym. |
| Asunnon kunto | Hyvä |
| Lisätietoja kunnosta | Kuntotarkastus teetetään ennen kauppaa ostajan kanssa yhdessä. |
| Energialuokka | D2018. On lain edellyttämä energiatodistus |
| Lämmitysjärjestelmän kuvaus | Puu, sähkö ja uuni/takka, sähköinen lattialämmitys |
| Tulisija | Takka |
| Sähköliittymä siirtyy | Kyllä |
Asunnon tilat ja materiaalit
| Pääasiallinen rakennusmateriaali | Puu |
|---|---|
| Keittiön kuvaus | Liesi (erillisuuni, liesitaso), työtasot (kivi), lattiat (laatta), astianpesukone, erillisuuni, erillinen pakastin, jääkaappi ja liesitaso, liesituuletin / hormi, Välitila lasi |
| Kylpyhuoneen kuvaus | Lattialämmitys, suihku, peili ja wc-istuin, seinät (kaakeli), lattiat (laatta) |
| WC-tilojen kuvaus | Lattialämmitys ja bidee-suihku, seinät (Osalaatoitus), lattiat (Laatta) |
| Saunan kuvaus | Lattiat (laatta), Puukiuas |
| Kodinhoitohuoneen kuvaus | Lattialämmitys, lattiakaivo, pesukoneliitäntä, pöytätaso ja pesuallas, lattiat (laatta) |
| Olohuoneen kuvaus | Lattiat (parketti) |
| Makuuhuoneen kuvaus | Lukumäärä: 3, lattiat (parketti) |
| Muut huoneet ja tilat | Eteisessä ja porrastilassa seinäpatterit. |
| Säilytystilojen kuvaus | Alakerran varastot, Alakerran varastot |
| Kattotyyppi | Harja |
| Katon kuvaus | Tiili |
Asunnon tontti
| Tontin omistus | Oma |
|---|---|
| Kiinteistötunnus | 92-86-16-1 |
| Tontin tyyppi | Rinnetontti |
| Tontin pinta-ala | 605 m² |
| Tie perille | Ei |
| Lisätietoja tontista | 1/2 hallinnanjakosopimuksen mukaisesti 1210 m2 tontista. |
| Tehokkuusluku | 0.2 |
| Kaavoitustiedot | AO erillispientalojen korttelialue |
| Kaavoitustilanne | Asemakaava |
| Muut rakennukset | Leikkimökki |






