Neljännen kerroksen kolmio rauhallisella alueella Ispoisissa.
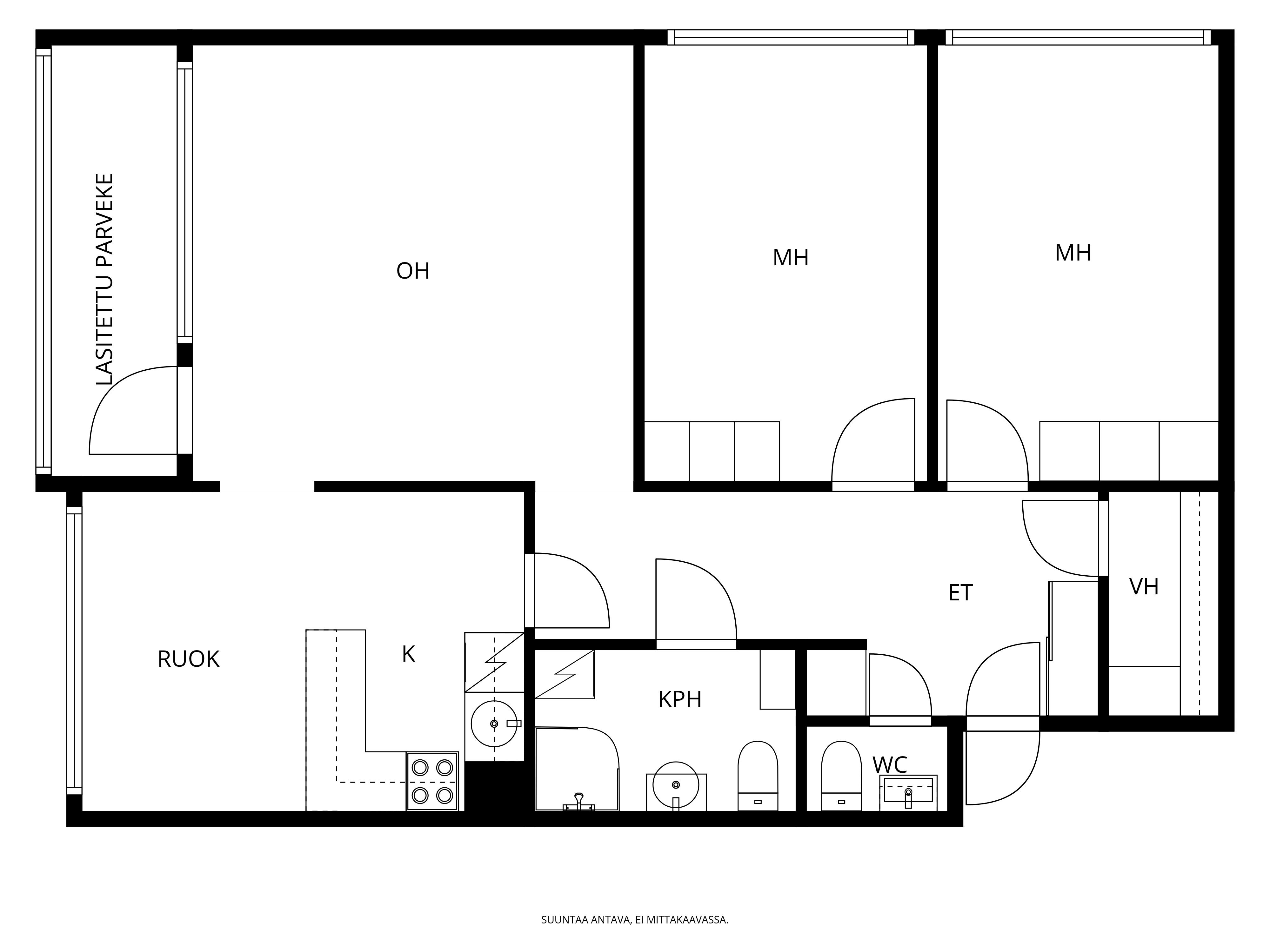
Pohja on toimiva, keittiö on tilava ja sinne sopii hyvin ruokapöytä. Olohuoneesta on käynti lasitetulle parvekkeelle, josta avarat näkymät ympäristöön. Kaksi makuuhuonetta, ikkunat rauhalliselle puolelle. Tilava kylpyhuone remontoitu putkiremontin yhdessä ja siellä myös wc-istuin, lisäksi asunnossa erillinen wc.
Asunto kaipaa päivitystä, joten remontoimalla saat tästä juuri sinulle sopivan kodin.
Taloyhtiö on hyvässä kunnossa, suuria remontteja on tehty.
Sijainti on mitä parhain. Alueella palvelut lähellä ja julkinen liikenne toimiva. Upeat ulkoilumahdollisuudet, Katariinanlaakson luontopolku, uimaranta ja talviuintipaikka lähellä.
Tervetuloa tutustumaan!
Esittely
Su 3.5.2026 klo 15.00 – 15.30
Esittelijä

Tilaa ilmainen arviokäynti
Asunnonvaihto kannattaa aloittaa nykyisen asunnon hinnan arvioinnilla. Näin saat raamit uusille unelmillesi.
Asunnon perustiedot
| Kotiavain | 80463044 |
|---|---|
| Osoite | Rätiälänkatu 17, 20810 Turku |
| Tyyppi | Kerrostalo |
| Omistusmuoto | Oma |
| Huoneistoselitelmä | 3 h, k, kph, p |
| Huoneet | 3 |
| Asuintilojen pinta-ala | 76 m² |
| Kokonaispinta-ala | 76 m² |
| Lisätietoja pinta-alasta | Ei tarkistusmitattu. Pinta-alat saattavat tämän ikäisissä kohteissa (yhtiö rekisteröity ennen 01.01.1992) poiketa olennaisestikin asuinrakennusten nykyisten mittaustapojen ja standardien (SFS 5139) mukaan laskettavasta asuintilojen pinta-alasta. Pinta-ala voi siis olla edellä mainittua pienempi tai suurempi.. Tarkistusmitattu: Ei |
| Kerros | 4/8 |
| Rakennusvuosi | 1970 |
| Käyttöönottovuosi | 1970 |
| Vapautuminen | Muu ehto: 2 kk kaupasta / sopimuksen mukaan |
Hinta ja kustannukset
| Myyntihinta | 142 000 € |
|---|---|
| Velkaosuus | 0 € |
| Velaton hinta | 142 000 € |
| Neliöhinta | 1 868,42 €/m² |
| Hoitovastike | 249,10 € / kk |
| Yhtiövastike yhteensä | 250,10 € / kk |
| Muu vastike | 1 € / kk |
| Muut maksut | Sähkön ja veden laskutus tapahtuu mittauksen mukaisesti 3 kuukauden välein. Lämmin vesi 12 €/kuutio, kylmävesi 4 €/kuutio. Sähkö 0,0862 € / KWh. Lenkkisauna 2€/kerta. Autotallipaikka iso 45 €/kk, autotallipaikka pieni 30 €/kk, lämpötolppapaikka 15 €/kk. Varainsiirtovero 1,5 % erääntyy ostajan maksettavaksi kaupantekotilaisuudessa. |
| Vesimaksu | Kulutuksen mukaan |
Asunnon lisätiedot
| Sauna | Taloyhtiössä sauna |
|---|---|
| Parveke | Kyllä |
| Parvekkeen kuvaus | Lasitettu ja sisäänvedetty |
| Asunnon kunto | Tyydyttävä |
| Lämmitysjärjestelmän kuvaus | Kaukolämpö |
| Sähköliittymä siirtyy | Ei |
| Lunastusoikeus yhtiöllä | Ei |
| Lunastusoikeus osakkailla | Ei |
Asunnon tilat ja materiaalit
| Pääasiallinen rakennusmateriaali | Betoni |
|---|---|
| Keittiön kuvaus | Liesi (Sähköhella), työtasot (laminaatti), seinät (tapetti ja maali), lattiat (muovimatto), jääkaappipakastin, erillinen pakastin, astianpesukone ja liesi |
| Kylpyhuoneen kuvaus | Suihku, suihkuseinä, pesukoneliitäntä, WC-istuin, peilikaappi, allaskaappi ja kylpyhuonekaapisto, seinät (kaakeli), lattiat (laatta) |
| WC-tilojen kuvaus | Lukumäärä: 1, WC-istuin, peilikaappi ja allaskaappi, seinät (Kaakeli), lattiat (Laatta) |
| Olohuoneen kuvaus | Seinät (tapetti), lattiat (parketti) |
| Makuuhuoneen kuvaus | Lukumäärä: 2, seinät (tapetti), lattiat (muovimatto) |
| Säilytystilojen kuvaus | Vaatehuone ja kaapistot |
| Kattotyyppi | Tasakatto |
| Katon kuvaus | Huopa |
Taloyhtiö
| Taloyhtiön nimi | Asunto-osakeyhtiö Torniropo |
|---|---|
| Isännöitsijän yhteystiedot | Turun Isännöintikeskus Oy, Sami Siitonen, Yliopistonkatu 37 B, 20100, Turku, +358 2 65172165, sami.siitonen@turunisannointikeskus.fi |
| Huolto | Huoltoyhtiö |
| Hissi | Kyllä |
| Taloyhtiön autopaikat | Autohallipaikkoja: 24 kpl, Sähköpistokepaikkoja: 19 kpl, Autotalleja: 19 kpl |
| Muuta taloyhtiöstä | Pyörävarasto, kellarikomero, väestönsuoja, jäähdytetty kellari, pesutupa, kuivaushuone, mankeli ja urheiluvälinevarasto |
| Tehdyt remontit | 2024 Ilmanvaihdon nuohous, saunan lauteiden ja pesutilojen penkkien uusinta, palovaroittimet sekä elementtisaumojen tarkistus. 2023 Autolatausinfra kartoitus sekä palo-osastointikartoitus ja VSS-tarkastus, sekä korjaavat toimenpiteet. 2022 Yksittäistallien ovien uusiminen sekä porraskäytävien pääovien uusiminen ja esteettömyyden toteuttaminen. 2020 Yhteisautohallin kuntotutkimus, jätepisteen uudelleen järjestely sekä pihavalaistuksen parantaminen. 2019 Hissien kuntoarvio. 2018 Yhteisautohallin ovien uusiminen sekä ikkunoiden ja parvekeovien uusiminen. 2017 Saunaosaston saneeraus. 2016 Ilmastoinnin nuohous ja säätö sekä lukoston uusiminen. 2015 Porraskäytävien ala-aulojen maalaus. 2014 Käyttövesiputkistot uusittu, huoneistokohtaiset vesimittarit asennettu sekä viemäreiden sisäpuoleinen pinnoitussaneeraus. 2013 Porakaivon puhdistus ja uusi sähköpumppu. 2009 Lämmönsiirtimen uusiminen. 2002 Vesikatteiden uusiminen. 1999 Julkisivu- ja parvekesaneeraus. 1992 Kaukolämpöön liittyminen sekä autotallin kattopinnoitteen uusiminen. |
| Tulevat remontit | Kunnossapitotarve seuraavan viiden vuoden aikana: Pihan kunnostus ja vanhojen jätepisteiden jatkokäyttö. Julkisivun alaosien betonikorjaukset 2025. Julkisivutiilien kunnon tutkiminen seinien yläosasta. Ikkunoiden yläpuolelta seinän ja katon välisen sauman tiivistys. Vesikattojen kunnon tarkastaminen vuosittain. Märkätilasaneerauksia vastuunjakotaulukon osalta osakkaiden tekemien remonttien yhteydessä. Pesutuvan ja kuivaushuoneen kunnostus. Sisäverkon korjaukset. Yhteisautohalli korjaamisen/purkamisen ja tulevan toteutuksen suunnittelu 2024-2025. Yhtiökokous on päättänyt, että nykyinen autohallirakennus korjataan. Ensimmäinen kustannusarvio koko hankkeelle on 614 950,00 euroa. |
| Energialuokka | D2018. On lain edellyttämä energiatodistus. Voimassa: 28.08.2035 |
| Tontin pinta-ala | 7 679 m² |
| Tontin omistus | Oma |
| Kaavoitustiedot | Turun kaupunki p. 02 330 000 |
| Kaavoitustilanne | Asemakaava |





