Tämä tilava omakotitalo Lohjan Maksjoella tarjoaa erinomaiset puitteet perheelle, joka arvostaa tilaa ja omaa tonttia. Talo on rakennettu vuonna 1979 ja sen neliöt jakautuvat kahteen kerrokseen. Koko tontin pinta-ala on 1128 neliömetriä, mikä antaa kivasti tilaa omaan rauhaan. Talo sijaitsee hyvänkokoisen aidan ja portin takana, mikä lisää mukavasti yksityisyyttä. Talon etupiha on kivetty.
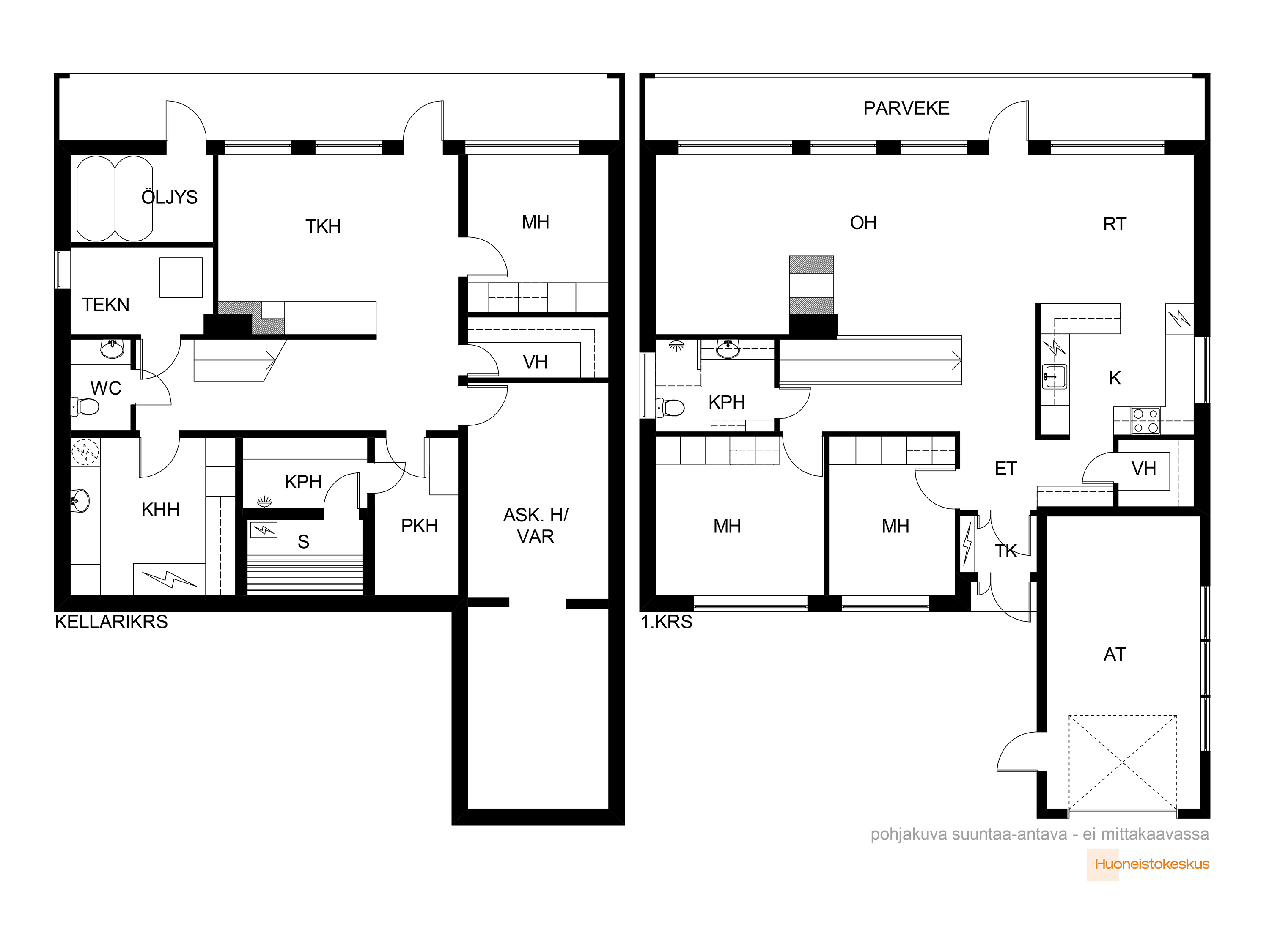
Sisääntulokerroksessa on kaksi makuuhuonetta, ja kellarikerroksessa kolmas makuuhuone sekä takkahuone, joka luo viihtyisän tunnelman. Olohuone on todella hyvänkokoinen ja sieltä pääsee suoraan parvekkeelle. Keittiö on remontoitu vuonna 2011 ja tarjoaa erinomaiset puitteet ruoanlaittoon.
Kellarikerroksessa sijaitsee kylpyhuone saunalla. Molemmissa kerroksissa on wc-tilat, ja säilytystilaa löytyy runsaasti kaapistoista ja kahdesta vaatehuoneesta. Lisäksi on suuri varastohuone.
Kiinteistön sijainti on erinomainen, sillä Ojamon kattavat palvelut ovat vain lyhyen matkan päässä. Koulut ja muut palvelut ovat myös helposti saavutettavissa.
Tämä koti on loistava tilaisuus, mikäli etsit tilavaa kotia hyvien kulkuyhteyksien ja palveluiden läheisyydestä. Sovi oma esittelyaikasi välittäjän kanssa. Tervetuloa!
Tilaa ilmainen arviokäynti
Asunnonvaihto kannattaa aloittaa nykyisen asunnon hinnan arvioinnilla. Näin saat raamit uusille unelmillesi.
Asunnon perustiedot
| Kotiavain | 80472587 |
|---|---|
| Osoite | Nummijuntintie 10, 08700 Lohja |
| Tyyppi | Omakotitalo |
| Huoneistoselitelmä | 5h,k,2xwc,2vh,khh,kph,s,parv,lämmin autotalli |
| Huoneet | 5 |
| Asuintilojen pinta-ala | 164 m² |
| Muiden tilojen pinta-ala | 95 m² |
| Kokonaispinta-ala | 259 m² |
| Lisätietoja pinta-alasta | Huoneistoala on 164 m2 rakennusluvan mukaan ja kokonaisala 259 m2 DVV-kortin mukaan. Ei tarkistusmitattu.. Tarkistusmitattu: Ei |
| Asuinkerrosten määrä | 2 |
| Rakennusvuosi | 1979 |
| Käyttöönottovuosi | 1979 |
| Vapautuminen | Sopimuksen mukaan |
Hinta ja kustannukset
| Myyntihinta | 218 000 € |
|---|---|
| Velaton hinta | 218 000 € |
| Muut maksut | Sähkönkulutus ollut keskimäärin n. 20000-22000 kwh/vuosi sisältäen talous-ja lämmityssähkön. Lämmitykseen käytetty pelkästään sähköä. |
| Kiinteistövero | 428 € / vuosi |
Asunnon lisätiedot
| Sauna | Oma sauna |
|---|---|
| Tehdyt remontit | Toimeksiantaja on hiljattain korjannut yläkerran makuuhuoneessa sattuneen vesivahingon katossa, joka johtui salamaniskusta. Lisäksi vakuutusyhtiön toimesta on korjattu vesivahingot keittiössä (jääkaappivuoto, myös olohuoneen parketti uusittu) ja kodinhoitohuoneessa (pesukonevuoto). |
| Asunnon kunto | Tyydyttävä |
| Energialuokka | Ei lain edellyttämää energiatodistusta. Omistaja hankkii energiatodistuksen. |
| Lämmitysjärjestelmän kuvaus | Sähkö, puu ja öljy |
| Tulisija | Kaksi avotakkaa |
| Sähköliittymä siirtyy | Kyllä |
Asunnon tilat ja materiaalit
| Pääasiallinen rakennusmateriaali | Puu ja tiili |
|---|---|
| Keittiön kuvaus | Kotimaiset valkoiset kaapistot, jääkaappi, arkkupakastin kellarissa, keraaminen liesitaso ja erillisuuni, liesituuletin hormiin, kalustemikroaaltouuni, astianpesukone ja tasovalaistus. |
| Kylpyhuoneen kuvaus | Kylpyhuone kellarikerroksessa. Pukuhuone, suihku ja sauna. Vesikiertoinen lattialämmitys (muoviputket). |
| WC-tilojen kuvaus | Lukumäärä: 2, Molemmissa kerroksissa erillinen wc, alkuperäisiä, laatoitettuja. Sisääntulokerroksen wc:ssä paikka suihkulle. |
| Saunan kuvaus | Saunassa sähkökiuas. |
| Olohuoneen kuvaus | Todella tilavasta olohuoneesta on käynti parvekkeelle. |
| Makuuhuoneen kuvaus | Lukumäärä: 3, Sisääntulokerroksessa on kaksi makuuhuonetta, kellarikerroksessa yksi makuuhuone sekä takkahuone. |
| Säilytystilojen kuvaus | Vaatehuone, Kaapistot, kaksi vaatehuonetta ja varastotilaa runsaasti. |
| Seinämateriaalien kuvaus | Huoneiston seinät ovat maalattuja/ tapetoituja. |
| Lattiamateriaalien kuvaus | Lattiat parkettia ja muovimattoa. |
| Kattotyyppi | Aumakatto |
| Katon kuvaus | Betonitiilikate |
Asunnon tontti
| Tontin omistus | Oma |
|---|---|
| Kiinteistötunnus | 444-429-4-198 |
| Tontin pinta-ala | 1 128 m² |
| Tie perille | Kyllä |
| Rakennusoikeuden pinta-ala | 282 |
| Tehokkuusluku | 0.25 |
| Lisätietoja rakennusoikeudesta | Lohjan kaupunki. |
| Kaavoitustiedot | Lohjan kaupunki. |
| Kaavoitustilanne | Asemakaava |
Palvelut ja liikenneyhteydet
| Palvelut | Lyhyt n. 1.5 km matka Ojamon kattaviin palveluihin, jossa mm. S-market, Lidl, Citymarket, Jysk, Lohjan sairaala yms. |
|---|---|
| Koulut | Ojamon koulu n. 2 km. |






