Tervetuloa kotiin – Yli-Maarian rauhaan ja laatuasumisen ytimeen
Tämä upea, moderni koti yhdistää ajattoman tyylin, laadukkaat materiaalit ja arjen toimivuuden täydelliseksi kokonaisuudeksi. Valoisa ja avara pohjaratkaisu tekee asumisesta viihtyisää – tilaa ja mukavuutta riittää isommallekin perheelle.
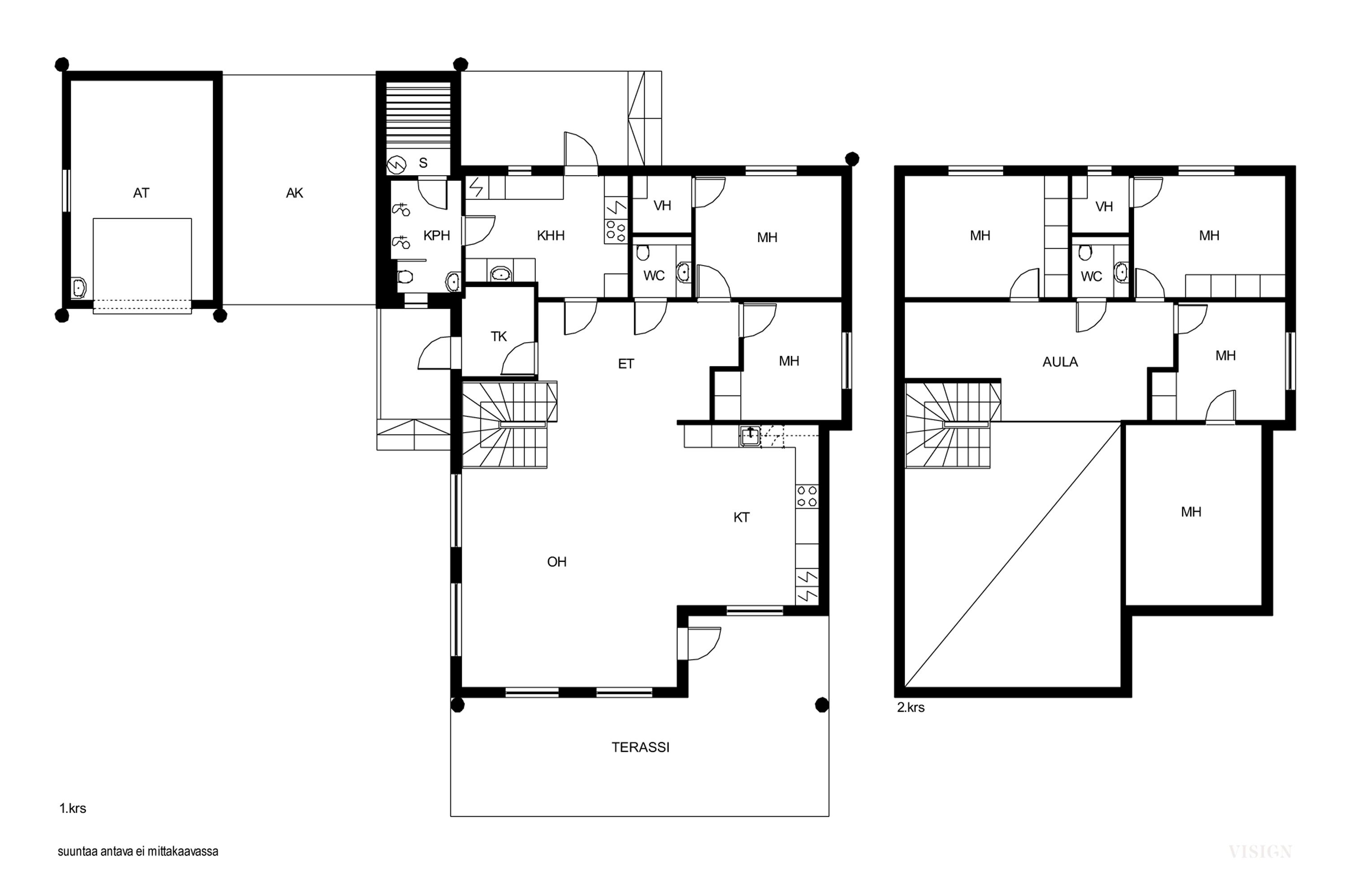
Alakerta – kodin sydän.
Alakerran valoisa olohuone ja upea, valkoinen korkeakiiltoinen puusepän työnä toteutettu avokeittiö muodostavat näyttävän ja yhtenäisen oleskelutilan, jossa on ilo viettää aikaa perheen ja ystävien kanssa. Keittiö on varustettu laadukkailla Siemensin kodinkoneilla, ja jääkaappipakastimen jääpalakone tuo ripauksen luksusta arkeen. Runsaasti kaappi- ja laskutilaa tekee keittiöstä paitsi kauniin, myös erittäin käytännöllisen.
Alakerrasta löytyvät myös kaksi makuuhuonetta, tilava kodinhoitohuone omalla uloskäynnillä, tyylikäs kylpyhuone ja sauna sekä erillinen wc – kaikki mitä toimiva arki vaatii.
Yläkerta – rauhaa ja omaa tilaa.
Yläkerrassa sijaitsee kolme tilavaa makuuhuonetta, iso vaatehuone sekä viihtyisä aula, joka sopii erinomaisesti oleskeluun tai työtilaksi. Erillinen wc lisää asumismukavuutta. Tämä kerros tarjoaa perheenjäsenille omaa rauhaa ja hyvin suunniteltua tilaa elämiseen.
Laadukkaat materiaalit ja moderni tekniikka
Kodin yhtenäinen harmaa laattalattia alhaalla ja vinyylilattia ylhäällä luo modernin ja harmonisen ilmeen, ja vesikiertoinen lattialämmitys yhdistettynä energiatehokkaaseen ilmavesilämpöpumppuun takaa miellyttävän sisäilman ja edulliset asumiskustannukset ympäri vuoden. Tämä koti on rakennettu taidokkaasti ja työn, sekä viimeistelyn jälki on korkealuokkaista.
Pihapiiri ja lisätilat
Helppohoitoinen, metsään rajoittuva nurmitontti tarjoaa rauhaa ja vehreyttä – täydellinen ympäristö leikkeihin, oleskeluun ja rentoutumiseen. Pihapiiriin kuuluvat myös viihtyisä terassi, autotalli sekä hyvät varastotilat.
Sijainti – luonnonläheinen ja tarjoaa mahdollisuuksia erilaisiin liikuntamahdollisuuksiin ja ulkoiluun.
Yli-Maariassa yhdistyvät rauhallinen asuinympäristö ja erinomaiset palvelut. Alueella on koulut, päiväkodit, hyvät liikenneyhteydet ja kaunis luonto aivan vieressä – täydellinen paikka perheelle, joka arvostaa laatua, toimivuutta ja viihtyisää arkea.
Varaa oma esittelyaikasi tähän kauniiseen kotiin.
Varaa oma esittelyaikasi tähän kauniiseen kotiin.
Tilaa ilmainen arviokäynti
Asunnonvaihto kannattaa aloittaa nykyisen asunnon hinnan arvioinnilla. Näin saat raamit uusille unelmillesi.
Asunnon perustiedot
| Kotiavain | 80461882 |
|---|---|
| Osoite | Mikkelinkuja 1, 20400 Turku |
| Tyyppi | Omakotitalo |
| Huoneistoselitelmä | 6h, k, aula, khh, kph, s, 2wc, 3vh, at |
| Huoneet | 6 |
| Asuintilojen pinta-ala | 186 m² |
| Muiden tilojen pinta-ala | 19.4 m² |
| Kokonaispinta-ala | 205.4 m² |
| Lisätietoja pinta-alasta | Kerrosala 223 m² . Pinta-alatiedot on saatu rakennuspiirustuksista / myyjältä, eikä niitä ole tarkistusmitattu.. Tarkistusmitattu: Ei |
| Asuinkerrosten määrä | 2 |
| Rakennusvuosi | 2022 |
| Käyttöönottovuosi | 2021 |
| Vapautuminen | Muu ehto: Sopimuksen mukaan, viimeistään 3 kuukautta kaupanteosta. |
Hinta ja kustannukset
| Myyntihinta | 460 000 € |
|---|---|
| Velaton hinta | 460 000 € |
| Muut maksut | Varainsiirtovero 3% kauppahinnasta. Veden käyttömaksu 2,03 euroa/m3. Jätevesimaksu 1.91 euroa/m3 Lämmityksen kulutus 11000 kwh/vuosi. |
| Kiinteistövero | 506,54 € / vuosi |
| Puhtaanapito | 32,50 € / kk |
Asunnon lisätiedot
| Sauna | Oma sauna |
|---|---|
| Tehdyt remontit | Rakennus on saneerattu täysin 2019-2022 |
| Asunnon kunto | Erinomainen |
| Energialuokka | B2018. On lain edellyttämä energiatodistus. Voimassa: 11.10.2035. Laadittu 11.10.2025. |
| Lämmitysjärjestelmän kuvaus | Lattialämmitys ja ilmavesilämpöpumppu |
| Sähköliittymä siirtyy | Kyllä |
Asunnon tilat ja materiaalit
| Pääasiallinen rakennusmateriaali | Puu |
|---|---|
| Rakennusmateriaalien kuvaus | Seinärakenne: Julkisivuverhouspaeeli (puu) 22x 100, tuulensuojalevy 13 mm. Lämmöneriste 50mm. /vaakakoolaus 45x45mm. Lämmöneriste 150mm. / Runko 50×150 k600. Höyrysulku. Sisäverhous 2x Gyproc Gn 13. Yläpohja Kattotiili, ruoteet 45×45, korotusrima, aluskate (tuuletusväli 100mm.) Tuulensuojaeriste 50mm, lämmöneriste 250mm/Yläpohjakannattajat, koolaus 45×45. Sisäverhous Gyprok GN 13. |
| Keittiön kuvaus | Liesi (Induktioliesi), työtasot (laminaatti), seinät (kaakeli ja maali), lattiat (laatta), jääkaappipakastin (Jääpalakone), erillisuuni (Siemens), liesituuletin (Siemens), mikroaaltouuni (Siemens) ja astianpesukone (AEG) |
| Kylpyhuoneen kuvaus | Suihku (Kaksi ), wc-istuin (Piiloviemäri), peilikaappi, bidee-suihku, suihkuseinä, lattialämmitys ja allaskaappi, seinät (kaakeli), lattiat (laatta) |
| WC-tilojen kuvaus | Lukumäärä: 1, WC-istuin (Piiloviemäri), bidee-suihku, pesuallas, allaskaappi ja peili, seinät (Kaakeli), lattiat (Laatta) |
| Saunan kuvaus | Seinät (kivi ja puu), lattiat (laatta), Sähkökiuas |
| Kodinhoitohuoneen kuvaus | Pesukone, lattialämmitys, pesuallas, pyykkikaapit, pöytätaso ja pesukoneliitäntä, lattiat (laatta), seinät (maali) |
| Olohuoneen kuvaus | Seinät (maali), lattiat (laatta) |
| Makuuhuoneen kuvaus | Lukumäärä: 4, seinät (maali ja tapetti), lattiat (laatta) |
| Säilytystilojen kuvaus | Vaatehuone, kaapistot ja seinäkaapit, 1 iso vaatehuone ja 2 pientä vaatehuonetta. Autotalli |
| Kattotyyppi | Pulpettikatto |
| Katon kuvaus | Tiili |
Asunnon tontti
| Tontin omistus | Vuokra |
|---|---|
| Kiinteistötunnus | 853-97-21-7L1 |
| Tontin tyyppi | Tasamaatontti |
| Tontin pinta-ala | 1 065 m² |
| Tie perille | Kyllä |
| Lisätietoja tontista | Tontin lunastushinta 34 080,00 euroa. Tontin vuokra tarkistetaan vuosittain. |
| Rakennusoikeuden pinta-ala | 213 |
| Tehokkuusluku | 0.2 |
| Lisätietoja rakennusoikeudesta | Korttelialueella on tonttien rakennusoikeus tehokkuusluvun osoittama, mutta kuitenkin korkeintaan 250 k-m2 tonttia kohti. |
| Kaavoitustiedot | Asemakaava (853-26/1984) Vahvistamispäivämäärä: 25.3.1991 Voimaantulopäivämäärä: 20.4.1991 Sitova tonttijako (853-97:64) Hyväksymispäivämäärä: 17.9.2001 Voimaantulopäivämäärä: 10.10.2001 Turunkaupungin kaavoitusosasto. Kaavoituspäällikkö Paula Keskikastari. Puhelin: 02 262 4300. Vaihde 02 330 000 |
| Kaavoitustilanne | Asemakaava |
| Tontin vuokra | 693,24 € |
| Tontin vuokrasopimus päättyy | 31.12.2053 |
| Tontin vuokranantaja | Turun kaupunki |






