Tämä upea omakotitalo sijaitsee rauhallisella ja vehreällä Tasbyn alueella Söderkullassa, ehkäpä Söderkullan halutuimmalla alueella. Vuonna 2016 valmistunut talo tarjoaa modernia asumismukavuutta kahdessa kerroksessa, ja sen avarat tilat sopivat erinomaisesti perheelle tai tilaa arvostavalle pariskunnalle. Tilavan kodin kokonaispinta-ala on jopa 265,5 neliön suuruinen.
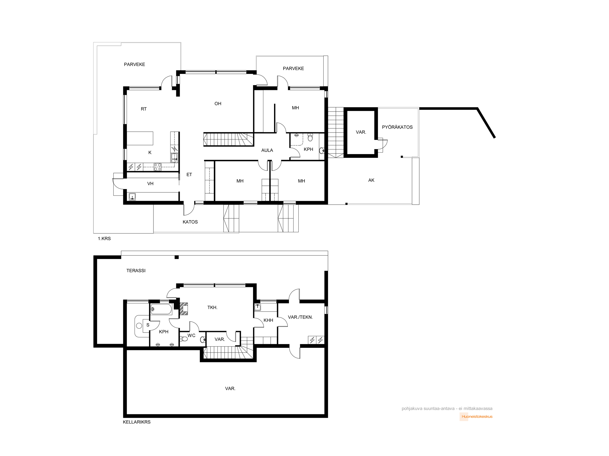
Talon sisääntulokerroksessa on tilava olohuone, keittiö joka on varusteltu laadukkailla kodinkoneilla, kuten integroidulla kahvikoneella ja kivitasoilla. Kolme makuuhuonetta tarjoavat rauhalliset tilat lepoon ja rentoutumiseen. Master bedroomin yhteydessä on kätevä walk-in tyyppinen vaatehuone. Korkea huonekorkeus lisää avaruutta ja tuo ilmavuutta kotiin. Alakerroksessa sijaitseva takkahuone on kuin toinen olohuone ja varaava takka luo tunnelmaa sekä tuo lämpöä kylminä vuoden aikoina.
Kaksi kylpyhuonetta ja erillinen wc tuovat arkeen sujuvuutta, ja sauna tarjoaa mahdollisuuden rentoutua kiireisen päivän jälkeen. Kodinhoitohuoneessa on kaikki tarvittava pyykkihuoltoon, ja tilavat vaatehuoneet sekä varastotilat takaavat, että säilytystilaa riittää. Itseasiassa talossa on niin suuri kellaritila, että se tuo todella paljon vapautta ja vaihtoehtoja sen käyttöön, jopa urheiluun.
Talon lämmityksestä huolehtii energiatehokas maalämpö ja viilennystä tarjoaa kotiin ilmalämpöpumppu, vesikiertoinen lattialämmitys tuo lisämukavuutta. Koneellinen ilmanvaihto pitää sisäilman raikkaana ympäri vuoden.
Ulkotiloissa on etelään avautuvat parvekkeet ja terassit, jotka kutsuvat nauttimaan auringosta ja kauniista maisemista. Suuri piha-alue tarjoaa mahdollisuuksia puutarhanhoitoon tai lasten leikkeihin. Autokatos ja varasto tuovat lisäkäytännöllisyyttä.
Sijainti on ihanteellinen perheille, sillä lähellä on päiväkoti ja koulu. Hyvät kulkuyhteydet ja läheinen puisto tekevät tästä kodista täydellisen paikan asua ja nauttia elämästä. Monipuoliset ulkoilureitin kulkevat tontin reunalta, ja suosittu Taasjärven uimaranta on lyhyen kävelymatkan päässä. Tartu tilaisuuteen ja tee tästä talosta unelmiesi koti!
Varatkaa itsellenne sopiva esittely välittäjältä. jan.klenberg@huoneistokeskus.fi tai 0400840879.
Tilaa ilmainen arviokäynti
Asunnonvaihto kannattaa aloittaa nykyisen asunnon hinnan arvioinnilla. Näin saat raamit uusille unelmillesi.
Asunnon perustiedot
| Kotiavain | 80474213 |
|---|---|
| Osoite | Mesiangervonpolku 1, 01150 Söderkulla |
| Tyyppi | Omakotitalo |
| Huoneistoselitelmä | 6h, k, s, 2xkph, khh, 2xvh, suuri kellari + autokatos, varasto |
| Huoneet | 6 |
| Asuintilojen pinta-ala | 152.5 m² |
| Muiden tilojen pinta-ala | 113 m² |
| Kokonaispinta-ala | 265.5 m² |
| Lisätietoja pinta-alasta | Ei tarkistusmitattu. Pinta-ala voi siis olla edellä mainittua pienempi tai suurempi. Ilomoitetut pinta-alat saatu rakennuspiirustuksista: huoneistoala 152,5 m², kerrosala 198 m², kokonaisala 265,5 m². Tarkistusmitattu: Ei |
| Asuinkerrosten määrä | 2 |
| Rakennusvuosi | 2016 |
| Käyttöönottovuosi | 2016 |
| Vapautuminen | Muu ehto: 2 kk kaupasta / sopimuksen mukaan |
Hinta ja kustannukset
| Myyntihinta | 629 000 € |
|---|---|
| Velaton hinta | 629 000 € |
| Muut maksut | Kokonaissähkönkulutus sisältäen lämmityksen ja käyttösähkön noin 11000 kWh vuodessa. Vesi ja jätevesi maksut kulutuksen mukaan. Jätemaksut otetun sopimuksen mukaan. |
| Kiinteistövero | 1 160 € / vuosi |
| Vesi- ja jätevesimaksu | 48 € / kk |
| Puhtaanapito | 47 € / kk |
Asunnon lisätiedot
| Sauna | Oma sauna |
|---|---|
| Asunnon kunto | Hyvä |
| Energialuokka | B2013. On lain edellyttämä energiatodistus. Voimassa: 19.05.2026 |
| Lämmitysjärjestelmän kuvaus | Maalämpö, ilmalämpöpumppu ja lattialämmitys |
| Tulisija | Varaava takka |
| Sähköliittymä siirtyy | Kyllä |
Asunnon tilat ja materiaalit
| Pääasiallinen rakennusmateriaali | Puu ja kivi |
|---|---|
| Rakennusmateriaalien kuvaus | Kellarikerros kivirakenteinen (Lecaharkko), yläkerta puurakenteinen (Kastelli precut) |
| Keittiön kuvaus | Liesi (Induktioliesi), työtasot (kivi), seinät (maali), lattiat (mikrosementti), jääkaappi, erillinen pakastin, erillisuuni, liesituuletin, mikroaaltouuni, astianpesukone ja integroitu kahvinkeitin |
| Kylpyhuoneen kuvaus | WC-istuin, suihku, kylpyamme, suihkuseinä, pesuallas, allaskaappi ja peili, seinät (kaakeli), lattiat (laatta), kaksi kylpyhuonetta |
| WC-tilojen kuvaus | Lukumäärä: 1, WC-istuin, pesuallas ja peili, seinät (Kaakeli), lattiat (Laatta) |
| Saunan kuvaus | Seinät (puu ja paneeli), lattiat (laatta), Sähkökiuas |
| Kodinhoitohuoneen kuvaus | Pesukoneliitäntä, pöytätaso ja pesuallas, lattiat (mikrosementti), seinät (osalaatoitus ja maali) |
| Olohuoneen kuvaus | Seinät (maali), lattiat (mikrosementti) |
| Makuuhuoneen kuvaus | Lukumäärä: 3, seinät (maali), lattiat (laminaatti) |
| Säilytystilojen kuvaus | Vaatehuone, kaapistot, maakellari ja kylmä ulkovarasto |
| Kattotyyppi | Harjakatto |
| Katon kuvaus | Pelti |
Asunnon tontti
| Tontin omistus | Oma |
|---|---|
| Kiinteistötunnus | 753-419-4-1793 |
| Tontin tyyppi | Rinnetontti |
| Tontin pinta-ala | 1 161 m² |
| Tie perille | Kyllä |
| Rakennusoikeuden pinta-ala | 290.25 |
| Tehokkuusluku | 0.25 |
| Kaavoitustiedot | Sipoon kunta 09-23531 |
| Kaavoitustilanne | Asemakaava |
Palvelut ja liikenneyhteydet
| Palvelut | Söderkullan monipuoliset palvelut noin 2,2 km, Helsingin keskusta noin 31 km, Porvoon keskusta noin 25 km, Nikkilä noin 13 km, Itäkeskus noin 23 km, lentokenttä noin 28 km |
|---|---|
| Koulut | Söderkullan koulut noin 1,6 km (kävelytie) |
| Päiväkodit | Alueella useita, lähin noin 800 m |
| Liikenneyhteydet | Söderkullasta hyvät linja-autoyhteydet kts. www.hsl.fi, lähin pysäkki vieressä. |



