Tervetuloa viihtyisään rivitalokotiin Kauniaisten keskustassa, missä kaikki keskeiset palvelut, koulut, päiväkodit, kaupat ja juna-asema sijaitsevat kävelyetäisyydellä. Tässä kodissa yhdistyvät toimiva pohjaratkaisu, rauhallinen ympäristö ja erinomainen sijainti.
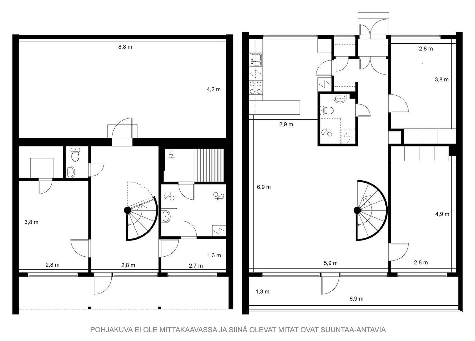
Asunnon 132 m² on suunniteltu toimivasti kahteen kerrokseen. Alakerrassa sijaitseva noin 37 m² harrastetila on todellinen lisäarvo ja tarjoaa monipuoliset mahdollisuudet toteuttaa omia tilaratkaisuja. Tila on viimeisteltävissä omien tarpeiden ja toiveiden mukaan.
Sisääntulokerroksessa sijaitsevat keittiö, ruokailutila ja valoisa olohuone, josta on käynti huoneiston levyiselle länsiparvekkeelle. Lisäksi kerroksessa on kaksi makuuhuonetta sekä kylpyhuone. Alakerrasta löytyvät makuuhuone, vaatehuone, aula, erillinen wc, sauna sekä pesutilat. Aulatilasta on käynti suojaisalle pihalle, joka rajoittuu puistoon.
Vuonna 2022 toteutetun linjasaneerauksen yhteydessä huoneistossa uusittiin keittiö, kaikki märkätilat sekä alakerran aulatilan laattalattia. Lisäksi seinät ja katot on maalattu ja lattiapinnat uusittu. Joiltain osin asunto kaipaa vielä viimeistelyä, mikä tarjoaa mahdollisuuden vaikuttaa pintaratkaisuihin oman maun mukaan.
Asunto Oy Sansåker on hyvin hoidettu taloyhtiö. Linjasaneerauksen lisäksi yhtiössä on tehty muun muassa salaojitus, vesikatto on uusittu ja sähköautojen latausvalmius on toteutettu. Sijainti on erinomainen: kilometrin säteellä löytyvät kattavat palvelut sekä juna-asema. Tämä koti sopii loistavasti niin perheelle kuin tilaa arvostavalle kaupunkiasujalle.
Tervetuloa tutustumaan – tämä koti kannattaa nähdä paikan päällä!
Lisätiedot ja esittelyvaraukset:
Ann-Mari Tiainen YKV, LKV, KiAT
050 345 8321 / ann-mari.tiainen@huoneistokeskus.fi
Tilaa ilmainen arviokäynti
Asunnonvaihto kannattaa aloittaa nykyisen asunnon hinnan arvioinnilla. Näin saat raamit uusille unelmillesi.
Asunnon perustiedot
| Kotiavain | 80478927 |
|---|---|
| Osoite | Kylätie, 02700 Kauniainen |
| Tyyppi | Rivitalo |
| Omistusmuoto | Oma |
| Huoneistoselitelmä | 5 h + k + sauna, pesu- ja pukuhuone |
| Huoneet | 5 |
| Asuintilojen pinta-ala | 132 m² |
| Kokonaispinta-ala | 169 m² |
| Lisätietoja pinta-alasta | Asuintilat 132 m2 ja alakerrassa sijaitseva harrastetila noin 37 m2.. Tarkistusmitattu: Ei |
| Kerros | 1/2 |
| Rakennusvuosi | 1969 |
| Käyttöönottovuosi | 1969 |
| Vapautuminen | Heti |
Hinta ja kustannukset
| Myyntihinta | 364 578,94 € |
|---|---|
| Velkaosuus | 121 421,06 € |
| Velaton hinta | 486 000 € |
| Neliöhinta | 3 681,82 €/m² |
| Hoitovastike | 607,20 € / kk |
| Rahoitusvastike | 860,64 € / kk |
| Yhtiövastike yhteensä | 1 467,84 € / kk |
| Muut maksut | Kylmä vesi 4,40 €/m3 ja lämmin vesi 9,83 €/m3. Kulutetusta vedestä laskutetaan kolme kertaa vuodessa mitatun kulutuksen mukaan. Hallituksella on valtuudet periä enintään kahden kuukauden hoitovastiketta vastaava määrä ylimääräistä vastiketta, mikäli taloyhtiön taloudellinen tilanne sitä vaatii. Hallituksella on valtuudet päättää pääomavastikkeiden määristä, mikäli niillä ei pystytä kattamaan lainojen lyhennyksiä ja korkokuluja esim. korkotason muuttuessa. Valtuutus on voimassa seuraavaan varsinaiseen yhtiökokoukseen saakka. |
| Vesimaksu | Kulutuksen mukaan |
Asunnon lisätiedot
| Sauna | Oma sauna |
|---|---|
| Parveke | Kyllä |
| Parvekkeen kuvaus | Sisäänvedetty |
| Parvekkeen ilmansuunta | Länsi |
| Tehdyt remontit | Huoneiston D kellaritila on muutettu kylmästä maakellaritilasta lämpimäksi tilaksi osakkaan toimesta vuonna 2023-2024. Seinät ja lattia ovat betonia ja katto paneloitu. Betonilaatan alapuolella on lämpöeriste, jonka alla on sorastus. Muutokseen on myönnetty rakennuslupa ja kohteeseen on tehty lopputarkastus. Keittiö, wc, kylpyhuone, pesutilat ja sauna remontoitu linjasaneerauksen yhteydessä vuonna 2022. |
| Asunnon kunto | Tyydyttävä |
| Lisätietoja kunnosta | Huoneiston keittiö, wc, kylpyhuone, pesutilat ja sauna ovat uutta vastaavia, sillä niitä ei ole käytetty remontin jälkeen. Huoneiston katto ja seinäpinnat ovat monelta osin alkuperäisessä kunnossa. Huoneistosähköt ovat pääosin alkuperäisessä kunnossa. |
| Lämmitysjärjestelmän kuvaus | Kaukolämpö |
| Sähköliittymä siirtyy | Ei |
| Lunastusoikeus yhtiöllä | Ei |
| Lunastusoikeus osakkailla | Ei |
Asunnon tilat ja materiaalit
| Pääasiallinen rakennusmateriaali | Puu ja tiili |
|---|---|
| Keittiön kuvaus | Keittiö remontoitu linjasaneerauksen yhtydessä. Kaapistot Petra keittiö, kodinkoneet Electrolux: jääkaappi/pakastin, keraaminen liesi, liesituuletin, astianpesukone, seinähyllyt x 3 kpl ja kiinteät valaisimet. |
| Kylpyhuoneen kuvaus | Yläkerta: suihku, suihkuseinät, allas, allaslaatikosto, peilikaappi, wc-istuin, käsisuihku, pyyhekuivain ja pesukoneliitäntä. Alakerta: suihkut x 2, suihkuseinä, allas, peili ja pesukoneliitäntä. |
| WC-tilojen kuvaus | Alakerrassa erillinen wc, jossa allas, allaskaappi, peilikaappi, wc-istuin ja käsisuihku. |
| Saunan kuvaus | Linjasaneerauksen yhteydessä remontoitu, tilava sauna, jossa sähkökiuas. |
| Säilytystilojen kuvaus | Huoneistossa kaapistot ja vaatehuone x 2. Yhtiön tiloissa lämmin verkkovarasto. |
| Seinämateriaalien kuvaus | Maali: keittiö, alakerran makuuhuone Maali/tapetti: eteinen, olohuone, yläkerran makuuhuoneet ja alakerran aula Tiili, osittain: olohuone, eteinen, yläkerran makuuhuoneet ja alakerran aula Kaakeli: wc, kylpyhuone ja pesutilat Paneeli: sauna Betoni: harrastetila |
| Lattiamateriaalien kuvaus | Vinyyli: eteinen, keittiö, olohuone, makuuhuoneet, vaatehuone Laatta: sisääntuloeteinen, alakerran aula, wc, kylpyhuone, pesutilat ja sauna Betoni: harrastetila |
| Kattomateriaalin kuvaus | Katot pääosin paneloitu, osittain betonia. |
| Kattotyyppi | Harjakatto |
| Katon kuvaus | Pelti |
Taloyhtiö
| Taloyhtiön nimi | Bostads Ab Sansåker – Asunto Oy Sansåker |
|---|---|
| Isännöitsijän yhteystiedot | Reim Pääkaupunkiseutu Espoo Oy, Kivenlahdenkatu 1, 02320, Espoo, 010 543 7260, asiakaspalvelu.espoo@reim.fi |
| Huolto | Asukkaat |
| Hissi | Ei |
| Taloyhtiöön kuuluu | Antenni-tv, valokuituyhteys toteutettu telejakomosta huoneistoihin linjasaneerauksen yhteydessä. Valokuitua ei ole tuotu telejakomoon. |
| Tehdyt remontit | 2024 Linjasaneerauksen takuutarkastus 2023 A-päädyn sisäisen salaojan korjaus ja pumppukaivon poisto huoneiston sisältä, katon ja rännien pesu 2022 Linjasaneeraus, sähköautojen latausvalmiuden rakentaminen ja jäteastioiden suojat, Ilmanvaihtokanavien puhdistus ja ilmamäärien perussäätö, puuttuvien korvausilmaventtiilien lisääminen, lumiesteiden lisääminen koko matkalle, palovaroittimet 10 vuoden paristolla, asunnon E alakerran lattian korjaus 2021 Linjasaneerauksen toteutussuunnittelu ja urakan kilpailutus 2020 Linjasaneerauksen hankesuunnittelu, ajantasapiirustukset ja viemärikuvaukset 2019 Katon perushuolto ja lumiesteiden korjaus 2018 Vaihdettu rikkinäiset ilmanvaihtokoneet 2016 Alaovet uusittu, lukot uusittu kaikkiin oviin (Aloy Sento), kadun varren hulevesiviemäri pesty 2015 Ulko-ovien kunnostus, palohälyttimet hankittu ja salaojat tarkastettu 2014 Pihavalojen uusiminen 2013 Salaojien ja sadevesijärjestelmän rakentaminen, lämpötolppien uusiminen, termostaattien uusiminen, verkoston säätö ja piha-aitojen uusiminen 2012 Lipputanko ja tomutustelineen maalaus 2011 Antennikeskuksen uusiminen 2010 Lumiesteiden asennus ja äänenvaimentimien asentaminen huippuimureihin 2008 Vesikaton ja julkisivujen uusiminen, huippuimurien vaihto, ilmanvaihdon eriyttäminen, seinien lämmöneristeen lisääminen ja yläpohjan lämmöneristyksen uusiminen 2005 Ulkoseinien tiivistäminen 2002 Parvekkeiden lattioiden uusiminen ja kaidelasien asennus 2001 Kadunpuolen ikkunoiden uusiminen, katon maalaus, lämmönvaihtimen uusiminen |
| Tulevat remontit | 2025 Kadun puolen ovien säätö 2025 Pihojen välisten aitojen korjaus (tehty) 2026 Energiatodistuksen uusiminen 2026-2028 Sokkelin maalaus 2026-2028 A ja F tiilipäätyjen saumausten korjaus 2026-2028 Katujulkisivun puuosien huoltokäsittely 2026-2028 Pieneläinverkot 2027 Pellitysten lisääminen sisäpihan puolelle terassittomiin pihoihin 2028 Ilmastointikanavien puhdistus ja ilmamäärien säätö 2030 Palovaroittimien uusiminen |
| Energialuokka | E2013. On lain edellyttämä energiatodistus. Voimassa: 30.05.2026 |
| Tontin pinta-ala | 2 656 m² |
| Tontin omistus | Oma |
| Kaavoitustilanne | Asemakaava |
Palvelut ja liikenneyhteydet
| Palvelut | 0-1 km: Kauniaisten kattavat palvelut: kauppakeskus Grani, jossa mm. K-Supermarket, S-Market, Alko ja apteekki, kirjasto, eläinlääkäriasema, erikoismyymälöitä- ja palveluja. 1-2 km: Bio Grani, uimahalli, palloiluhalli, terveysasema |
|---|---|
| Koulut | Mäntymäen koulu 1-6 luokat n. 1,5 km Kasavuoren koulu 7-9 luokat n. 2,1 km Kauniaisten lukio n. 2,2 km Skolenhet Granhult 1-6 luokat n. 1,6 km Skolenhet Hagelstam 7-9 luokat n. 1 km Gymnasiet Grankulla n. 1,2 km |
| Päiväkodit | Kauniaisissa sekä suomen- että ruotsinkieliset päiväkodit. Lähin päiväkoti Sansinpellon päiväkoti n. 250 m. |
| Liikenneyhteydet | Hyvät yhteydet eripuolille pääkaupunkiseutua: Juna-asema n. 400 m. Kauniaistentien pysäkiltä n. 500 m bussit 212 Kamppi-Meilahti-Kauniainen, 533 Hyljelahti-Järvenperä, 548 Tapiola-Jupperi ja 549 Tapiola-Jorvi. |






