Myynnissä hyväkuntoinen 4. kerroksen kaunis remontoitu kaksio.
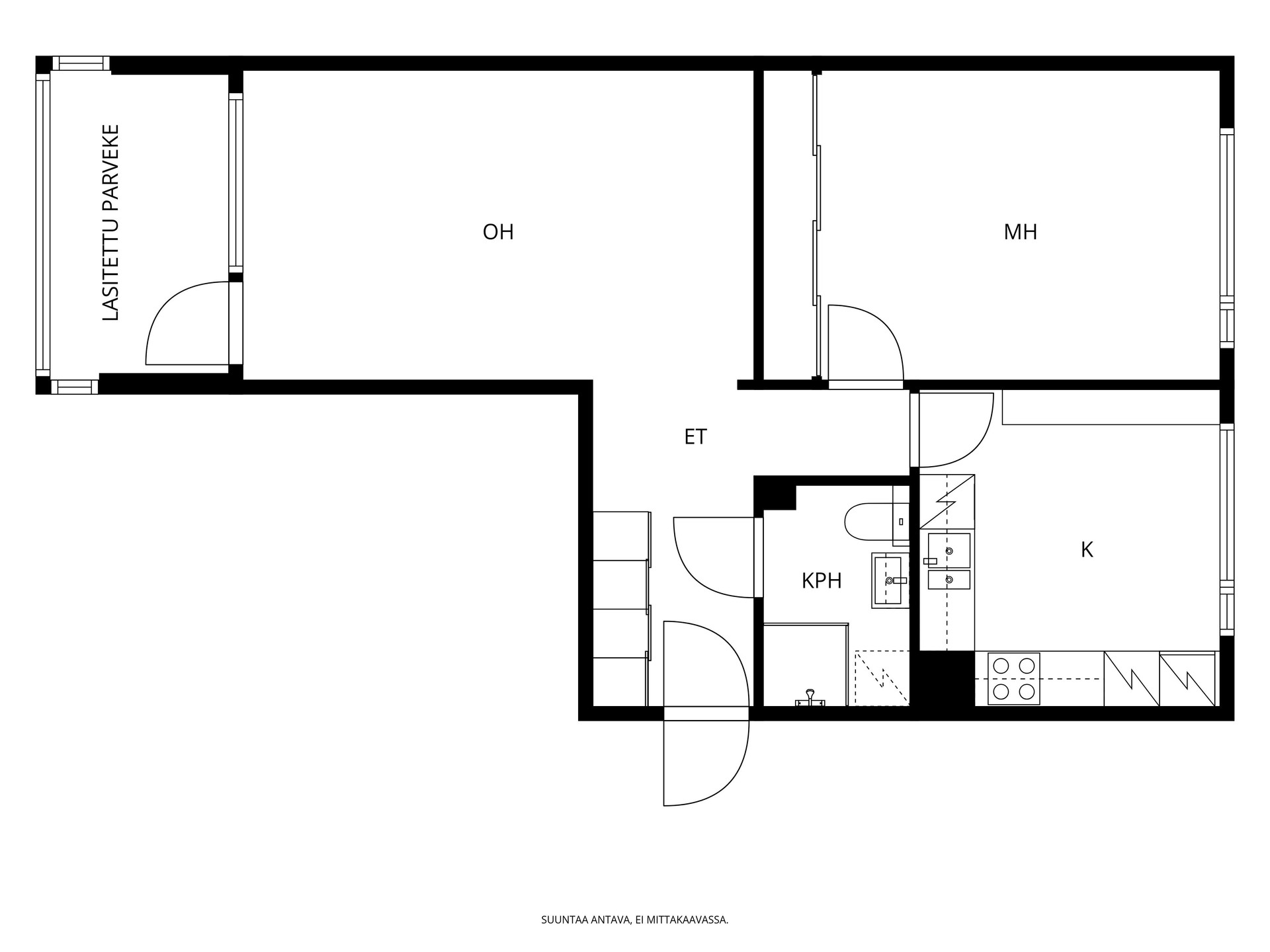
Asunnossa on toimiva pohja ja läpitalonhuoneiston ikkunat tuovat runsaasti valoa ja korostavat avaruutta ja viihtyisyyttä. Remontoitu keittiö on tilava, siellä on kaikki nykyaikaiset kodinkoneet, runsaasti kaappitilaa ja laskutasoa. Olohuone on tilava ja sieltä on käynti lasitetulle parvekkeelle. Asunnon reilun kokoinen kylpyhuone on remontoitu linjasaneerauksen yhteydessä.
Säilytystilaa löytyy uusituista liukuovikaapistoista.
Tämä koti sijaitsee erinomaisella sijainnilla, mikä tekee liikkumisesta ja palveluiden saavuttamisesta vaivatonta. Alueelta on lyhyt kävelymatka niin kauppatorille kuin jokirantaankin. Lähellä sijaitsevat Vartiovuorenmäki, Samppalinnanmäki ja urheilupuisto sekä maauimala kutsuvat liikkumaan ja rentoutumaan vuoden ympäri. Myös Kupittaan monipuoliset palvelut, kuten puisto, urheiluhalli ja juna-asema, ovat vain kivenheiton päässä. Lähikauppakin löytyy yhtiön alakerrasta.
Yhtiö on hyvässä kunnossa, suuria remontteja on tehty. Asukkaiden käytössä on taloyhtiön uima-allas osasto.
Tämä koti sopii erinomaisesti niin kaupunkielämästä nauttivalle yksinasuvalle, pariskunnalle tai sijoittajalle.
Asunto on vuokrattu 1.6.2025 alkaen.
Tervetuloa tutustumaan!
Tilaa ilmainen arviokäynti
Asunnonvaihto kannattaa aloittaa nykyisen asunnon hinnan arvioinnilla. Näin saat raamit uusille unelmillesi.
Asunnon perustiedot
| Kotiavain | 80472777 |
|---|---|
| Osoite | Itäinen Pitkäkatu 29, 20700 Turku |
| Tyyppi | Kerrostalo |
| Omistusmuoto | Oma |
| Huoneistoselitelmä | 2h, k, kph, p |
| Huoneet | 2 |
| Asuintilojen pinta-ala | 61.5 m² |
| Kokonaispinta-ala | 61.5 m² |
| Lisätietoja pinta-alasta | Ei tarkistusmitattu. Pinta-alat saattavat tämän ikäisissä kohteissa (yhtiö rekisteröity ennen 01.01.1992) poiketa olennaisestikin asuinrakennusten nykyisten mittaustapojen ja standardien (SFS 5139) mukaan laskettavasta asuintilojen pinta-alasta. Pinta-ala voi siis olla edellä mainittua pienempi tai suurempi.. Tarkistusmitattu: Ei |
| Kerros | 4/7 |
| Rakennusvuosi | 1970 |
| Käyttöönottovuosi | 1970 |
| Vapautuminen | Muu ehto: vuokrattu |
Hinta ja kustannukset
| Myyntihinta | 215 000 € |
|---|---|
| Velkaosuus | 0 € |
| Velaton hinta | 215 000 € |
| Neliöhinta | 3 495,93 €/m² |
| Hoitovastike | 289 € / kk |
| Yhtiövastike yhteensä | 289 € / kk |
| Muut maksut | Autohallipaikka 30 e/kk, autopaikka 15 e/kk. Sähkö kulutuksen mukaan, yhtiö laskuttaa. Vesi kulutuksen mukaan, kylmä vesi 3,47 e/m3, lämmin vesi 8,98 e/m3. Varainsiirtovero 1,5 % velattomasta hinnasta erääntyy ostajan maksettavaksi kaupantekotilaisuudessa. |
| Vesimaksu | Vesimaksuennakko 10 € / kk / hlö (Ennakko, tasaus kulutuksen mukaan) |
Asunnon lisätiedot
| Sauna | Taloyhtiössä sauna |
|---|---|
| Parveke | Ei |
| Tehdyt remontit | 4.12.2025 päivätyssä isännöitsijäntodistuksessa ei merkintää että yhtiö on tietoinen huoneistoon tehdyistä remonteista. |
| Asunnon kunto | Hyvä |
| Lämmitysjärjestelmän kuvaus | Kaukolämpö |
| Sähköliittymä siirtyy | Ei |
| Lunastusoikeus yhtiöllä | Ei |
| Lunastusoikeus osakkailla | Ei |
Asunnon tilat ja materiaalit
| Pääasiallinen rakennusmateriaali | Betoni |
|---|---|
| Keittiön kuvaus | Jääkaappipakastin, erillisuuni, induktioliesitaso, mikro, astianpesukone, kaapistot. Seinät maalattu, lattia vinyyliä. Keittiö uusittu 2021. |
| Kylpyhuoneen kuvaus | Suihku, kääntyvät suihkuseinät, peilikaappi, allaslaatikosto, pesukoneliitäntä ja wc-istuin. Lattia laattaa, seinissä kaakelia. |
| Olohuoneen kuvaus | Seinät maalattu, lattia parkettia. Lattia hiottu ja öljyvahattu v. 2023. |
| Makuuhuoneen kuvaus | Lukumäärä: 1, Seinät maalattu, lattia vinyyliä. Liukuovikaapisto uusittu v. 2023. |
| Säilytystilojen kuvaus | Kaapistot, Eteisen peililiukuovikaapisto uusittu v. 2021. |
| Kattotyyppi | Tasakatto |
| Katon kuvaus | Huopa |
Taloyhtiö
| Taloyhtiön nimi | Uusi asunto-osakeyhtiö Kaskenkatu 14 |
|---|---|
| Isännöitsijän yhteystiedot | Turun Isännöintikeskus Oy, Camilla Kivilä, Yliopistonkatu 37 B, 20100, Turku, +358 265172150, camilla.kivila@turunisannointikeskus.fi |
| Huolto | Huoltoyhtiö |
| Hissi | Kyllä |
| Muuta taloyhtiöstä | Kellarikomero, uima-allas, kaapeli-tv, mankeli, pesutupa ja urheiluvälinevarasto |
| Tehdyt remontit | Autopihan kannen korjaus -05, kylpyhuoneiden ikkunoiden uusiminen, elementtisaumojen korjaus -06, hissien peruskorjaus, liikekaton alakaton uusiminen -07, parvekeovien ja niiden viereisten ikkunoiden uusiminen -09, uima-allasosaston vedenkäsittelylaitteiston uusiminen -11, liikesiiven yläkaton uusiminen ja toisen löylyhuoneen kunnostus -12, pihan puolen ikkunoiden uusinta, elementtisaumausten uusinta ja betonipaikkaukset, ilmanvaihtokanavien nuohous ja ilmamäärien säätö – 13, viemäreiden pinnoitus ja sukitus -14, autohallin maalaus ja sähkösaneeraus -15, autotallin oven uusinta, ulko-ovien ja ovipuhelimen järjestelmä sekä lukoston uusinta -16, julkisivun/laattojen betonipaikkaukset -19, LVIS/LTO korjaushanke -20-21, linjasaneeraus -22, ilmanvaihtolaitteiden huolto -23, puiden kuntokartoitus -23, jätepisteen uusiminen, pihan asfaltin korjaus, puiden kaato, julkisivun- ja parvekkeiden kuntotutkimus -24 |
| Energialuokka | E2018. On lain edellyttämä energiatodistus. Voimassa: 15.10.2035 |
| Tontin pinta-ala | 3 689 m² |
| Tontin omistus | Oma |
| Kaavoitustiedot | Turun kaupunki p. 02 330 300 |
| Kaavoitustilanne | Asemakaava |






