Tyylikkäitä erillistaloja Kesärannassa!
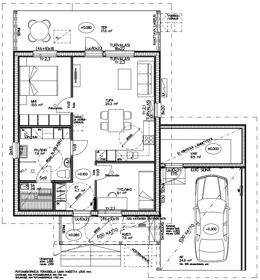
Uusi viiden erillistalon kokonaisuus. Loistava vaihtoehto kompaktia kotia tai vapaa-ajan asuntoa etsivälle. Asunnossa kaksi makuuhuonetta, tupakeittiö, pesuhuone kodinhoitotilalla sekä oma sauna. Asunnon yhteydessä autokatospaikka, tilava lämpöeristetty varasto ja katettu terassi.
Lämmitysmuotona ilmalämpöpumppu ja sähköinen lattialämmitys. Olohuoneessa takkavaraus.
Koneellinen ilmanvaihto lämmön talteenotolla. Energialuokka B2018.
Energiatodistuksen laskennallinen sähkönkulutus 7205 kWh / vuosi.
Kaupungin vuokratontti jaetaan hallinnanjakosopimuksella asuntojen kesken. Jokainen vastaa vain omista huolto-, kunnossapito- ja käyttökustannuksistaan.
Loistava sijainti uudella rauhallisella asuinalueella meren, golfkentän ja luontopolkujen läheisyydessä. Hiekkasärkkien palvelukeskittymään noin neljä kilometriä. Jokaiselle erillistalolle jää myös omaa rauhaa ja piha-aluetta. Asunnot A-C rajoittuvat puistoalueena olevaan metsikköön.
Rakentaminen alkaa kun kolme asunnoista on varattuna. Valmistumisarvio on joulukuu 2026. Kohde toteutetaan urakkasopimuksella. Kaupanteossa ostetaan tontin vuokraoikeus ja rakennustöistä solmitaan urakkasopimus rakennusliikkeen kanssa. Maksu tapahtuu vaiheittain valmistumisasteen mukaisesti. Pääset itse vaikuttamaan pintamateriaaleihin, kalusteisiin ja toimitussisältöön. Pienet pohjakuvamuutoksetkin mahdollisia. Varainsiirtovero maksetaan vain kauppahinnasta.
Mahdollisuus tutustua naapuritontille valmistuviin rakentajan vastaaviin kohteisiin.
Rakentaja Kalajokinen Rannikon Laatusisustajat Oy.
Kysy lisätietoja ja varaa pian omasi!
Tilaa ilmainen arviokäynti
Asunnonvaihto kannattaa aloittaa nykyisen asunnon hinnan arvioinnilla. Näin saat raamit uusille unelmillesi.
Asunnon perustiedot
| Kotiavain | 80472103 |
|---|---|
| Osoite | Kesärannantie 1A, 85100 Kalajoki |
| Tyyppi | Erillistalo |
| Huoneistoselitelmä | 2mh+tupa+ph/khh+s+varasto |
| Huoneet | 3 |
| Asuintilojen pinta-ala | 61.5 m² |
| Muiden tilojen pinta-ala | 8.5 m² |
| Kokonaispinta-ala | 70 m² |
| Lisätietoja pinta-alasta | Huoneistoala 61,5m², varasto 8,5m². Kokonais kerrosala autokatoksen kanssa 107m². |
| Asuinkerrosten määrä | 1 |
| Rakennusvuosi | 2026 |
| Käyttöönottovuosi | 2026 |
| Vapautuminen | Muu ehto: kohteen valmistuttua, noin 9kk rakennustöiden aloittamisesta. |
Hinta ja kustannukset
| Myyntihinta | 166 800 € |
|---|---|
| Velaton hinta | 166 800 € |
| Muut maksut | Kiinteistövero, sähkö ja vesi kulutuksen mukaan, jätehuolto, vakuutukset, vuokraoikeuden kirjaamisesta aiheutuvat kustannukset. |
Asunnon lisätiedot
| Sauna | Oma sauna |
|---|---|
| Muuta kauppaan kuuluvaa | Lisätietoja sisältyvistä varusteista: ilmalämpöpumppu, kiinteät valaisimet, lämminvesivaraaja |
| Asunnon kunto | Uusi |
| Energialuokka | B2018. On lain edellyttämä energiatodistus |
| Lämmitysjärjestelmän kuvaus | Sähkö, ilmalämpöpumppu ja sähköinen lattialämmitys |
| Tulisija | Takkavaraus |
| Sähköliittymä siirtyy | Kyllä |
Asunnon tilat ja materiaalit
| Pääasiallinen rakennusmateriaali | Puu ja betoni |
|---|---|
| Rakennusmateriaalien kuvaus | Puurunko, lautaverhous, betoniperustus |
| Keittiön kuvaus | Liesi (Induktioliesi ja erillisuuni), työtasot (laminaatti), seinät (maali), lattiat (vinyyli), erillisuuni, liesi, astianpesukone, jääkaappipakastin ja mikroaaltouuni, Integroidut kodinkoneet vakiona. |
| Kylpyhuoneen kuvaus | Suihku, wc-istuin, peili, lattialämmitys, pesukoneliitäntä, suihkuseinä, allaskaappi ja kiinteät valaisimet, seinät (kaakeli ja maali), lattiat (laatta) |
| Saunan kuvaus | Seinät (puu), lattiat (laatta), Sähkökiuas |
| Olohuoneen kuvaus | Seinät (maali), lattiat (vinyyli) |
| Makuuhuoneen kuvaus | Lukumäärä: 2, seinät (maali), lattiat (vinyyli) |
| Säilytystilojen kuvaus | Ulkovarasto ja kaapistot |
| Seinämateriaalien kuvaus | Saunassa käsitelty kuusipaneeli (tervalepän sävy). Kylpyhuoneessa laatta 300×600 mm ja kalusteseinän tausta maalattu levy. Muissa tiloissa maalatut levyseinät. |
| Lattiamateriaalien kuvaus | Eteinen, kylpyhuone ja sauna laatta. Muissa tiloissa vinyylilankku. |
| Kattomateriaalin kuvaus | Saunassa ja pesuhuoneessa käsitelty kuusipaneeli (tervalepän sävy). Muissa tiloissa mdf-paneeli. |
| Kattotyyppi | Harja |
| Katon kuvaus | Pelti |
Asunnon tontti
| Tontin omistus | Vuokra |
|---|---|
| Kiinteistötunnus | 208-402-3-994-L1 |
| Tontin tyyppi | Tasamaatontti |
| Tontin pinta-ala | 3 472 m² |
| Tie perille | Kyllä |
| Lisätietoja tontista | Kaupungin vuokratontti joka jaetaan hallinnanjakosopimuksella viiden erillistalon kesken. Koko tontin pinta-ala on 3472m². Tontin vuosivuokra 4191€ jaetaan viiteen osaan = 838,20€ / asunto. |
| Rakennusoikeuden pinta-ala | 1100 |
| Lisätietoja rakennusoikeudesta | Koko kiinteistön rakennusoikeus 1100 m² jaetaan tasan viiden asunnon kesken. |
| Kaavoitustiedot | RM/a (Matkailua palvelevien rakennusten korttelialue. Rakennuspaikalle sallitaan asuinrakennuksen rakentaminen pysyvään asumiseen). |
| Kaavoitustilanne | Yleiskaava ja asemakaava |
| Muut rakennukset | Asunnon yhteydessä autokatos ja eristetty varasto 8,5m² |
| Tontin vuokra | 838,20 € |
| Tontin vuokranantaja | Kalajoen kaupunki |
Palvelut ja liikenneyhteydet
| Palvelut | Hiekkasärkkien palvelukeskittymä 4,5 km. Kalajoen keskusta 12 km |
|---|---|
| Koulut | Merenojan yhtenäiskoulu 12 km. |
| Päiväkodit | Uusi Hiekkasärkille rakennettava päiväkoti 4,5 km. |
| Liikenneyhteydet | Bussipysäkki Usvametsäntiellä muutaman sadan metrin päässä. |
Muut lisätiedot
| Muut kaupan kannalta merkittävät tiedot | Kaupungin vuokratontti jaetaan hallinnanjakosopimuksella asuntojen kesken. Jokainen vastaa vain omista huolto-, kunnossapito- ja käyttökustannuksistaan. Kyseessä ei näin ollen ole asunto-osakeyhtiömuotoinen rakentaminen, joten asuntokauppalain säännökset eivät koske kyseistä kauppaa. |
|---|---|
| Pihan kuvaus | Kulkualueet pintamurskeella. Talon ympäristö luonnonmukainen metsäpohja ja kuorikate / hiekka. |






