Omakotitalo isolla tontilla omaa tilaa arvostaville tai erinomainen kokonaisuus rakentajille arvostetulla Sariolanmäen pientaloalueella!
Persoonallinen kartanohenkinen omakotitalo sijaitsee maalauksellisen kauniilla puutarhatontilla omenapuiden ja koivujen katveessa. Ainutlaatuista on suuren pihapiirin tuoma oma rauha Sariolanmäen viihtyisällä asuinalueella, vain noin kilometrin päässä Keravan keskustan palveluista. Rakennus on vuonna 1940 valmistunut ja 1983 laajennettu. Se on kuntotarkastettu 1.8.2025. Lisäksi tontilla on hyvä autotallirakennus sekä varastotiloiksi sopivat ulkorakennukset.
Komealle 2 764 m2 suojaisalle puutarhatontille asemakaava sallii rakennettavan omakotitaloja, paritaloja tai rivitaloja tonttitehokkuuden e = 0,3 mukaisesti. Tontti mahdollistaa suunnitelmat rakentamiselle joko tontin jakamalla, hallinnanjakosopimuksella tai asunto-oy perustamalla.
Tervetuloa tutustumaan paikan päälle!
Tilaa ilmainen arviokäynti
Asunnonvaihto kannattaa aloittaa nykyisen asunnon hinnan arvioinnilla. Näin saat raamit uusille unelmillesi.
Asunnon perustiedot
| Kotiavain | 80460914 |
|---|---|
| Osoite | Sariolantie 22, 04200 Kerava |
| Tyyppi | Omakotitalo |
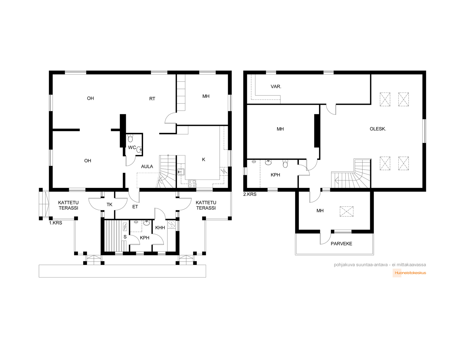
| Huoneistoselitelmä | 4h, k, rt, ateljeetila, kylpyhuone, 2 wc, saunatilat ja varastotilat, parveke ja katetut kuistit.. |
| Huoneet | 5 |
| Asuintilojen pinta-ala | 170 m² |
| Muiden tilojen pinta-ala | 15 m² |
| Kokonaispinta-ala | 185 m² |
| Lisätietoja pinta-alasta | Pinta-aloja ei ole tarkistusmitattu. Talon kerrosala on saatu rakennuspiirustuksista ja asuintilojen pinta-ala on arvioitu kerrosalaan verraten, joten pinta-alat voivat poiketa oleellisesti nykymääräysten mukaan mitattavista pinta-aloista. |
| Asuinkerrosten määrä | 2 |
| Rakennusvuosi | 1940 |
| Käyttöönottovuosi | 1940 |
| Vapautuminen | Muu ehto: 2-3 kk / sopimuksen mukaan |
Hinta ja kustannukset
| Myyntihinta | 645 000 € |
|---|---|
| Velaton hinta | 645 000 € |
| Muut maksut | Tietoja kiinteistöverosta: 1545 e. Lisätietoja vastikkeista: Jätehuolto 115,90 e/ 3 kk. |
Asunnon lisätiedot
| Sauna | Oma sauna |
|---|---|
| Muuta kauppaan kuuluvaa | Lisätietoja sisältyvistä varusteista: ilmalämpöpumppu, kaapistot, lämminvesivaraaja, verhotangot |
| Tehdyt remontit | 1989 tehty laajennus, jonka muutokset on kuvattu kuntoraportissa. Raportissa haastatteluosassa kuvattu myös myöhempiä parannuksia ja huoltotöitä. |
| Asunnon kunto | Tyydyttävä |
| Lisätietoja kunnosta | Kuntotarkastus on tehty 1.8.2025, Susteran toimesta. Kattoikkunoiden huolto ja korjaus ollut suunnitteilla. |
| Energialuokka | Ei lain edellyttämää energiatodistusta |
| Lämmitysjärjestelmän kuvaus | Sähkö, puu, ilmalämpöpumppu ja sähköpatterilämmitys, uuni/takka, sähköinen lattialämmitys |
| Sähköliittymä siirtyy | Kyllä |
Asunnon tilat ja materiaalit
| Pääasiallinen rakennusmateriaali | Puu |
|---|---|
| Keittiön kuvaus | Liesi (sähköliesi), lattiat (muovimatto), jääkaappipakastin, astianpesukone, liesi ja liesituuletin |
| Kylpyhuoneen kuvaus | Lattialämmitys, suihku, pesukoneliitäntä, peili, kylpyamme ja WC-istuin, seinät (kaakeli), lattiat (laatta), Yläkerran kylpyhuone uusittu 2023. |
| WC-tilojen kuvaus | Lukumäärä: 1, seinät (Kaakeli), lattiat (Laatta) |
| Saunan kuvaus | Lattiat (laatta), Sähkökiuas, Ikkunallinen sauna ja kylpyhuone. |
| Olohuoneen kuvaus | Lattiat (laminaatti) |
| Makuuhuoneen kuvaus | Lukumäärä: 3, lattiat (muovimatto ja lauta) |
| Muut huoneet ja tilat | Ateljeehuone |
| Säilytystilojen kuvaus | Vinttikomero |
| Kattotyyppi | Harja |
| Katon kuvaus | Profiilipeltikate |
Asunnon tontti
| Tontin omistus | Oma |
|---|---|
| Kiinteistötunnus | 245-1-29-10 |
| Tontin tyyppi | Tasamaatontti |
| Tontin pinta-ala | 2 764 m² |
| Tie perille | Ei |
| Lisätietoja tontista | Hienolle puutarhatontille asemakaava sallii rakennettavan omakotitaloja, paritaloja tai rivitaloja tonttitehokkuuden e = 0,3 mukaisesti. Tontille on laadittu suunnitelmia rakentamiselle joko tontin jakamalla, hallinnanjakosopimuksella tai asunto-oy perustamalla. |
| Tehokkuusluku | 0.3 |
| Kaavoitustiedot | AOR 13, omakotitalojen, rivitalojen sekä muiden kytkettyjen rakennusten korttelialue. |
| Kaavoitustilanne | Asemakaava |
| Muut rakennukset | Autotalli ja saunarakennus, varasto. Talon eteisen lattiassa luukku kellaritilaan n. (120 cm korkea), jossa mm. vesimittari. Vanha saunarakennus ollut varastokäytössä. Samoin vanha toinen varasto. Autotalli (sähköpatteri) ja verstastila. |


