Rantatie 10, Sievi (Villenjärvi)

145 000 € 144.5 m² 3mh+oh+k+2vh+wc+ph+s+tkh+varasto
Myyntihinta 145 000 €
Asuinpinta-ala 144.5 m²
Huoneita 4
Rakennusvuosi 1994
Tyyppi Omakotitalo
Kaupunki Sievi
Kaupunginosa Villenjärvi

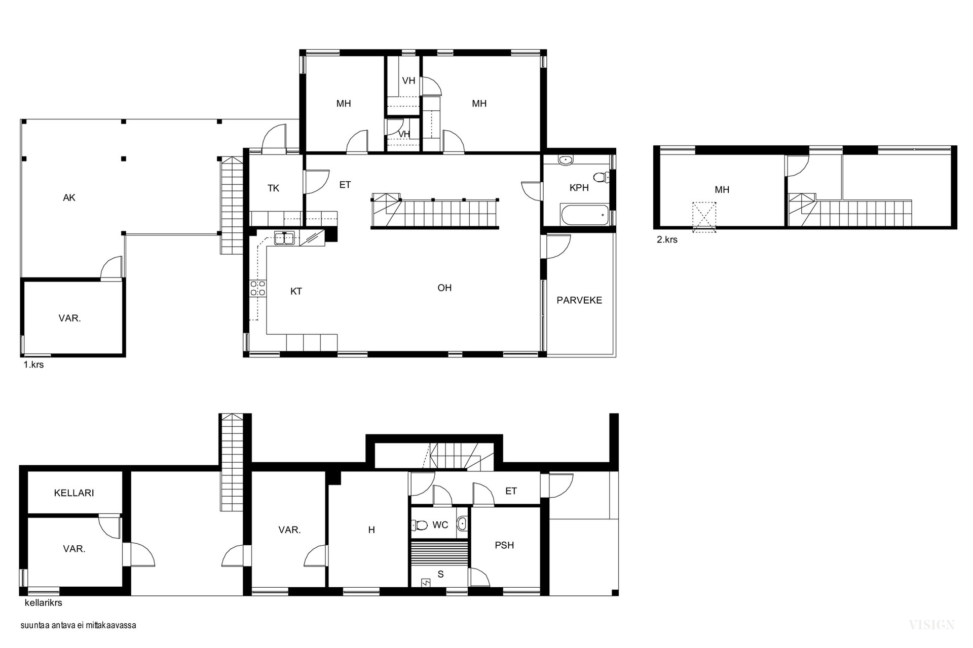
Tyylikäs omakotitalo Sievin Villenjärvellä tarjoaa rauhallista asumista luonnon läheisyydessä. Vuonna 1994 valmistunut talo on hyvässä kunnossa ja sen tilat jakautuvat kolmeen kerrokseen.

Kodin sydän on avara olohuone, josta avautuvat hienot näkymät Villenjärvelle. Keskikerroksesta löytyy lisäksi keittiö, kaksi makuuhuonetta joissa molemmissa oma vaatehuone, sekä wc kodinhoitotilalla. Kolmas makuuhuone sijaitsee yläkerrassa.

Kellarikerroksessa sijaitsee sauna, pesuhuone wc, takkahuone ja tekninen tila / varasto.

Oma tontti joka rajautuu talon ja järven välissä olevaan puistoalueeseen. Tämä koti on täydellinen valinta perheelle, joka etsii tilavaa ja viihtyisää kotia kauniissa ympäristössä. Tartu tilaisuuteen ja tee tästä talosta unelmiesi koti!

Tilaa ilmainen arviokäynti​

Asunnonvaihto kannattaa aloittaa nykyisen asunnon hinnan arvioinnilla. Näin saat raamit uusille unelmillesi.​

Tilaa ilmainen arviokäynti​

Asunnon perustiedot

Kotiavain 80456136
Osoite Rantatie 10, 85410 Sievi
Tyyppi Omakotitalo
Huoneistoselitelmä 3mh+oh+k+2vh+wc+ph+s+tkh+varasto
Huoneet 4
Asuintilojen pinta-ala 144.5 m²
Muiden tilojen pinta-ala 0 m²
Kokonaispinta-ala 144.5 m²
Lisätietoja pinta-alasta Huoneistoala 144,5 m², Kerrosala 163 m². Pinta-alaa ei ole tarkistusmitattu. Edellä mainittu pinta-ala saattaa tämän ikäisessä kohteessa poiketa olennaisestikin huoneiston nykyisten mittaustapojen ja standardien mukaan laskettavasta pinta-alasta.
Asuinkerrosten määrä 3
Rakennusvuosi 1994
Käyttöönottovuosi 1994
Vapautuminen Sopimuksen mukaan

Hinta ja kustannukset

Myyntihinta 145 000 €
Velaton hinta 145 000 €
Muut maksut Varainsiirtovero 3%, sähkö ja vesi kulutuksen mukaan, jätehuolto, vakuutukset, kaupanvahvistajan palkkio 138€, lainhuudatuksesta aiheutuvat kustannukset. Sähkönkulutus: 2025 tammi-syyskuu: 15 616 kWh 2024: 19 805 kWh 2023: 19 598 kWh
Kiinteistövero 405,44 € / vuosi
Sähkölämmityksen kulutus 19805

Asunnon lisätiedot

Sauna Oma sauna
Asunnon kunto Hyvä
Energialuokka Ei lain edellyttämää energiatodistusta
Lämmitysjärjestelmän kuvaus Sähkö, ilmalämpöpumppu, puu ja leivinuuni ja takka
Tulisija Takka ja keittiössä leivinuuni ja alakerran takkahuoneessa puolivaraava takka.
Sähköliittymä siirtyy Kyllä

Asunnon tilat ja materiaalit

Pääasiallinen rakennusmateriaali Betoni ja puu
Rakennusmateriaalien kuvaus Betoniperustus, puurunko, lautaverhous.
Keittiön kuvaus Liesi (Induktioliesi), työtasot (laminaatti ja kivi), seinät (tapetti), lattiat (parketti), erillisuuni (uusittu 2024), liesi (induktioliesi uusittu 2024), jääkaappi ja erillinen pakastin
Kylpyhuoneen kuvaus Suihku, lattialämmitys ja pesukoneliitäntä, seinät (kaakeli), lattiat (laatta)
WC-tilojen kuvaus Lukumäärä: 2, Pesukoneliitäntä (keskikerroksen wc), lattiakaivo (keskikerroksen wc), WC-istuin, lattialämmitys, pesuallas ja peili, seinät (Maali), lattiat (Laatta)
Saunan kuvaus Seinät (puu), lattiat (laatta), Sähkökiuas
Kodinhoitohuoneen kuvaus Pesukoneliitäntä, lattiat (laatta), seinät (maali), Kodinhoitohuone keskikerroksen wc:n yhteydessä.
Olohuoneen kuvaus Seinät (tapetti), lattiat (parketti)
Makuuhuoneen kuvaus Lukumäärä: 3, seinät (maali ja tapetti), lattiat (parketti)
Säilytystilojen kuvaus Kaksi vaatehuonetta, kellarikerroksessa lämmin varasto, autokatoksen päädyssä kaksi varastoa ja kellari.
Kattomateriaalin kuvaus Olohuone ja eteinen ja yläkerran makuuhuone mdf-paneeli. Keskikerroksen makuuhuoneissa roiskemaalattu levykatto, kellarikerroksessa puupaneeli.
Kattotyyppi Pulpettikatto
Katon kuvaus Pelti

Asunnon tontti

Tontin omistus Oma
Kiinteistötunnus 746-402-50-11
Tontin tyyppi Rinnetontti
Tontin pinta-ala 1 288 m²
Tie perille Kyllä
Rakennusoikeuden pinta-ala 260
Kaavoitustilanne Asemakaava ja yleiskaava
Muut rakennukset Autokatos ja liiteri. Autokatos ja kaksi varastoa talon yhteydessä, liiteri takapihalla.

Muut lisätiedot

Pihan kuvaus Tasainen takapiha rajoittuu Villenjärven ja talon välissä olevaan puistoalueeseen.
081ede90-4b93-4cf9-bc77-dca9c738f67b

Asla Ohtamaa

Kiinteistönvälittäjä, LKV, LVV, KiLAT Kaupanvahvistaja Kalajoki, Nivala, Ylivieska 0406310256
Kenttä on validointitarkoituksiin ja tulee jättää koskemattomaksi.
Lähettämällä yhteydenottopyynnön hyväksyt tietojesi käsittelyn tietosuojaselosteessa esitellyllä tavalla.
Kiinnostuitko?

Ota yhteyttä välittäjään

Tilaa ilmainen arviokäynti​

Asunnonvaihto kannattaa aloittaa nykyisen asunnon hinnan arvioinnilla. Näin saat raamit uusille unelmillesi.​

Tilaa ilmainen arviokäynti​