Unique – kallionäkymä kuin taideteos. Tervetuloa kotiin, jossa arki on luksusta.
Tämä vuonna 2018 valmistunut paritaloasunto Loutin rauhallisella alueella hurmaa yhdistämällä ajattoman tyylin, laadun ja modernin talotekniikan. Maalämpö takaa energiatehokkuuden ja miellyttävän asumismukavuuden ympäri vuoden.
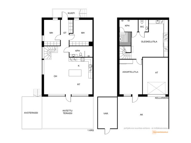
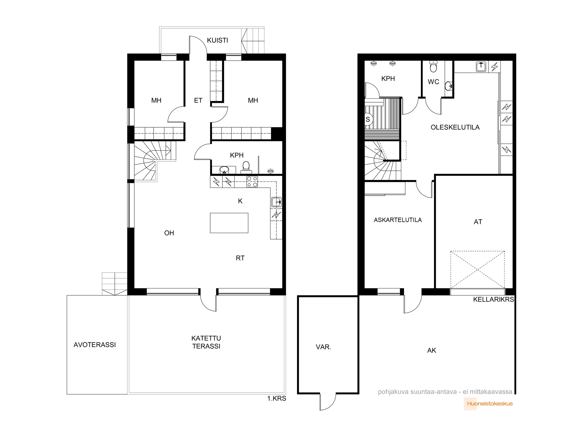
Yläkerrassa sijaitsevat valoisa ja korkeakattoinen olohuone, tyylikäs avokeittiö sekä viihtyisä ruokailutila, jotka muodostavat kodin sydämen. Suuret lasiliukuovet avaavat tilan vaikuttavalle, 39,5 m²:n lasitetulle eteläterassille, jonka jatkeena on 12,5 m² avoterassi – täydellinen paikka rentoutua ja nauttia upeasta kallionäkymästä.
Yläkerrassa on myös kaksi tilavaa makuuhuonetta runsaine säilytystiloineen sekä tyylikäs kylpyhuone/wc, jossa käytännöllisyys ja esteettisyys kulkevat käsi kädessä.
Alakerta jatkaa kodin korkeaa laatutasoa. Keittiöllä varustettu oleskelutila sopii erinomaisesti vieraiden majoittamiseen tai vaikka kotiteatteriksi. Kodinhoito- ja tekninen tila on tyylikkäästi sijoitettu liukuovien taakse.
Tunnelmallinen sauna ja kylpyhuone jatkavat kalliofiilistä, ja lisäksi löytyy erillinen wc sekä monikäyttöinen askarteluhuone, joka toimii vaivatta lisämakuuhuoneena, vierashuoneena tai työtilana.
Kodin kruunaa 23,5 m²:n lämmin autotalli sekä leveä autokatos, jossa on tilaa useammallekin autolle.
Sijainti on erinomainen: päiväkodit, koulut ja bussiyhteys löytyvät kävelyetäisyydeltä, ja Saunakallion sekä Järvenpään juna-asemat tarjoavat sujuvat yhteydet pääkaupunkiseudulle. Alueen luonnonläheisyys ja liikuntamahdollisuudet tekevät tästä kodista täydellisen paikan nauttia arjesta – kaikki keskustan palvelut ovat vain kilometrin päässä.
Tervetuloa tutustumaan – tämä koti on yhdistelmä laatua, rauhaa ja arjen luksusta.
Tilaa ilmainen arviokäynti
Asunnonvaihto kannattaa aloittaa nykyisen asunnon hinnan arvioinnilla. Näin saat raamit uusille unelmillesi.
Asunnon perustiedot
| Kotiavain | 80463257 |
|---|---|
| Osoite | Murtokatu 18, 04400 Järvenpää |
| Tyyppi | Paritalo |
| Omistusmuoto | Oma |
| Huoneistoselitelmä | 3-4 h, avok, kph/wc, askartelu/mh/työhuone, monitoimihuone/khh, s, kph, wc, lasitettu terassi, avoterassi, ulkovälinevar., autotalli, autokatos |
| Huoneet | 5 |
| Asuintilojen pinta-ala | 139.5 m² |
| Kokonaispinta-ala | 165.5 m² |
| Lisätietoja pinta-alasta | Yhtiöjärjestyksen ja isännöitsijäntodistuksen mukaan huoneiston pinta-ala on 123 m². Ilmoitettu asuinpinta-ala 139,5 m² sisältää 16,5 m² askartelutilan (askartelu/mh/työhuone). Yhtiöjärjestyksen mukaan huoneiston pinta-ala on 123 m². Huoneistoihin kuuluu pinta-alaltaan sisältymättömänä lämmin varastotila, tekninen tila ja autotalli, suuruudeltaan huoneistoissa 42,5 m². Ilmoitettu muiden tilojen pinta-ala 26 m² ei sisällä askartelutilaa 16,5 m². Isännöitsijäntodistuksen mukaan muut osakashallintaan kuuluvat tilat: lämmin varastotila, tekninen tila ja autotalli, yhteensä 42,5 m². Tähän huoneistoon kuuluu lisäksi omalla kunnossapitovastuulla kylmä varasto 12,5 m² ja avoterassi 12,5 m². . Tarkistusmitattu: Ei |
| Kerros | 1/2 |
| Rakennusvuosi | 2018 |
| Käyttöönottovuosi | 2018 |
| Vapautuminen | Muu ehto: 2 viikkoa kaupasta / sopimuksen mukaan |
Hinta ja kustannukset
| Myyntihinta | 545 000 € |
|---|---|
| Velaton hinta | 545 000 € |
| Neliöhinta | 3 906,81 €/m² |
| Hoitovastike | 246 € / kk |
| Yhtiövastike yhteensä | 246 € / kk |
| Muut maksut | Vesimaksu= huoneistomittarista luettu kulutus laskutetaan takautuvasti vesilaitoksen laskuun perustuen. Nykyisellä omistajalla vesilasku on ollut 650 €/vuosi (4 henkilöä). Nykyisellä omistajalla sähkön vuosikulutusarvio 12000 kWh. |
| Vesimaksu | Kulutuksen mukaan |
Asunnon lisätiedot
| Sauna | Oma sauna |
|---|---|
| Parveke | Ei |
| Parvekkeen kuvaus | Lasitettu |
| Parvekkeen ilmansuunta | Etelä |
| Muuta kauppaan kuuluvaa | Murtohälytysjärjestelmä (vaatii vain SIM-kortin) |
| Asunnon kunto | Hyvä |
| Lämmitysjärjestelmän kuvaus | Maalämpö |
| Sähköliittymä siirtyy | Ei |
| Lunastusoikeus yhtiöllä | Ei |
| Lunastusoikeus osakkailla | Ei |
Asunnon tilat ja materiaalit
| Pääasiallinen rakennusmateriaali | Puu ja betoni |
|---|---|
| Keittiön kuvaus | Lattiat (laatta), jääkaappipakastin (kylmävesiautomaatti vesisäiliöstä), erillisuuni (kiertoilma), liesituuletin (aktiivihiili), astianpesukone (integroitu v. 2020) ja liesitaso (induktio), Kaapistossa aamiaiskaappi. Kivitasot/kvartsi Saareke varustettu pistorasialla. |
| Kylpyhuoneen kuvaus | 2 suihkua (molemmissa sadetinsuihku ja käsisuihku) Valaistus: upotetut ledit himmentimillä Seinät: kivilaatta Hexagon lattialaatta Katto: lämpökäsitelty haapa Pyyhetangot |
| WC-tilojen kuvaus | Lukumäärä: 2, Alakerran wc: Lattia: kivilaatta Seinät: laatta Seinäwc-istuin ja bidee-suihku Allaskaapisto ja valopeili Yläkerran kph/wc: Lattia: laatta Seinät: laatta Sadetinsuihku ja käsisuihku Lasiseinä Seinäwc-istuin ja bidee-suihku Allaskaapisto ja valopeili |
| Saunan kuvaus | Savulasiseinä (avattavissa) ja savulasiovi Lauteet/katto/2 seinää: lämpökäsitelty haapa 1 seinä: kivilaatta Lauteet: puusepän valmistamat IKI tornikiuas (9 kw) |
| Olohuoneen kuvaus | Lattiat (laatta), Olohuoneesta käynti todella suurelle 39,5 m² lasitetulle terassille etelään. Lasitetulla terassilla takka, paljon pistorasioita. Lasitetulta terassilta käynti avoterassille (12,5 m²), jossa valmius ulkoporealtaalle (viemäröinti+virtapisteet) Olohuoneessa korkea vinokatto. Olohuoneen ikkunoista upea kallionäkymä länteen. Olohuone yhdistyy ruokailutilaan ja avokeittiöön. Olohuoneessa ilmalämpöpumppu (ulkoyksikkö alakerran ulkovälinevarastossa). Olohuoneen ikkunoissa sälekaihtimet. |
| Makuuhuoneen kuvaus | Lukumäärä: 2, lattiat (laatta), Yläkerran molemmissa makuuhuoneissa liukuovikaapisto. Sälekaihtimet ja liukuvat pimennysvekkiverhot. |
| Muut huoneet ja tilat | Yläkerran eteisen lattia: laatta Eteisessä peililiukuovikaapisto Portaikko: yläkerrassa lasikaide, valaistu käsijohde Alakerran monitoimihuone/khh: Lattia: kivilaatta Kotiteatterivalmius Keittiökaapisto, tiskiallas ja jääkaappi Liukuovikaapisto: Paikka pyykinpesukoneelle ja kuivausrummulle Kuivauskaappi Maalämpöpumppu (huollettu 2.9.2025) Säilytystilaa Alakerran askartelu/mh/työhuone: Lattia: kivilaatta Liukuovikaapisto (josta myös käynti portaiden alle varastotilaan) Ovi autokatokseen. |
| Lattiamateriaalien kuvaus | Kaikkialla vesikiertoinen lattialämmitys (maalämpö). |
| Kattotyyppi | Harjakatto |
| Katon kuvaus | Tiili |
Taloyhtiö
| Taloyhtiön nimi | As Oy Järvenpään Murtokatu 18 |
|---|---|
| Isännöitsijän yhteystiedot | Hallituksen puheenjohtaja Ari Muikku |
| Huolto | Asukkaat |
| Hissi | Ei |
| Taloyhtiön autopaikat | Autokatoksia: 8 kpl, Autotalleja: 4 kpl |
| Muuta taloyhtiöstä | Jäte- ja työkaluvarasto |
| Tehdyt remontit | 2022 Yläpihan asfaltointi / kukka-penkkien rakentaminen 2022 Yhtiön asuntojen terassien kaiteiden sekä yhtiön aitojen ja roskakatoksen huoltomaalaus 2022 Muurin sekä autokatosten huoltomaalaus 2022 Maalämpöpumpun huolto kaikissa asunnoissa, paisunta-astian vaihto A-huoneistoon, free@home -paneelin vaihto 2025 Maalämpöjärjestelmien vuosihuolto (2.10.2025) |
| Tulevat remontit | Kunnossapitotarveselvitys tehdään ensi vuoden (2026) alussa, esitys: Maalämpölaitteiston huolto 3v välein (tehty 2025 syksyllä) Ilmanvaihtokanavien nuohous ja säätö 5v välein (puhdistus ja suodattimien vaihto, tehdään 17.11.2025) Paloilmoitinlaitteiden tarkistukset kerran vuodessa Maalauksia ja korjauksia tarpeen mukaan Hallituksen puheenjohtaja tulee esittämään yhtiökokoukselle: Yhtiö varautuu ulkopuolisen asiantuntijan palkkaamiseen hyvissä ajoin ennen 10-vuotis tarkastusta. Tästä tulee noin 3-4k€ kustannus, joka katetaan yhtiön varoista. |
| Energialuokka | A2018. On lain edellyttämä energiatodistus. Voimassa: 05.12.2030 |
| Tontin pinta-ala | 1 432 m² |
| Tontin omistus | Oma |
| Kiinteistötunnus | 186-2-244-10 |
| Kaavoitustiedot | Järvenpään kaupunki puh. 09 2967 100 |
| Kaavoitustilanne | Asemakaava |
Palvelut ja liikenneyhteydet
| Palvelut | Järvenpään kattavat palvelut n. 1 km |
|---|---|
| Koulut | Harjulan ala-aste (Vihtakadun yksikkö) n. 750 m Kartanon ala-ja yläaste n. 1,4 km Järvenpään yhtenäiskoulu ala- ja yläaste n. 2 km Järvenpään lukio ja ammattikoulu n. 600 m |
| Liikenneyhteydet | Saunakallion junaseisakkeelle n. 1 km (junayhteys Helsingin ja Riihimäen suuntaan) Järvenpään juna-asema n. 1 km (junayhteys Helsingin, Riihimäen, Lahden suuntaan) Helsinkiin n. 30 min junamatka Linja-autopysäkki n. 400 m |






