Ali-Klaukantie 3, Klaukkala (Klaukkala)

126 500 € 80 m² 3h+avok+kph+vh+piha+patio
Myyntihinta 118 678,82 €
Asuinpinta-ala 80 m²
Huoneita 3
Rakennusvuosi 1987
Tyyppi Kerrostalo
Kaupunki Klaukkala
Kaupunginosa Klaukkala

Erinomainen iso kolmio omalla pihalla Klaukkalan keskustan palvelujen äärellä.
Valoisa ja tilava pohjaratkaisu.
Päätyhuoneisto, ikkunat kolmeen suuntaan.
Moderni avokeittiö olohuoneeseen päin.
Hoitovastike 415,81€/kk, sisältäen lämmityksen (kaukolämpö).
Yhtiöllä omat saunatilat ja pesutupa.

Rauhallinen sijainti.
Erinomaiset kulkuyhteydet kaikkialle.
Bussipysäkki n.100m.

Tämänkin kodin myy:
Sami Paulig
040 5332289

Autan myös sinun kotisi myynnissä!

Tilaa ilmainen arviokäynti​

Asunnonvaihto kannattaa aloittaa nykyisen asunnon hinnan arvioinnilla. Näin saat raamit uusille unelmillesi.​

Tilaa ilmainen arviokäynti​

Asunnon perustiedot

Kotiavain 80457900
Osoite Ali-Klaukantie 3, 01800 Klaukkala
Tyyppi Kerrostalo
Omistusmuoto Oma
Huoneistoselitelmä 3h+avok+kph+vh+piha+patio
Huoneet 3
Asuintilojen pinta-ala 80 m²
Kokonaispinta-ala 80 m²
Lisätietoja pinta-alasta Yhtiöjärjestyksen mukaan huoneisto on 3h + k.
Kerros 1/3
Rakennusvuosi 1987
Käyttöönottovuosi 1987
Vapautuminen Sopimuksen mukaan

Hinta ja kustannukset

Myyntihinta 118 678,82 €
Velkaosuus 7 821,18 €
Velaton hinta 126 500 €
Neliöhinta 1 581,25 €/m²
Hoitovastike 415,81 € / kk
Rahoitusvastike 131,35 € / kk
Yhtiövastike yhteensä 547,16 € / kk
Muut maksut Lisätietoja vastikkeista: Taloyhtiön laajakaista 100 M, Elisa , 12 euroa/kk
Vesimaksu 22 € / hlö

Asunnon lisätiedot

Sauna Taloyhtiössä sauna
Parveke Ei
Tietoliikenne Laajakaista. Taloyhtiön laajakaista on 100M. 12 euroa/kk.
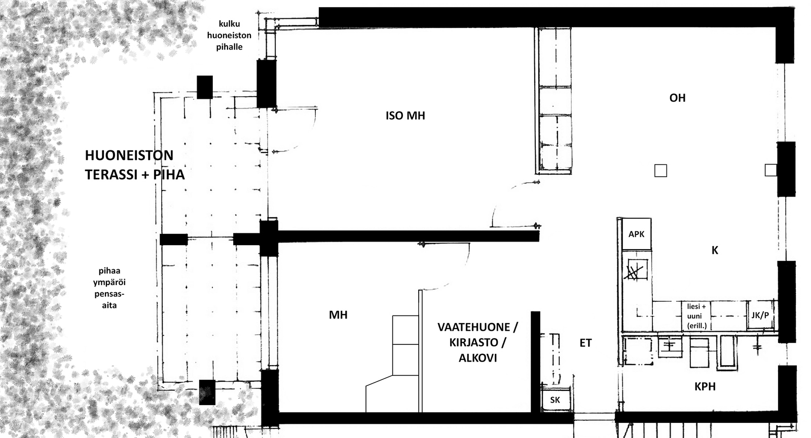
Tehdyt remontit Makuuhuoneen ja olohuoneen paikkaa vaihdettu. Makuuhuoneen seinä avattu. Vaatehuonetta laajennettu. Nämä eivät vaadi erillistä lupaa.
Asunnon kunto Tyydyttävä
Lisätietoja kunnosta Pikkumatto jäänyt pohjasta osin makuuhuoneen lattiaan kiinni ja eteisen lattiassa pienessä kohtaa normaaleja elämisen merkkejä kengistä.
Lämmitysjärjestelmän kuvaus Kaukolämpö
Sähköliittymä siirtyy Ei
Lunastusoikeus yhtiöllä Ei
Lunastusoikeus osakkailla Ei

Asunnon tilat ja materiaalit

Pääasiallinen rakennusmateriaali Betoni
Keittiön kuvaus Liesi (Keraaminen liesi ja erillisuuni), työtasot (laminaatti), seinät (maali), lattiat (laminaatti), astianpesukone, erillisuuni, jääkaappipakastin ja liesituuletin, Kivan kokoinen keittiö, jossa pinnat uusittu v, 2023. Keittiössä on hyvin kaappitilaa ja paikka ruokapöydälle. Keittiön seinä on avattu olohuoneen yhteyteen ja ovat nyt yhteistä avointa ja avaraa tilaa.
Kylpyhuoneen kuvaus Suihku, peilikaappi ja wc-istuin, seinät (kaakeli), lattiat (laatta), Pitkänomainen kylpyhuone, jossa suihkutila perällä. Sadesuihku ja käsisuihku. Kylpyhuoneessa on myös avattava pikkuikkuna. Kylpyhuone on remontoitu kauttaaltaan v. 2014 ja ja kylpyhuoneen ja keittiön vesiputket on samalla uusittu. Kylpyhuoneeseen on tehty samalla myös huoneistokohtaiset vesisulut ja hormiin on lisätty palosulut.
Saunan kuvaus Taloyhtiön sauna erillisessä piharakennuksessa, jossa myös pesutupa.
Olohuoneen kuvaus Seinät (lasikuitutapetti ja maali), lattiat (parketti), Olohuone on tässä huoneistossa keittiön vieressä. Olohuoneen ja keittiön välinen seinä on poistettu.
Makuuhuoneen kuvaus Lukumäärä: 2, seinät (lasikuitutapetti ja maali), lattiat (parketti), Kaksi makuuhuonetta. Isosta makuuhuoneesta kulkuyhteys omalle betonilaatoitetulle kahden parvekkeen alla olevalle patiolle ja pienelle pihalle. Isompi makuuhuone on toiminut aikaisemmin olohuoneena. Toisen makuuhuoneen yhteydessä on iso korotetulla lattialla oleva walk-in-closet, joka on vanhasta vaatehuoneesta laajennettu. Tila voi toimia hyvin myös makuualkovina, työhuoneena tai kirjastona.
Lattiamateriaalien kuvaus Parkettilattiat kaikkialla muualla paitsi kylpyhuoneessa ja keittiössä.
Kattotyyppi Harjakatto
Katon kuvaus Peltikate

Taloyhtiö

Taloyhtiön nimi Asunto Oy Vaskonmäki
Isännöitsijän yhteystiedot Mikko Lindbohm, Kuusitie 14, 01800, Klaukkala
Huolto Huoltoyhtiö
Hissi Ei
Taloyhtiöön kuuluu Huoneistokohtaiset verkkokomerot vintillä (ei lämmitetty tila). Erillinen rakennus, jossa yhtiön saunat ja pesutupa sekä pyörävarasto.
Taloyhtiön autopaikat Muut tiedot: 26 kpl Autopaikkaa, hallinta isännöitsijätoimiston kautta. Tilanne muuttuva, tarkistettava tilanteen mukaiseksi.
Muuta taloyhtiöstä Pesutupa, vinttikomero, urheiluvälinevarasto ja sauna
Tehdyt remontit 2018 Parvekelinjat kunnostettu 2017 Porrashuoneiden valaistus ja painonapit uusittu 2017 iLoq-lukitusjärjestelmä (rakennusten ulkokuorisuojaukset) 2015 Vesikatto kunnostettu 2015 Ilmastointijärjestelmä puhdistettu ja säädetty 2013-2014 KPH-tilojen saneeraus 2010 saunaosaston saneeraus 2006-2007 jätekatos rakennettu 2005 lukot sarjoitettu Abloy exec 2002 talon ulkomaalaus 2001 kaukolämpöputki uusittu 2001 lämmönsiirrin uusittu
Tulevat remontit Kunnossapitotarveselvitys v. 2024 (suuntaa-antava, ei sitova) 2024-2025 Vesikaton, vesikatteen pinnoitus tai katteen uusinta (valmistelu 2024 ja mahd. toteutus 2025) 2024 Lämmönsiirtimen uusinta 2026-2027 Porrashuoneiden maalaustyö
Energialuokka F2013. On lain edellyttämä energiatodistus. viimeinen voimassaolopäivä 1.12.2025
Tontin pinta-ala 3 306 m²
Tontin omistus Oma
Kaavoitustiedot Nurmijärven kunta.
Kaavoitustilanne Asemakaava

Palvelut ja liikenneyhteydet

Palvelut R-kioski 200 m, S-market 650 m ja 950 m, Citymarket Klaukkala 700 m, Tokmanni 600m, Lidl 950 m, Rusta 950 m, lähin ravintola 450 m, ym
Koulut Klaukkalan koulu (1-6 luokat) 1 km, Isoniitun koulu 1,1 km (1-9 luokat), Urheilupuiston koulu 1 km.
Päiväkodit Useampi päiväkoti Klaukkalassa muutaman kilometrin säteellä, lähin 650 m päässä.
bc907a69-95da-447f-be6c-7b283dd927ac

Sami Paulig

Asuntomyyjä Helsinki, Hyvinkää 0405332289
Kenttä on validointitarkoituksiin ja tulee jättää koskemattomaksi.
Lähettämällä yhteydenottopyynnön hyväksyt tietojesi käsittelyn tietosuojaselosteessa esitellyllä tavalla.
Kiinnostuitko?

Ota yhteyttä välittäjään

Tilaa ilmainen arviokäynti​

Asunnonvaihto kannattaa aloittaa nykyisen asunnon hinnan arvioinnilla. Näin saat raamit uusille unelmillesi.​

Tilaa ilmainen arviokäynti​