Tyylikäs loma-asunto golfkentän laidalla – upeat näkymät järvelle
Tervetuloa tutustumaan tähän vuonna 2006 valmistuneeseen, korkeatasoiseen vapaa-ajan asuntoon, joka sijaitsee ainutlaatuisella paikalla aivan golfkentän äärellä. Suuret ikkunat ja lasitettu terassi avautuvat kauniille järvimaisemalle – täällä luonto ja mukavuus kohtaavat harmonisesti.
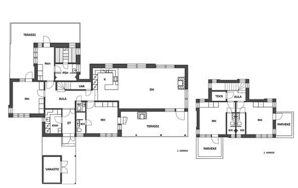
Tässä tilavassa lomakodissa on neljä makuuhuonetta, joiden yhteydessä on kylpyhuone suihkuineen – täydellinen ratkaisu niin omalle perheelle kuin vieraillekin. Avara olohuone yhdistyy luontevasti ruokailu- ja keittiötilaan, ja takkatulen äärellä viihtyy niin kesäiltaisin kuin talvipakkasillakin.
Saunaosastolta on käynti suoraan terassille, mikä tekee löylyhetkistä vieläkin nautinnollisempia. Lasitettu, tulisijalla varustettu terassi toimii tunnelmallisena oleskelutilana aikaisesta keväästä pitkälle syksyyn.
Asunto myydään kalustettuna, joten voit muuttaa sisään ja nauttia lomailusta heti. Oma 1 115 m² tontti tarjoaa rauhaa ja tilaa ympärillesi.
Tämä kohde tarjoaa loistavan mahdollisuuden laadukkaaseen lomailuun – ja miksei myös etätyöskentelyyn upeissa puitteissa.
Tilaa ilmainen arviokäynti
Asunnonvaihto kannattaa aloittaa nykyisen asunnon hinnan arvioinnilla. Näin saat raamit uusille unelmillesi.
Asunnon perustiedot
| Kotiavain | 80461832 |
|---|---|
| Osoite | Svingikuja 1, 73310 Tahkovuori |
| Tyyppi | Mökki tai huvila |
| Omistusmuoto | Oma |
| Huoneistoselitelmä | Oh, k, 4 mh, 4 kh, s, pkh, khh, 4 wc, varasto |
| Huoneet | 5 |
| Asuintilojen pinta-ala | 174 m² |
| Kokonaispinta-ala | 174 m² |
| Lisätietoja pinta-alasta | Pinta-alatieto ilmoitettu kerrosalana. |
| Kerros | 1-2/2 |
| Rakennusvuosi | 2006 |
| Käyttöönottovuosi | 2006 |
| Vapautuminen | Sopimuksen mukaan |
Hinta ja kustannukset
| Myyntihinta | 550 000 € |
|---|---|
| Velkaosuus | 0 € |
| Velaton hinta | 550 000 € |
| Neliöhinta | 3 160,92 €/m² |
| Hoitovastike | 661,20 € / kk |
| Yhtiövastike yhteensä | 661,20 € / kk |
| Vesimaksu | Kulutuksen mukaan |
Asunnon lisätiedot
| Sauna | Oma sauna |
|---|---|
| Parveke | Kyllä |
| Parvekkeen kuvaus | Lasitettu |
| Parvekkeen ilmansuunta | Etelä ja länsi |
| Muuta kauppaan kuuluvaa | Kalustus ja muu irtain erillisen ostotarjouksen mukaisesti., (Kauppaan ei kuulu: Mahdollinen henkilökohtainen irtain. ) |
| Asunnon kunto | Hyvä |
| Lämmitysjärjestelmän kuvaus | Sähkö ja ilmalämpöpumppu |
| Tulisija | Takka |
| Sähköliittymä siirtyy | Ei |
| Lunastusoikeus yhtiöllä | Ei |
| Lunastusoikeus osakkailla | Ei |
Asunnon tilat ja materiaalit
| Pääasiallinen rakennusmateriaali | Puu, kivi ja betoni |
|---|---|
| Keittiön kuvaus | Liesi (Induktioliesi), seinät (maali), lattiat (parketti), jääkaappipakastin, erillisuuni, liesituuletin, mikroaaltouuni ja astianpesukone |
| Kylpyhuoneen kuvaus | Suihku, suihkuseinä, pesukone, pesukoneliitäntä, kuivauskaappi, lattialämmitys ja peili, seinät (kaakeli), lattiat (laatta), Rakennuksessa on erillinen saunaosasto. Kolmen makuuhuoneen yhteydessä on oma kylpyhuone, jossa suihku ja wc. |
| WC-tilojen kuvaus | Lukumäärä: 3, Suihku, suihkuseinä, peilikaappi ja lattialämmitys, seinät (Kaakeli), lattiat (Laatta) |
| Saunan kuvaus | Seinät (puu), lattiat (laatta), Sähkökiuas |
| Olohuoneen kuvaus | Seinät (maali), lattiat (parketti), Olohuoneessa on takka. |
| Makuuhuoneen kuvaus | Lukumäärä: 4, seinät (maali), lattiat (parketti), Yläkerran makuuhuoneissa on parveke. |
| Muut huoneet ja tilat | Kiinteistössä on kaksi isoa terassia, joista toisessa on lasitus. Yläkerrassa on kaksi parveketta. |
| Säilytystilojen kuvaus | Ulkovarasto |
| Kattotyyppi | Harjakatto |
| Katon kuvaus | Tiili |
Taloyhtiö
| Taloyhtiön nimi | Kiinteistö Oy Tahkon Twinhills 212 |
|---|---|
| Isännöitsijän yhteystiedot | Retta Isännöinti Oy, Kuopio, Teemu Jääskeläinen, Asemakatu 38-40 A, 70110, Kuopio, 010 228 8200 |
| Huolto | Huoltoyhtiö |
| Hissi | Ei |
| Muuta taloyhtiöstä | Kaapeli-tv ja ulkovarasto |
| Energialuokka | Kohteella ei energiatodistuslain nojalla tarvitse olla energiatodistusta |
| Tontin pinta-ala | 1 115 m² |
| Tontin omistus | Oma |
| Kiinteistötunnus | 297-499-163-32 |
| Kaavoitustiedot | Www.kuopio.fi/kaavat, (017) 182 111 |
| Kaavoitustilanne | Asemakaava ja yleiskaava |
Palvelut ja liikenneyhteydet
| Palvelut | Rakennus sijaitsee golfkentän (Old Course) alueella, golfklubille n. 1 km, Piazza, ravintolat, kaupat n. 1 km, rinteille n. 1,7 km |
|---|---|
| Liikenneyhteydet | Alueella on maksuton Skibussi sesonkiaikoina, lähin pysäkki n. 300 m. |






