Etsitkö persoonallista ja tilavaa omakotitaloa, joka tarjoaa rauhaa ja tilaa isommallekin perheelle? Tämä hyvin pidetty vuonna 1980 valmistunut, pääosin kiviainesrakenteinen omakotitalo on nyt saatavilla alkuperäiseltä omistajalta. Talo sijaitsee suositulla ja arvostetulla Nuppolan pientalovaltaisella asuinalueella Kankaantaustan sydämessä.
Tässä kodissa yhdistyy modernin mukavuuden ja perinteisen charmikkuuden parhaat puolet. Neljä makuuhuonetta tarjoavat tilaa isommallekin perheelle, ja valoisa avara pohjaratkaisu luo mukautuvat mahdollisuudet juuri sinun tarpeisiisi. Oma, huolellisesti hoidettu 1355 m² tasamaatontti mahdollistaa vaikka mitä – lasten leikkitiloja tai vaikkapa puutarhan tuottamien nautintojen mahdollisuudet!
Ulkoilumaastot ovat lähettyvillä, sillä niin Ahveniston kuin Hattelmalan harjun suuntaan avautuvat upeat luontopolut ja ulkoilureitit. Täällä nautit luonnon läheisyydestä, mutta samalla pääset nopeasti kantakaupungin keskustan palveluiden äärelle – vain noin 2 km päässä.
Lisäksi omalle tontille on rakennettu erillinen auto-/varastorakennus, joka lisää asumismukavuutta ja säilytystilaa perheen tarpeisiin.
Taloon on tehty kuntotarkastus Susteran kuntotarkastajan toimesta maaliskuussa 2025.
Tämä talo on loistava valinta perheelle, joka arvostaa rauhallista asuinympäristöä, mutta ei halua tinkiä kaupungin läheisyydestä.
Tule ja ihastu tähän kodikkaaseen ja persoonalliseen omakotitaloon, joka on valmis tarjoamaan sinulle ja perheellesi monia onnellisia vuosia!
Tilaa ilmainen arviokäynti
Asunnonvaihto kannattaa aloittaa nykyisen asunnon hinnan arvioinnilla. Näin saat raamit uusille unelmillesi.
Asunnon perustiedot
| Kotiavain | 80460740 |
|---|---|
| Osoite | Taimistontie 4, 13100 Hämeenlinna |
| Tyyppi | Omakotitalo |
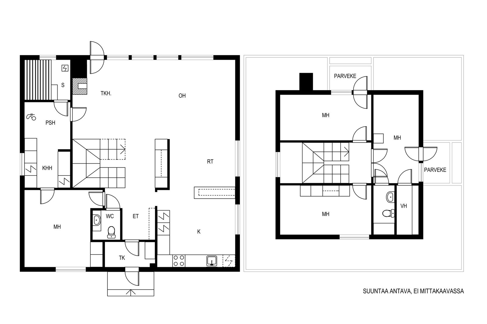
| Huoneistoselitelmä | 5h+k+rt+s+ph/khh+vh+2wc+2p |
| Huoneet | 5 |
| Asuintilojen pinta-ala | 144 m² |
| Muiden tilojen pinta-ala | 0 m² |
| Kokonaispinta-ala | 144 m² |
| Lisätietoja pinta-alasta | Rakennuslupapiirustuksen mukaan asuinrakennuksen kerrosala on 168,7 m2 ja autotalli-/varastorakennuksen 30,0 m2. Pinta-alatiedot on saatu rakennuslupapiirustuksista, eikä pinta-aloja ole tarkistusmitattu, joten ne saattavat poiketa olennaisestikin nykymääräysten mukaan mitattavista pinta-aloista.. Tarkistusmitattu: Ei |
| Asuinkerrosten määrä | 2 |
| Rakennusvuosi | 1980 |
| Käyttöönottovuosi | 1980 |
| Vapautuminen | Muu ehto: sopimuksen mukaan/2 kk |
Hinta ja kustannukset
| Myyntihinta | 208 000 € |
|---|---|
| Velaton hinta | 208 000 € |
| Muut maksut | Tietoja kiinteistöverosta: 728,45 e (2025). Hulevesimaksu 45,00 e/v Jätehuollon perusmaksu 36,48 e/v |
| Sähkölämmityksen kulutus | 20000 |
Asunnon lisätiedot
| Sauna | Oma sauna |
|---|---|
| Tietoliikenne | Valokuitu. Valoon kanssa on tehty sopimus, mutta verkkoa ei ole vielä rakennettu (arvio 2025). |
| Muuta kauppaan kuuluvaa | Ilmalämpöpumppu, istutukset, lämminvesivaraaja, parveke-/terassilasitus, pyykinkuivausteline, verhotangot, (Kauppaan ei kuulu: Irtaimisto) |
| Asunnon kunto | Hyvä |
| Energialuokka | E2018. On lain edellyttämä energiatodistus. Energiatodistus on laadittu Sustera Groupin Jussi Korhosen toimesta 20.03.2025. |
| Lämmitysjärjestelmän kuvaus | Sähkö, ilmalämpöpumppu ja uuni/takka |
| Tulisija | Varaava takka |
| Vesihuollon kuvaus | Käyttövesiputket (näkyvillä osin) muovia suojaputkessa |
| Viemäri | Viemäriputket (näkyvillä osin) muovia |
| Sähköliittymä siirtyy | Kyllä |
Asunnon tilat ja materiaalit
| Pääasiallinen rakennusmateriaali | Tiili ja siporex, muu |
|---|---|
| Rakennusmateriaalien kuvaus | Ulkoseinät ovat kiviainesrakenteisia ja tiiliverhoiltuja. |
| Keittiön kuvaus | Paneelikatto. Varustus: kylmiö (Huurre Festivo kotikylmiö), astianpesukone, liesituuletin / hormi. Liesi: erillisuuni, liesitaso (induktio). Työtasot: laminaatti. Lattia: laminaatti. |
| Kylpyhuoneen kuvaus | Paneelikatto, ikkuna Varustus: suihkuseinä, pesukoneliitäntä, lattialämmitys, suihku, kiinteät valaisimet, kylpyhuonekaapisto. Lattia: laatta. Seinät: kaakeli. |
| WC-tilojen kuvaus | Lukumäärä: 2, Styrox, paneelikatto, peili Varustus: peilikaappi, bidee-suihku. Lattia: laatta. Seinät: kaakeli, puu. |
| Saunan kuvaus | Seinät (puu), lattiat (laatta), Paneelikatto, Harvian hetivalmis -kiuas (uusittu 2024), ikkuna |
| Olohuoneen kuvaus | Seinät (tapetti), lattiat (parketti), Paneelikatto |
| Makuuhuoneen kuvaus | Lukumäärä: 4, seinät (tapetti ja puu), lattiat (muovimatto, parketti ja laminaatti), Paneelikatto |
| Säilytystilojen kuvaus | Vaatehuone ja ulkovarasto |
| Kattotyyppi | Aumakatto |
| Katon kuvaus | Tiilikate |
Asunnon tontti
| Tontin omistus | Oma |
|---|---|
| Kiinteistötunnus | 109-20-19-141 |
| Tontin tyyppi | Tasamaatontti |
| Tontin pinta-ala | 1 355 m² |
| Tie perille | Ei |
| Lisätietoja tontista | Nurmialuetta, etupiha asfaltoitu, omenapuita, vadelmapensaita, marjapensaita, perennoita ja koristepensaita, suklaakirsikkapuu, koristeomenapuita |
| Rakennusoikeuden pinta-ala | 281 |
| Käyttö- ja luovutusrajoitukset | Ei ole |
| Kaavoitustiedot | Hämeenlinnan kaupunki puh. 03 6211 |
| Kaavoitustilanne | Asemakaava |
| Muut rakennukset | Autotalli. Autotallin/varaston kerrosala 30 m2. Autotallissa sähköpatterilämmitys, lattiakaivo, voimavirtapistoke, vesipiste autotallirakennuksen ulkoseinässä. Varastossa sähköpatterilämmitys Lautarakenteinen pihavaja noin 13 m2 |
Palvelut ja liikenneyhteydet
| Palvelut | Ruokakauppa Jukolan S-Market, K-Market Hattelmalantiellä; posti K-Citymarket Hämeensaaressa; kirjasto Lukiokadulla; pääterveysasema Viipurintiellä |
|---|---|
| Koulut | Myllymäen alakoulu, Kaurialan yläkoulu, Lyseon lukio Punaportilla |
| Päiväkodit | Kankaantakana Karhunlukontiellä |
| Liikenneyhteydet | Hyvät |






