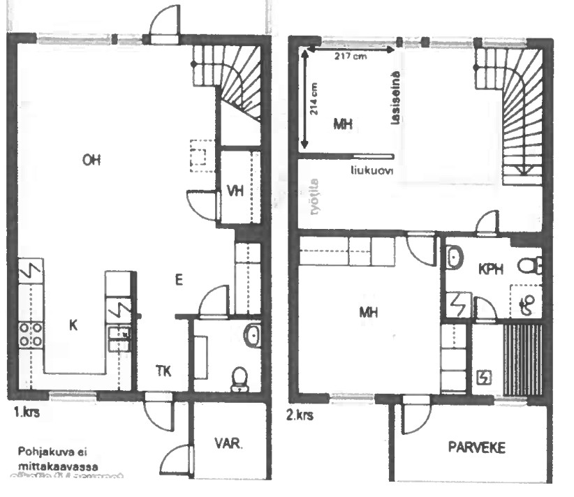
Tyylikäs ja valoisa korkealla huonekorkeudella suurin ikkunoin varustettu lämminhenkinen koti. Huoneisto on kauttaaltaan vuosina 2020-21 pintaremontoitu vaaleilla sävyillä ja mustalla avokeittiöllä. Yläkerrassa on hienon saunaosaston lisäksi lasiseinällä varustettu makuuhuone, josta on erotettu liukuovella erillinen aulan työtila. Alakerrassa on toinen wc ja vaatehuone. Suuremmasta makuuhuoneesta on käynti aamu-auringon puoleiselle parvekkeelle. Huoneistossa on runsaasti säilytystilaa.
Taloyhtiöllä on oma tontti.
Oma suojainen piha on ilta-auringon puolelle ja pihaa suojaavat Tuijat ja rima-aita.
Huoneistolle kuuluvia varastotiloja ovat sisäänkäynnin vieressä oleva kylmä varasto sekä viereisen rakennuksen lämpimän varastotilan huoneistokohtainen varasto ja pyörävarasto.
Mahdollisuus on myös sähköautojen lataukseen. Jokaiselle huoneistolle kuuluu yksi lämpöpistokkeella varustettu autopaikka yhtiön välittömässä hallinnassa olevalla piha-alueella.
Taloyhtiön sijainti on erinomainen Vantaanjoen rantareitin sekä Haltialan ja keskuspuiston ulkoilualueiden välittömässä läheisyydessä. Kulkuyhteydet ovat erinomaiset eri kulkuvälineillä. Helsingin keskustan ja lentokentän väliä ympäri vuorokauden liikennöi runkolinja, jonka pysäkille on vain parisataa metriä. Läheltä löytyvät useat päiväkodit, monipuoliset palvelut kaupoista kuntosaleihin.
Esittely sovittavissa joustavasti!
Tilaa ilmainen arviokäynti
Asunnonvaihto kannattaa aloittaa nykyisen asunnon hinnan arvioinnilla. Näin saat raamit uusille unelmillesi.
Asunnon perustiedot
| Kotiavain | 80474030 |
|---|---|
| Osoite | Sisukaurankaari 4, 01520 Vantaa |
| Tyyppi | Rivitalo |
| Omistusmuoto | Oma |
| Huoneistoselitelmä | 3h, avok, s, kh/wc, er. wc, vh |
| Huoneet | 3 |
| Asuintilojen pinta-ala | 79.5 m² |
| Kokonaispinta-ala | 79.5 m² |
| Lisätietoja pinta-alasta | Huoneiston pinta-alan lisäksi sisäänkäynnin vieressä oleva varasto. |
| Kerros | 1/2 |
| Rakennusvuosi | 2003 |
| Käyttöönottovuosi | 2003 |
| Vapautuminen | Sopimuksen mukaan |
Hinta ja kustannukset
| Myyntihinta | 367 000 € |
|---|---|
| Velaton hinta | 367 000 € |
| Neliöhinta | 4 616,35 €/m² |
| Hoitovastike | 397,50 € / kk |
| Yhtiövastike yhteensä | 397,50 € / kk |
| Muut maksut | Autopaikka, kylmä 15 e/kk. |
| Vesimaksu | 25 € / hlö / kk |
Asunnon lisätiedot
| Sauna | Oma sauna |
|---|---|
| Parveke | Kyllä |
| Parvekkeen ilmansuunta | Itä |
| Tehdyt remontit | 9.6.2025 (osakas ilmoittanut): Asennetaan takapihalle portti 8.3.2024 (osakas ilmoittanut): Makuuhuoneeseen rakennetaan kevyt väliseinä 18.9.2023 (osakas ilmoittanut): Rakennettu terasiin aita 2.12.2022 (osakas ilmoittanut): Kylpyhuone: Asennetaan suihkuseinä Vaatehuone: Asennetaan pistorasia Edellinen omistaja teettänyt: 3.2.2021 (osakas ilmoittanut): -keittiökalusteiden ja tasojen uusiminen, liesikuvun uusiminen, hanan uusiminen, uusitaan valaistusta ja pistorasioita, välitilan laatoituksen uusiminen levyksi |
| Asunnon kunto | Hyvä |
| Lämmitysjärjestelmän kuvaus | Kaukolämpö |
| Sähköliittymä siirtyy | Ei |
| Lunastusoikeus yhtiöllä | Ei |
| Lunastusoikeus osakkailla | Ei |
Asunnon tilat ja materiaalit
| Pääasiallinen rakennusmateriaali | Betoni ja puu |
|---|---|
| Keittiön kuvaus | Liesi (Induktioliesi), työtasot (laminaatti), lattiat (vinyyli), jääkaappipakastin, erillisuuni, liesi, liesituuletin ja astianpesukone, 2021 uusittu tyylikäs keittiö integroiduilla kodinkoneilla. |
| Kylpyhuoneen kuvaus | Peilikaappi (2021), allaskaappi (2021), wc-istuin, suihku, pesukoneliitäntä, suihkuseinä ja lattialämmitys, seinät (kaakeli), lattiat (laatta) |
| WC-tilojen kuvaus | Lukumäärä: 1, WC-istuin ja pesuallas, seinät (Kaakeli), lattiat (Laatta) |
| Saunan kuvaus | Seinät (paneeli), lattiat (laatta), Sähkökiuas |
| Olohuoneen kuvaus | Lattiat (vinyyli) |
| Makuuhuoneen kuvaus | Lukumäärä: 2, lattiat (vinyyli), Pienemmästä makuuhuoneesta on erotettu työtila liukuovella. Lisäksi lasiseinä korkean olohuoneen puolelle. Suuremmasta makuuhuoneesta käynti parvekkeelle. |
| Säilytystilojen kuvaus | Vaatehuone, kaapistot, kylmä ulkovarasto ja lämmin ulkovarasto, Huoneistokohtainen lämmin varasto vastapäisessä rakennuksessa. Lisäksi taloyhtiöllä yhteinen ulkovälinevarasto/pyörävarasto. |
| Kattotyyppi | Pulpettikatto |
| Katon kuvaus | Huopa |
Taloyhtiö
| Taloyhtiön nimi | Asunto Oy Vantaan Tammistonkaisla |
|---|---|
| Isännöitsijän yhteystiedot | SKH-Isännöinti Oy, Kulomäki Juha, Beckerintie 8, 00410, Helsinki, 09 530 8860, asiakaspalvelu@skh.fi |
| Huolto | Huoltoyhtiö |
| Hissi | Ei |
| Taloyhtiöön kuuluu | Koneell.poisto, liesikupu ohjaa poistokonetta. yhtiössä on myös rakennuskohtaiset radonimurit (6kpl) Antennijärjestelmä ja -tyyppi kaapeli-tv Kaapeliyhtiö dna Tietoliikenneyhteydet ethernet -kaapeliverkko Yhteinen laajakaista taloyhtiölaajakaista dna 10 m |
| Taloyhtiön autopaikat | Piha-autopaikkoja: 33 kpl |
| Muuta taloyhtiöstä | Kaapeli-tv |
| Tehdyt remontit | 2027-2028 Lämmönjakokeskuksen uusiminen: Hanke – Venttiilien,termostaattien ja linjasäätöventtilein uusiminen ja perussäätö 2025 Palovaroittimien hankinta: syksyllä 2024: Parvekkeiden kuntotutkimus: Tutkimuksen perusteella mahdolliset jatkotoimet. Kattojen korjaustoimia: Kuntotutkimuksessa havaittujen puutteiden korjaustoimet. Lahonneiden kattoluukkujen kansien uusiminen (uusitaan kaikki kannet). Muoviputkien poisto, läpivientien korjaus ja lämpömantteleiden asennus. Energiatodistus. Viemärin huuhtelu vuosittain: Asunnon E17 keittiön viemärilinjan huuhtelu. 2023: Viemärin huuhtelu vuosittain: Asunnon E17 keittiön viemärilinjan huuhtelu. Huippuimurien puhaltimia uusittu: Asunnot B4, B5 ja D13. 2022: Pihan päällysteiden paunaumien korjaus: Hallituksen omatoimihanke. 2021: Lukitus- ja turvallisuusratkaisujen uudistaminen. Pohja-, sekä tonttiviemäreiden huuhtelu ja kuvaus sekä salaojien kuvaus. 2020: Kiinteistön kuntoarvio + PTS: Sisältää katon kunnostustarpeen arvioimisen ja mahdolliset lämpökamerakuvaukset. Julkisivumaalausten takuukorjaukset (toteutus). 2019: Tontin sadevesikaivojen puhdistus. Salaojakaivojen vedenpinnan korkeuden tarkistus. Tontin sadevesikaivojen puhdistus. Leikkialueen kuntotarkastus ja korjaukset: Tarkastus 2018 ja korjaukset 2019. 2018: Latausmahdollisuus autopaikoille. Julkisivujen kunnostus ja maalaus. Lämpimän käyttöveden moottoriventtiilin uusiminen. OptiPower-järjestelmän asennus kaukolämpöjärjestelmään. 2017: Osittainen julkisivujen puuosien huoltomaalaus. 2016: IV-kanavien nuohous ja ilmamäärien säätö. 2015: Runkovesiputken korjaus. 2013: Kuntoarvio. Lämpö- ja viemärikuvaukset: NCC 10v. takuukorjauksia. 2012: Pysäköintialueen ja pihakäytävien asfaltointi. 2011: Ilmamäärien säätö. |
| Tulevat remontit | 5 / 2025: Viemärin huuhtelu vuosittain: Asunnon E17 ja E15 keittiöiden viemärilinjan huuhtelu. 2025: Asuntohaarojen (sis. keittiö) tontti-, pohja- ja pystyviemärien kuvaus ja huuhtelu. Kattojen korjaustoimia. Palovaroittimien hankinta. 2025-2026: Ikkunoiden huoltokierros. Ilmanvaihtokanavien puhdistus, mittaus, säätö sekä korvausilmasuodattimien vaihto. 2026: Viemärikorjaukset huoneistoissa E17 ja E15 (muut huoneistot kartoituksen perusteella). Aluevalaistuksen uusiminen. Sadevesiviemäreiden kuvaus ja huuhtelu sekä salaojien kuvaus (huuhtelu tarvittaessa). 2026-2027: Parvekkeiden korjaustoimet. 2027-2028: Lämmönjakokeskuksen uusiminen. Julkisivujen maalaustöitä. 2028: Parvekkeiden puuosien huoltokäsittely. 2029: Märkätilojen kosteuskartoitus. 2030: Kylpyhuoneiden saneeraus. 2031: Kuntoarvion päivitys. 2034: Energiatodistus. ei tiedossa: Varautuminen selvitettävissä oleviin viemärikorjauksiin. Ilmastonmuutoden aiheuttamia korjaustarpeita (esim. parvekkeiden-, terassien ovet, ikkunat). Ilmanvaihdon kunnostus, mm. huippuimureiden tarkastus ja vanhojen vaihto. Kattavampi kiinteistön korjausohjelma kustannusarvioineen saatavilla välittäjältä. Korjausohjelmassa esitetyt kustannusarviot voivat muuttua ja toteutuvat kustannukset olla arvioitua pienempiä tai suurempia. |
| Energialuokka | D2018. On lain edellyttämä energiatodistus. Voimassa: 10.05.2034 |
| Tontin pinta-ala | 6 673 m² |
| Tontin omistus | Oma |
| Kiinteistötunnus | 92-50-033-1 |
| Kaavoitustilanne | Asemakaava |






