Viehättävä omakotitalo Vantaan Kivistössä – lämminhenkinen koti rauhallisella sijainnilla
Tässä on tilaisuutesi hankkia oma koti suositulta ja perheystävälliseltä Kivistön alueelta!
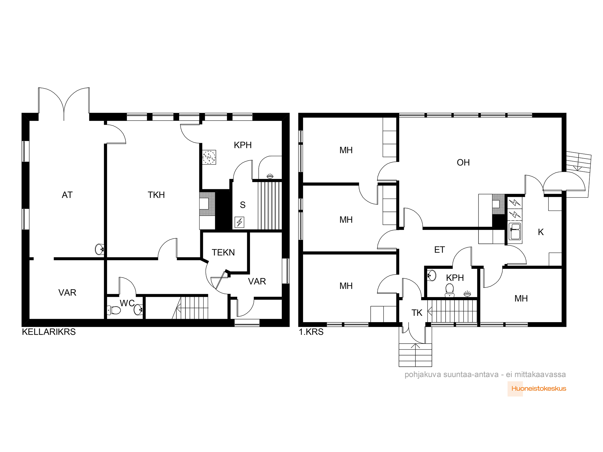
Peltikuja 5a:ssa sijaitseva, vuonna 1959 rakennettu omakotitalo hurmaa alkuperäisellä puurunkoisella charmillaan ja kodikkaalla tunnelmallaan.
93 m² asuinpinta-alaa kahdessa kerroksessa tarjoaa toimivat tilat arkeen ja juhlaan. Kolme makuuhuonetta antavat monipuolisia mahdollisuuksia sisustamiseen ja tilankäyttöön.
Valoisa olohuone on kodin sydän – tunnelmallinen takka luo lämpöä ja viihtyisyyttä, ja suuret ikkunat tuovat sisään runsaasti luonnonvaloa. Keittiö on käytännöllinen ja tyylikäs: puutasot, modernit kodinkoneet (jääkaappipakastin, keraaminen liesi) ja hyvä työtila tekevät ruoanlaitosta nautinnon.
Sauna tarjoaa rentouttavat löylyt arjen keskellä, ja kaksi erillistä WC:tä lisäävät asumisen mukavuutta. Ulkona tilava terassi kutsuu viettämään kesäpäiviä ja yhteisiä hetkiä perheen tai ystävien kanssa.
Alakerrasta löytyy käytännöllinen autotalli, joka tarjoaa kätevän säilytystilan autolle, harrastusvälineille tai työkaluille.
Kivistössä yhdistyvät luonnonrauha ja erinomaiset yhteydet – alueelta löytyvät koulut, päiväkodit, kaupat ja juna-asema vain lyhyen matkan päästä.
Tämä koti on täydellinen valinta perheelle, joka arvostaa kodikkuutta, toimivuutta ja rauhallista ympäristöä lähellä palveluita.
✨ Tartu tilaisuuteen ja tule ihastumaan – tämä koti on nähtävä paikan päällä!
Tilaa ilmainen arviokäynti
Asunnonvaihto kannattaa aloittaa nykyisen asunnon hinnan arvioinnilla. Näin saat raamit uusille unelmillesi.
Asunnon perustiedot
| Kotiavain | 80461629 |
|---|---|
| Osoite | Peltikuja 5a, 01750 Vantaa |
| Tyyppi | Omakotitalo |
| Huoneistoselitelmä | 4h,keittiö,kylpyhuone x 2 ,sauna , th, autotalli |
| Huoneet | 4 |
| Asuintilojen pinta-ala | 93 m² |
| Lisätietoja pinta-alasta | Vantaan kaupungin epävirallisen rakennus- ja huoneistorekisterioteen mukaan kerrosala on 110 m2, huoneistoala 143 m2 ja asuntotilaa 93 m2. Ei tarkistusmitattu. Pinta-alat saattavat tämän ikäisissä kohteissa (rekisteröity ennen 01.01.1992) poiketa olennaisestikin asuinrakennusten nykyisten mittaustapojen ja standardien (SFS 5139) mukaan laskettavasta asuintilojen pinta-alasta. Pinta-ala voi siis olla edellä mainittua pienempi tai suurempi.. Tarkistusmitattu: Ei |
| Asuinkerrosten määrä | 2 |
| Rakennusvuosi | 1959 |
| Käyttöönottovuosi | 1959 |
| Vapautuminen | Sopimuksen mukaan |
Hinta ja kustannukset
| Myyntihinta | 279 000 € |
|---|---|
| Velaton hinta | 279 000 € |
| Muut maksut | Sähkö 14000kwh/ vuodessa |
| Kiinteistövero | 660,09 € / vuosi |
| Puhtaanapito | 20 € / kk |
| Sähkölämmityksen kulutus | 14000 |
Asunnon lisätiedot
| Sauna | Oma sauna |
|---|---|
| Asunnon kunto | Tyydyttävä |
| Energialuokka | D2018. On lain edellyttämä energiatodistus. Voimassa: 16.04.2035 |
| Lämmitysjärjestelmän kuvaus | Vesikieroinentakka, ilmavesilämpöpumppu ja sähkö |
| Tulisija | Takka |
| Sähköliittymä siirtyy | Kyllä |
Asunnon tilat ja materiaalit
| Pääasiallinen rakennusmateriaali | Puu |
|---|---|
| Keittiön kuvaus | Liesi (Keraaminen liesi), työtasot (puu), seinät (kaakeli ja maali), jääkaappipakastin ja uuni |
| Kylpyhuoneen kuvaus | WC-istuin, suihku, suihkukaappi, lattialämmitys, peilikaappi ja bidee-suihku, seinät (kaakeli), lattiat (laatta) |
| WC-tilojen kuvaus | Lukumäärä: 2, WC-istuin, pesuallas ja pesukoneliitäntä, seinät (Kaakeli), lattiat (Laatta) |
| Saunan kuvaus | Seinät (puu), lattiat (laatta), Sähkökiuas |
| Olohuoneen kuvaus | Seinät (maali) |
| Makuuhuoneen kuvaus | Lukumäärä: 3, seinät (maali), Kolme makuuhuonetta ja yhdestä tehty ruokailuhuone |
| Kattotyyppi | Harjakatto |
| Katon kuvaus | Pelti |
Asunnon tontti
| Tontin omistus | Oma |
|---|---|
| Kiinteistötunnus | 92-23-102-12 |
| Tontin tyyppi | Tasamaatontti |
| Tontin pinta-ala | 1 005 m² |
| Tie perille | Kyllä |
| Rakennusoikeuden pinta-ala | 150.75 |
| Tehokkuusluku | 0.15 |
| Kaavoitustiedot | Rakennuskielto, tontti ei ole voimassa olevan tonttijaon mukainen tai tonttijaon muuttaminen on tarpeen. Mahdollisista kiinteistönmuodostamiskustannuksista vastaa ostaja. |
| Kaavoitustilanne | Asemakaava ja yleiskaava |






