Tilava omakotitalo, joka tarjoaa monipuoliset mahdollisuudet perheille tai tilaa kaipaaville.
Tämä vuonna 1962 rakennettu ja 2007 laajennettu puutalo seisoo omalla 1725 m² tontilla rauhallisessa Kirkonkylän asuinalueella. Kohteesta on lyhyt kävelymatka Sipoon Sydämen koulukeskukseen, mikä tekee siitä ihanteellisen lapsiperheille.
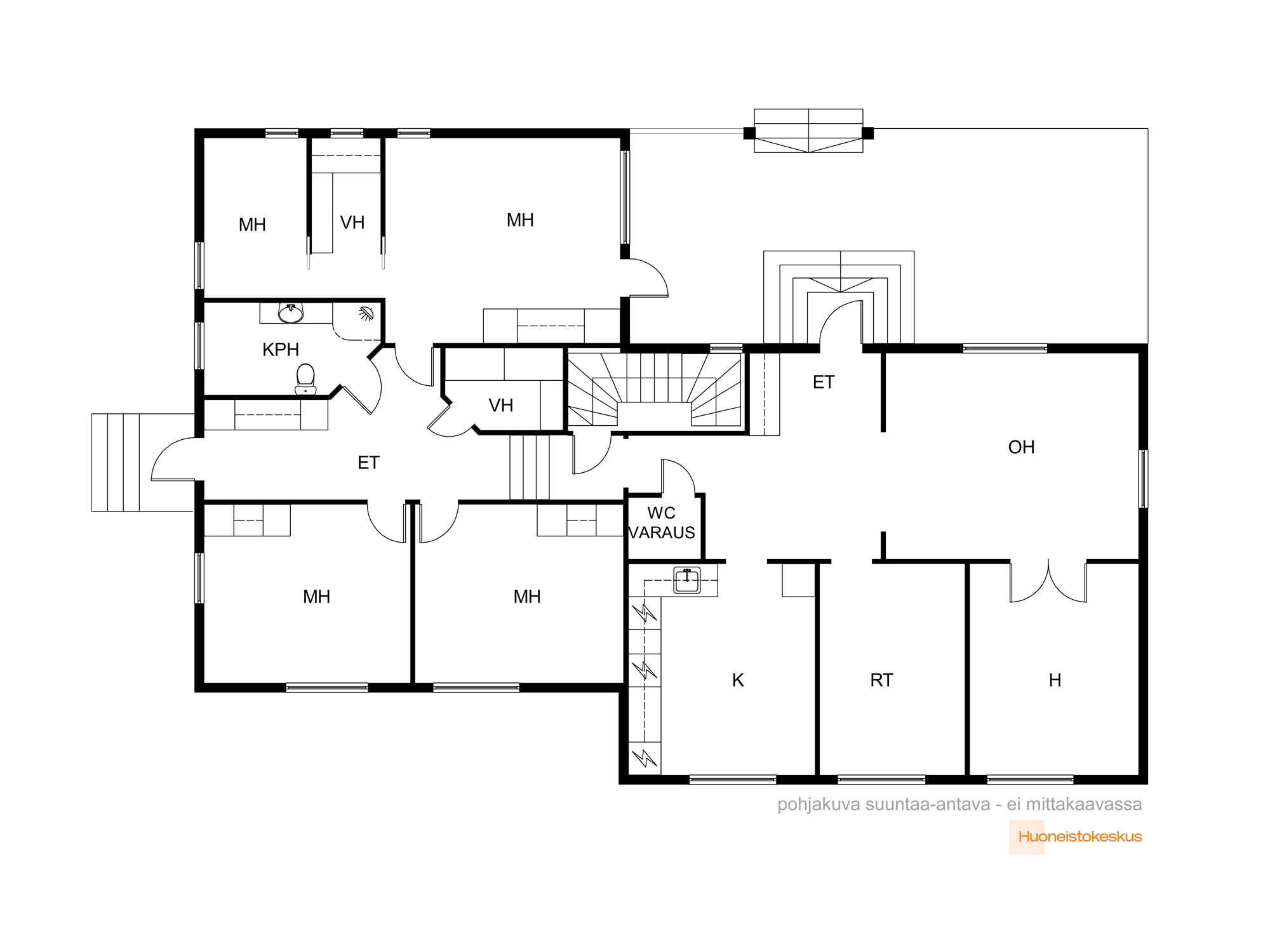
Talon asuinpinta-ala on 137 m² ja kokonaispinta-ala 234 m² mukaan lukien kellarikerros. Lämmitysjärjestelmänä toimii öljylämmitys ja ilmanvaihtona koneellinen tulo/meno ilmanvaihto lämmön talteenotolla.
Talon kunto on tyydyttävä ja se kaipaa varmastikin monen mielestä jonkin verran kunnostusta, mutta tarjoaa samalla mahdollisuuden tehdä siitä juuri oman näköinen koti.
Tontti on asemakaavassa merkitty kahdeksi rakennuspaikaksi joten tontista voi myös lohkoa toisen rakennuspaikan uudelle omakotitalolle.
Tartu tilaisuuteen ja tule tutustumaan tähän kodikkaaseen ja potentiaalia täynnä olevaan taloon, joka odottaa uusia asukkaita!
Tilaa ilmainen arviokäynti
Asunnonvaihto kannattaa aloittaa nykyisen asunnon hinnan arvioinnilla. Näin saat raamit uusille unelmillesi.
Asunnon perustiedot
| Kotiavain | 80465477 |
|---|---|
| Osoite | Papinpellontie 1, 04130 Sipoo |
| Tyyppi | Omakotitalo |
| Huoneistoselitelmä | 7h, k, psh/wc, wc + kellarikerros |
| Huoneet | 7 |
| Asuintilojen pinta-ala | 137 m² |
| Kokonaispinta-ala | 234 m² |
| Lisätietoja pinta-alasta | Talon ilmoitetet pinta-alat on saatu rakennuslupapiirustuksien pinta-alaerittelystä ja rakennus- ja huoneistorekisteriotteelta. (asuinpinta-ala 137 m2 ja kokonaispinta-ala asuinkerroksen kerrosala 158 m2 + kellarikerros 76 m2 = 234 m2). Pinta-aloja ei ole tarkistusmitattu. Pinta-alat saattavat tämän ikäisissä kohteissa (rekisteröity ennen 01.01.1992) poiketa olennaisestikin asuinrakennusten nykyisten mittaustapojen ja standardien (SFS 5139) mukaan laskettavasta asuintilojen pinta-alasta. Pinta-ala voi siis olla edellä mainittua pienempi tai suurempi.. Tarkistusmitattu: Ei |
| Asuinkerrosten määrä | 2 |
| Rakennusvuosi | 1962 |
| Käyttöönottovuosi | 1962 |
| Vapautuminen | Muu ehto: 1-2 kuukautta kaupanteosta |
Hinta ja kustannukset
| Myyntihinta | 180 000 € |
|---|---|
| Velaton hinta | 180 000 € |
| Muut maksut | Lämmitysöljyn kulutus ollut arviolta 3000 – 3500 litraa vuodessa, jäteastian (roskis) tyhjennys 21,14 e/kk (240 l astia, tyhjennys joka toinen viikko). Ilmoitettu kiinteistövero vuodelta 2025 |
| Kiinteistövero | 2 002,26 € / vuosi |
Asunnon lisätiedot
| Sauna | Ei |
|---|---|
| Asunnon kunto | Tyydyttävä |
| Energialuokka | Ei lain edellyttämää energiatodistusta |
| Lämmitysjärjestelmän kuvaus | Öljy ja Lämmönjako: Vanhalla puolella vesikiertopatterit ja uudella puolella vesikiertolattia, öljypannu vuodelta 1997, kellarissa 2+1500 l öljysäiliöta. |
| Vesihuollon kuvaus | Viemäriputki ulkona talolta kunnallistekniikan liitäntäkaivoon uusittu muoviputkella ja väliin asennettu tarkastuskaivo vuonna 2024. |
| Sähköliittymä siirtyy | Kyllä |
Asunnon tilat ja materiaalit
| Pääasiallinen rakennusmateriaali | Puu |
|---|---|
| Keittiön kuvaus | Sähköliesi, liesituuletin, astianpesukone, jääkaappi |
| Kylpyhuoneen kuvaus | WC-istuin, suihku, suihkukaappi, pesukoneliitäntä, peilikaappi, pesuallas ja allaskaappi, seinät (kaakeli), lattiat (laatta) |
| Saunan kuvaus | Kellaritilassa vanha sauna muutettu varastohuoneeksi |
| Lattiamateriaalien kuvaus | Vanhassa osassa lakattu ponttilauta ja uudessa osassa laminaatti ja korkki. |
| Kattotyyppi | Harjakatto |
| Katon kuvaus | Pelti |
Asunnon tontti
| Tontin omistus | Oma |
|---|---|
| Kiinteistötunnus | 753-416-38-13 |
| Tontin tyyppi | Tasamaatontti |
| Tontin pinta-ala | 1 725 m² |
| Tie perille | Kyllä |
| Lisätietoja tontista | Myytävä tontti on asemakaavassa merkitty kahdeksi rakennuspaikaksi., |
| Rakennusoikeuden pinta-ala | 431.25 |
| Tehokkuusluku | 0.25 |
| Kaavoitustiedot | AO (erillispientalojen korttelialue), Nikkilä D2, 24.8.1983, Sipoon kunta, 0923531/kaavoitus |
| Kaavoitustilanne | Asemakaava |
| Muut rakennukset | Liiteri. Pihalla erillinen vanha purkukuntoinen piharakennus. |




