Etelä-Haagan vehreässä ympäristössä, sijaitsee tämä valoisa ja kodikas kolmio.
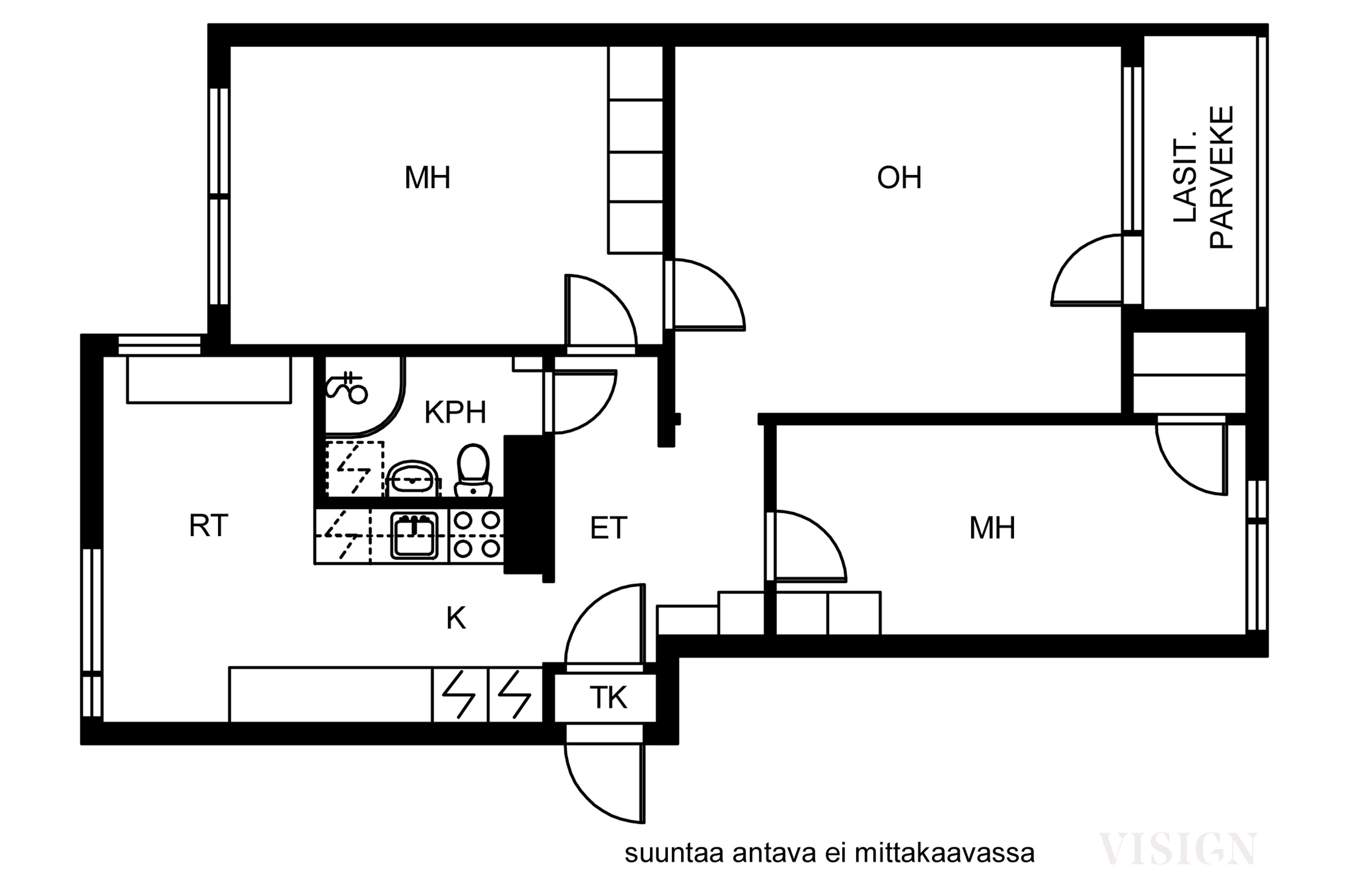
Lasitettu parveke on itään, ja sieltä avautuvat ilmavat näkymät puistoon ja Oskelantielle. Asunnossa on tyylikäs ja moderni keittiö, kaksi makuuhuonetta sekä putkiremontin yhteydessä vuonna 2014 uusittu kylpyhuone.
Asunto Oy Oskelantie 5 on pieni ja hyvin hoidettu yhtiö. Yhtiön kaunis piha rajoittuu puistoon, mikä luo rauhallisen ja vehreän ympäristön. Taloyhtiö on omalla tontilla.
Sijainti on erinomainen, sillä alueelta on hyvät liikenneyhteydet niin Espooseen, lentokentälle kuin Helsingin keskustaan. Huopalahden juna-asema on vain muutaman minuutin päässä, ja raitiovaunu sekä bussit kulkevat kätevästi lähistöltä. Lapsiperheille alueella on monipuoliset päiväkoti- ja koulupalvelut, kuten Haagan peruskoulun ja Gymnasiet Lärkanin sekä päivittäispalvelut.
Tartu tilaisuuteen ja tule tutustumaan tähän viihtyisään kotiin, joka yhdistää loistavan sijainnin ja mukavan asumisen.
Ole yhteydessä ja sovi yksityisnäyttö välittäjältä!
Tilaa ilmainen arviokäynti
Asunnonvaihto kannattaa aloittaa nykyisen asunnon hinnan arvioinnilla. Näin saat raamit uusille unelmillesi.
Asunnon perustiedot
| Kotiavain | 80477300 |
|---|---|
| Osoite | Oskelantie 5, 00320 Helsinki |
| Tyyppi | Kerrostalo |
| Omistusmuoto | Oma |
| Huoneistoselitelmä | 3 h, k, lasitettu parveke |
| Huoneet | 3 |
| Asuintilojen pinta-ala | 67 m² |
| Kokonaispinta-ala | 67 m² |
| Lisätietoja pinta-alasta | Ei tarkistusmitattu. Pinta-alat saattavat tämän ikäisissä kohteissa (yhtiö rekisteröity ennen 01.01.1992) poiketa olennaisestikin asuinrakennusten nykyisten mittaustapojen ja standardien (SFS 5139) mukaan laskettavasta asuintilojen pinta-alasta. Pinta-ala voi siis olla edellä mainittua pienempi tai suurempi.. Tarkistusmitattu: Ei |
| Kerros | 2/3 |
| Rakennusvuosi | 1955 |
| Käyttöönottovuosi | 1955 |
| Vapautuminen | Heti |
Hinta ja kustannukset
| Myyntihinta | 363 000 € |
|---|---|
| Velkaosuus | 0 € |
| Velaton hinta | 363 000 € |
| Neliöhinta | 5 417,91 €/m² |
| Hoitovastike | 368,50 € / kk |
| Yhtiövastike yhteensä | 368,50 € / kk |
| Muut maksut | Autotallivuokra 55 e/kk |
| Vesimaksu | 15 € / hlö |
Asunnon lisätiedot
| Sauna | Taloyhtiössä sauna |
|---|---|
| Parveke | Kyllä |
| Parvekkeen kuvaus | Lasitettu ja sisäänvedetty |
| Parvekkeen ilmansuunta | Itä |
| Tehdyt remontit | pintojen maalausta ja lattian käsittely muuton yhteydessä ja muutaman seinän uudelleen maalaus v. 2021 |
| Asunnon kunto | Tyydyttävä |
| Lämmitysjärjestelmän kuvaus | Kaukolämpö |
| Sähköliittymä siirtyy | Ei |
| Lunastusoikeus yhtiöllä | Ei |
| Lunastusoikeus osakkailla | Ei |
| Käyttö- ja luovutusrajoitukset | Asuinkäyttö |
Asunnon tilat ja materiaalit
| Pääasiallinen rakennusmateriaali | Betoni ja tiili |
|---|---|
| Keittiön kuvaus | Työtasot (betoni), seinät (maali), lattiat (muovimatto), jääkaappipakastin (integroitu), erillisuuni (Gorenje), astianpesukone (kapea malli, Electrolux), mikroaaltouuni (Siemens, integroitu), liesituuletin ja liesitaso, gorenje |
| Kylpyhuoneen kuvaus | WC-istuin, suihku, suihkuseinä, pesukoneliitäntä, lattialämmitys, peilikaappi ja allaskaappi, seinät (kaakeli), lattiat (laatta) |
| Olohuoneen kuvaus | Seinät (maali), lattiat (puulattia) |
| Makuuhuoneen kuvaus | Seinät (maali), lattiat (puulattiat) |
| Säilytystilojen kuvaus | Kaapistot ja kellarikomero |
| Kattotyyppi | Harjakatto |
| Katon kuvaus | Tiili |
Taloyhtiö
| Taloyhtiön nimi | Asunto Oy Oskelantie 5 |
|---|---|
| Isännöitsijän yhteystiedot | Kiinteistö-Tahkola Helsinki Oy, Nina Rantakivi, Keskustie 6, 01900, Nurmijärvi, 020 748 0201, nina.rantakivi@kiinteistotahkola.fi |
| Huolto | Huoltoyhtiö |
| Hissi | Ei |
| Taloyhtiön autopaikat | Autotalleja: 12 kpl |
| Muuta taloyhtiöstä | Kellarikomero, vinttikomero, pesutupa, urheiluvälinevarasto, väestönsuoja ja sauna |
| Tehdyt remontit | 2025 venttiilipesään vaihdettu kahteen suuntaan virtaavat venttiilit asunnoissa A2/4/6, viemäreiden huuhtelu ja kuvaus, autotallin peltilistan liittymän kunnostaminen, vesikaton puhdistus 2024 palovaroittimien uusiminen, autotallin ovien uusinta 2022 salaojien tarkastus ja painehuuhtelu, A-rappusten korjaus 2021 C17 asunnon kunnostus: asunnon remontointi vuokrauskuntoon, takaoven edustan nosto ja oven lyhennys 2010 luiskan viemäri selvitettävä ja ovi korjattava, saunan lattian korjaus, patteriventtiilien vaihto, DNA/säätötöitä 2019 katon puhdistaminen, kattoikkunoiden korjaus, pienkorjaukset ja osittainen kattoturvatuotteiden uusinta 2018 rappukäytävien maalaus ja sisäänmeno-ovien vaihto, katon kuntotarkastus 2017 ikkunatiivisteiden tarkastus ja vaihto, uusitaan taloyhtiön lukitus kokonaisuudessaan 2016 pihan puolen sadevesikourun uusiminen ja lappeen alaosan ruoteiden ja tiilien vaihto 2015 IV-hormien kokoojakammiot: lisäksi hankitaan piippujen päälle tuulella toimivat hormi-imurit 2014 lämmönjakokeskuksen uusiminen, asennettu vesimittarit, kaukolämpöpaketti uusittu, putkiremontti: viemärit sukitettu, käyttövesijohdot uusittu, kylpyhuoneet remontoitu, paitsi A 1 sähkön osalta uusittu ryhmäkeskukset, porrashuoneiden valaistus uusittu (liiketunnistimet), paitsi asunto A 1 2013 linjasaneerauksen toteutussuunnittelu 2012 leikkipaikan kunnostuksen arviointi, kylpyhuoneiden kartoitus, putkiremontin hankesuunnittelu ja asbestikartoitus 2010 jäteaitauksen rakentaminen 2009 vedenkäsittelylaitteiston asentaminen lämmitysjärjestelmän kiertoveteen (Bauer), pesulatilan kunnostus, LG-höyrypesukone, lastenvaunuvarasto ja työkaluvarasto, kiviaidan kunnostus 2008 piha-alueen kunnostus (kivituhka ja tasaus), C-päädyn sadevesiviemäröinti, vedenkäsittelylaitteiston asennus käyttöveteen (Bauer) 2007 julkisivujen ja parvekkeiden kunnostus, ilmanvaihtokanavien puhdistus 2006 ilmoitustaulut, kirjeluukut uusittu, ulko-oviin koodilukot ja antennijärjestelmän korjaus, putkiston kuntotutkimus, lukituksen uusinta 2005 kiinteistön kuntoarvio 2004 parvekkeiden kuntotutkimus 2002 parvekeovien ja ovien yläpuolisten lasien uusiminen 2001 ikkunoiden uusiminen 1999 parvekepieliseinien päädyt ja rappaukset 1996 parvekkeiden kunnostus ja maalaus 1995 kaukolämpölaitteiden uusinta ja patteriverkoston tasapainotus 1989 kiinteistön ikkunapuitteiden, autotallin ovien ja parvekkeiden korjaus ja maalaus |
| Tulevat remontit | 2026 sähkö-ja telejärjestelmien uusiminen, sokkeleiden kunnostus tarvittavilta osin 2027 ikkunoiden huoltokierros, vesipeltien sivutaitteiden tiivistäminen, pääsisäänkäyntien ja varastojen ovien kunnossapitokorjauksia, parvekeovien huoltokierros, kosteusrasitusjälkien korjaus yleistiloissa, taloyhtiön saunaosaston uudistaminen 2028 taloyhtiöpesutuvan uudistaminen 2030 vesikaton kuntoarvio, kuntoarvion päivitys |
| Energialuokka | Ei lain edellyttämää energiatodistusta |
| Tontin pinta-ala | 1 997 m² |
| Tontin omistus | Oma |
| Kiinteistötunnus | 09102900380002 |
| Kaavoitustiedot | Helsingin kaupunki p. 09 310 1691 |
| Kaavoitustilanne | Asemakaava |
Palvelut ja liikenneyhteydet
| Palvelut | K-Supermarket Haaga, Alepa, Palokaivon aukion palvelut, apteekki, kahviloita, kirjasto, terveyskeskus Pohjois-Haagassa |
|---|---|
| Koulut | Haagan peruskoulu, Gymnasiet Lärkan, SYK |
| Päiväkodit | Alueella suomen-, ruotsin-, ja englanninkieliset päiväkodit |
| Liikenneyhteydet | Juna Huopalahden asemalta Espooseen, lentokentälle ja keskustaan (n. 8 min.), raitiolinja 15, bussit 40 ja 41 |






