Oravasaarentie 319, Vaajakoski (Laajaranta)

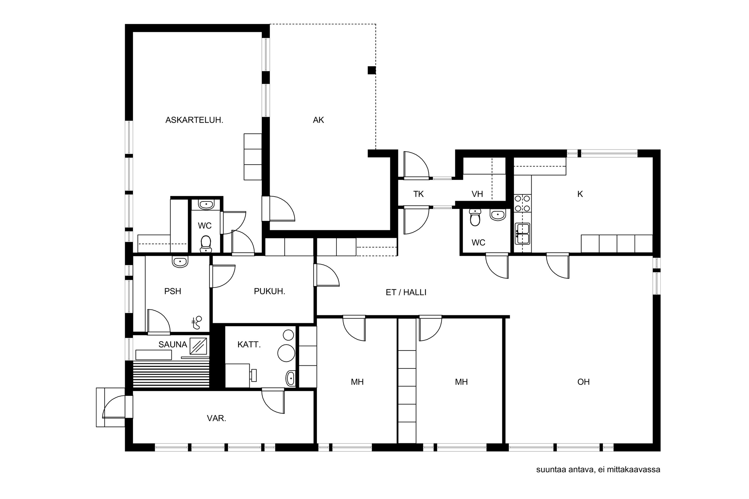
99 000 € 85 m² 3 h, k, takkah., ph, s, askartelutila, 2 wc, var.
Myyntihinta 99 000 €
Asuinpinta-ala 85 m²
Huoneita 3
Rakennusvuosi 1974
Tyyppi Omakotitalo
Kaupunki Vaajakoski
Kaupunginosa Laajaranta

Tämä viehättävä omakotitalo sijaitsee rauhallisella Laajarannan alueella, Jyväskylän Vaajakoskella. Talo tarjoaa tilavat ja viihtyisät puitteet perhe-elämälle tai vaikkapa pariskunnalle, joka arvostaa luonnonläheisyyttä ja omaa rauhaa. Talon pinta-ala on 85 m², ja se on rakennettu vuonna 1974. Kotiin kuuluu kaksi makuuhuonetta, avara olohuone, keittiö sekä takkahuone, joka luo lämpöä ja tunnelmaa. Lisäksi talo tarjoaa runsaasti aputiloja, sillä entiseen autotallitilan käyttötarkoitus on muutettu palvelemaan esim. isona työtilana omalla keittiönurkkauksella.

Talon lämmitysjärjestelmä on monipuolinen, sillä se toimii puulla ja öljyllä. Sauna on remontoitu hiljattain, ja sen lattia on uusittu vuonna 2023. Lisäksi tontilla on tilava piha-alue, joka tarjoaa mahdollisuuksia puutarhanhoitoon ja ulkoiluun. Lisäksi tontilla sijaitsee erillinen kylmä autotalli-/varastorakennus.

Vaajakosken palvelut ovat vain noin viiden kilometrin päässä, ja alueella on hyvät kulkuyhteydet. Tämä koti sijaitsee luonnonläheisessä ympäristössä, metsän ja maaseudun rauhassa, mutta kuitenkin lähellä kaupungin palveluita. Tartu tilaisuuteen ja tule tutustumaan tähän mahdollisuuksia tarjoavaan kotiin!

Tilaa ilmainen arviokäynti​

Asunnonvaihto kannattaa aloittaa nykyisen asunnon hinnan arvioinnilla. Näin saat raamit uusille unelmillesi.​

Tilaa ilmainen arviokäynti​

Asunnon perustiedot

Kotiavain 80459060
Osoite Oravasaarentie 319, 40800 Vaajakoski
Tyyppi Omakotitalo
Huoneistoselitelmä 3 h, k, takkah., ph, s, askartelutila, 2 wc, var.
Huoneet 3
Asuintilojen pinta-ala 85 m²
Muiden tilojen pinta-ala 59 m²
Kokonaispinta-ala 144 m²
Lisätietoja pinta-alasta Ei tarkistusmitattu. Pinta-alat saattavat tämän ikäisissä kohteissa (rekisteröity ennen 01.01.1992) poiketa olennaisestikin asuinrakennusten nykyisten mittaustapojen ja standardien (SFS 5139) mukaan laskettavasta asuintilojen pinta-alasta. Pinta-ala voi siis olla edellä mainittua pienempi tai suurempi.. Tarkistusmitattu: Ei
Asuinkerrosten määrä 1
Rakennusvuosi 1974
Käyttöönottovuosi 1974
Vapautuminen Sopimuksen mukaan

Hinta ja kustannukset

Myyntihinta 99 000 €
Velaton hinta 99 000 €
Muut maksut Tietoja kiinteistöverosta: 352,2. Lisätietoja vastikkeista: Tien auraus n. 150 €/vuosi, Jätevesi Alvan taksojen mukaan, puhdas vesi Oravasaaren vesiosuuskunnan taksojen mukaan.

Asunnon lisätiedot

Sauna Oma sauna
Muuta kauppaan kuuluvaa Lisätietoja sisältyvistä varusteista: istutukset, jätesäiliö, kaapistot, kiinteät valaisimet, pyykinkuivausteline, sälekaihtimet/rullaverhot, verhotangot
Tehdyt remontit 2001 vaatehuone poistettu 2002 liittyminen kunnan jätevesijärjestelmään 2014 käyttövesi- ja lämmitysputkisto uusittu 2015 katto uusittu 2003-2004 olohuone ja makuuhuoneet tapetoitu 2025 öljysäiliö tarkastettu 4.6.25 2003-2004 wc tilat laatoitettu ja lattia vaihdettu kevytparkettiin. Löylyhuoneen lattiakaivo poistettu ja laatoitettu uudelleen.
Asunnon kunto Tyydyttävä
Energialuokka F2018. On lain edellyttämä energiatodistus. Voimassa: 11.06.2035. E-luku:405
Lämmitysjärjestelmän kuvaus Puu, öljy, vesikiertoinen patterilämmitys, uuni/takka ja sähkö
Tulisija Takka
Vesihuollon kuvaus Oravasaaren vesiosuuskunta
Sähköliittymä siirtyy Kyllä

Asunnon tilat ja materiaalit

Pääasiallinen rakennusmateriaali Tiili ja puu
Keittiön kuvaus Liesi (Keraaminen liesi), työtasot (laminaatti), seinät (maali), lattiat (parketti), astianpesukone, erillinen pakastin, jääkaappi ja kiinteät valaisimet, liesituuletin / hormi
Kylpyhuoneen kuvaus Allaskaappi, peilikaappi, pesukoneliitäntä, suihku, wc-istuin ja kiinteät valaisimet, seinät (kaakeli ja puu), lattiat (laatta)
WC-tilojen kuvaus Bidee-suihku ja peilikaappi, seinät (Kaakeli), lattiat (Laatta)
Saunan kuvaus Seinät (kaakeli ja puu), lattiat (laatta), Puukiuas, Saunan lattia uusittu 2023 ja kaivo poistettu
Olohuoneen kuvaus Seinät (tapetti), lattiat (parketti)
Makuuhuoneen kuvaus Lukumäärä: 2, seinät (tapetti), lattiat (parketti)
Muut huoneet ja tilat Yksiö parketti lattia ja seinät maalattu
Kattotyyppi Loiva harja
Katon kuvaus Pelti

Asunnon tontti

Tontin omistus Oma
Kiinteistötunnus 179-409-8-551
Tontin tyyppi Tasamaatontti
Tontin pinta-ala 4 740 m²
Tie perille Kyllä
Kaavoitustiedot Jyväskylän kaupunki Palvelupiste Hannikainen
Kaavoitustilanne Yleiskaava
Muut rakennukset Autotalli ja aitta

Palvelut ja liikenneyhteydet

Palvelut Vaajakoskella n. 5 km

Muut lisätiedot

Ranta Ei rantaa
9156d7d6-bb91-46db-99c8-b30d0cbb4492

Jesse Leed

Myyntipäällikkö Jyväskylä 0407112110
Kenttä on validointitarkoituksiin ja tulee jättää koskemattomaksi.
Lähettämällä yhteydenottopyynnön hyväksyt tietojesi käsittelyn tietosuojaselosteessa esitellyllä tavalla.
Kiinnostuitko?

Ota yhteyttä välittäjään

Tilaa ilmainen arviokäynti​

Asunnonvaihto kannattaa aloittaa nykyisen asunnon hinnan arvioinnilla. Näin saat raamit uusille unelmillesi.​

Tilaa ilmainen arviokäynti​