Viehättävä ja tilava omakotitalo rauhallisella Pahaniemen alueella Turussa.
Tämä kodikas ja persoonallinen omakotitalo Turun arvostetulla Pahaniemen alueella tarjoaa runsaasti tilaa ja mukavuutta isommallekin perheelle. Alkujaan vuonna 1950 valmistunut Ruotsalaistalo on saanut toimivan ja tyylikkään laajennusosan vuonna 2004. Rauhallinen sijainti ja suuri vuokratontti luovat erinomaiset puitteet viihtyisälle asumiselle – täällä nautitaan niin kesäisistä grillijuhlista kuin rentouttavista kylpyhetkistä paljussa.
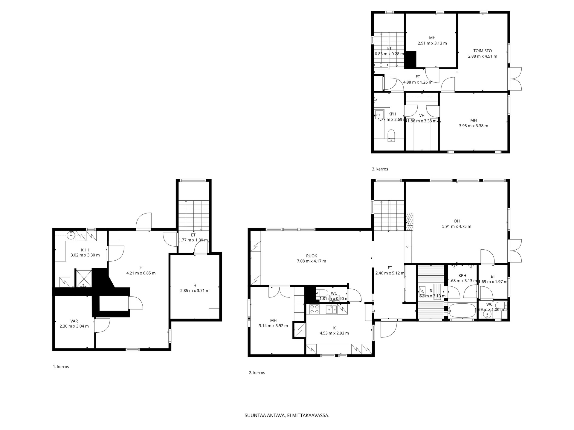
Talon kolmeen kerrokseen sijoittuvat monipuoliset ja avarat asuintilat. Käytössäsi on neljä makuuhuonetta, tilava ja valoisa olohuone sekä erillinen ruokailutila, jonka näyttävät viinikaapit viimeistelevät kokonaisuuden. Hyvin varustellussa keittiössä arjen sujuvuutta lisäävät erillinen pakastin, jääkaappipakastin sekä sekä induktio- että kaasuliesi.
Asumismukavuutta lisäävät kaksi kylpyhuonetta, joista löytyy sekä suihkut että kylpyamme. Saunassa voit rentoutua luonnonkivipinnoitetulla lattialla varustetussa tunnelmallisessa ympäristössä.
Lämmitysratkaisut ovat monipuoliset ja energiatehokkaat: sähkö-, puu- ja ilmalämpöpumppu täydentävät toisiaan, ja varaava takka tuo kotiin sekä lämpöä että tunnelmaa. Mekaaninen ilmanvaihto huolehtii raikkaasta sisäilmasta ympäri vuoden.
Pihapiirissä sijaitsevat autotalli ja varasto tarjoavat reilusti säilytystilaa. Pohjoiseen avautuva parveke sekä terassi kutsuvat nauttimaan ulkoilmasta ja rauhallisesta ympäristöstä. Läheinen bussipysäkki takaa sujuvat kulkuyhteydet Turun keskustaan ja muualle kaupunkiin.
Tartu tilaisuuteen ja tee tästä viihtyisästä talosta perheesi uusi koti!
Tilaa ilmainen arviokäynti
Asunnonvaihto kannattaa aloittaa nykyisen asunnon hinnan arvioinnilla. Näin saat raamit uusille unelmillesi.
Asunnon perustiedot
| Kotiavain | 80471655 |
|---|---|
| Osoite | Mälikkälänkatu 13, 20210 Turku |
| Tyyppi | Omakotitalo |
| Huoneistoselitelmä | 6h+k+s+kh |
| Huoneet | 6 |
| Asuintilojen pinta-ala | 209 m² |
| Muiden tilojen pinta-ala | 35 m² |
| Kokonaispinta-ala | 244 m² |
| Lisätietoja pinta-alasta | Ei tarkistusmitattu. Pinta-ala voi siis olla edellä mainittua pienempi tai suurempi. Pinta-alatiedot on saatu kaupungin/kunnan rakennusvalvonnasta / rakennuspiirustuksista / myyjältä, eikä niitä ole tarkistusmitattu, joten ne saattavat poiketa olennaisestikin nykymääräysten mukaan mitattavista pinta-aloista.. Tarkistusmitattu: Ei |
| Asuinkerrosten määrä | 3 |
| Rakennusvuosi | 2004 |
| Käyttöönottovuosi | 2004 |
| Vapautuminen | Sopimuksen mukaan |
Hinta ja kustannukset
| Myyntihinta | 327 000 € |
|---|---|
| Velaton hinta | 327 000 € |
| Kiinteistövero | 654,76 € / vuosi |
| Vesi- ja jätevesimaksu | 69 € / kk |
| Sähkölämmityksen keskimääräinen kokonaiskustannus | 190 € / kk |
| Sähkölämmityksen kulutus | 21900 |
Asunnon lisätiedot
| Sauna | Oma sauna |
|---|---|
| Muuta kauppaan kuuluvaa | Ruokailutilan astiakaapisto sisältäen kaksi (2) viinikaappia., (Kauppaan ei kuulu: Irtain (neuvoteltavissa)) |
| Tehdyt remontit | 1994 vanhapuolen remontti, V.1994-2001. Laajennusosa V. 2004. Vuosikohtaisia remontteja. |
| Asunnon kunto | Hyvä |
| Energialuokka | Ei lain edellyttämää energiatodistusta. tehdään kuntokartoituksen yhteydessä |
| Lämmitysjärjestelmän kuvaus | Sähkö, puu ja ilmalämpöpumppu |
| Tulisija | Varaava takka |
| Sähköliittymä siirtyy | Kyllä |
Asunnon tilat ja materiaalit
| Pääasiallinen rakennusmateriaali | Puu |
|---|---|
| Keittiön kuvaus | Liesi (Induktioliesi ja kaasuliesi), työtasot (puu ja corian komposiitti), seinät (maali), lattiat (laminaatti), erillinen pakastin, jääkaappipakastin, erillisuuni ja mikroaaltouuni |
| Kylpyhuoneen kuvaus | Suihku (2kpl) ja kylpyamme (teak runkoinen), seinät (kaakeli), lattiat (laatta) |
| WC-tilojen kuvaus | Lukumäärä: 3, WC-istuin, bidee-suihku, lattialämmitys, suihku ja peili, seinät (Kaakeli), lattiat (Laatta) |
| Saunan kuvaus | Seinät (puu), lattiat (luonnonkivi), Sähkökiuas, Luonnonkivi lattia pinnoitettu epoksilla. |
| Kodinhoitohuoneen kuvaus | Pesukoneliitäntä, pöytätaso, kurapiste, tila pesutornille, kuivauskaappi, kuivausrumpu, pesukone ja pyyhekuivain / seinäpatteri, lattiat (laatta), seinät (kaakeli) |
| Olohuoneen kuvaus | Seinät (tapetti), lattiat (massiivi mahonki lautalattia) |
| Makuuhuoneen kuvaus | Lukumäärä: 4, seinät (tapetti ja maali), lattiat (parketti) |
| Säilytystilojen kuvaus | Vaatehuone |
| Kattotyyppi | Harjakatto |
| Katon kuvaus | Pelti |
Asunnon tontti
| Tontin omistus | Vuokra |
|---|---|
| Tontin tyyppi | Tasamaatontti |
| Tontin pinta-ala | 1 299 m² |
| Tie perille | Ei |
| Lisätietoja rakennusoikeudesta | Rakennusoikeutta ei ole jäljellä. |
| Kaavoitustiedot | Turun kaupunki p. 02 330 000 |
| Kaavoitustilanne | Asemakaava |
| Muut rakennukset | Autotalli / varasto rkv. 1994 |
| Tontin vuokra | 2 242,10 € |
| Tontin vuokrasopimus päättyy | 31.12.2050 |
| Tontin vuokranantaja | Turun kaupunki |
Palvelut ja liikenneyhteydet
| Palvelut | Lähimmät ruokakaupat ja laajemmat palvelut löytyvät Länsikeskuksesta (n. 1,5–2 km päässä), jossa on mm. Prisma, Citymarket, apteekki ja useita erikoisliikkeitä. Myös kauppakeskus Mylly Raisiossa on vain lyhyen ajomatkan päässä. Terveyspalvelut: Alue kuuluu Varsinais-Suomen hyvinvointialueen (Varha) piiriin. Perheoikeudelliset palvelut sijaitsevat Kunnallissairaalantiellä. Liikunta: Impivaaran monipuoliset urheilumahdollisuudet (uimahalli, jäähalli, jalkapallokentät ja hiihtoladut) ovat aivan kivenheiton päässä. |
|---|---|
| Koulut | Aunelan koulu (Opintie 1) Alakoulu (vuosiluokat 1–6), Mikaelin koulu (Koulukatu 8), Puolalan koulu (Kauppiaskatu 14) |
| Päiväkodit | Tallimäenkentän päiväkoti (Malminkatu 1) Pilke-päiväkoti Vienola (Vienolanrinne 2) – Musiikkipainotteinen yksityinen päiväkoti. Päiväkoti Touhula Nättinummi (Schalininkatu 4) – Sijaitsee lyhyen matkan päässä Nättinummessa. Päiväkoti Satunummi (Eskonkatu 10) |
Muut lisätiedot
| Muut kaupan kannalta merkittävät tiedot | Koti, jossa takapiha jatkuu loputtomiin. Tontti rajautuu suoraan rauhoittavaan metsäalueeseen, tarjoten täydellistä yksityisyyttä ja ikuista vihreyttä. Täällä voit nauttia aamukahvista linnunlaulun keskellä ja seurata vuodenaikojen vaihtumista suoraan omalta terassiltasi. Luonto on täällä enemmän kuin naapuri se on osa kotiasi. |
|---|---|
| Pihan kuvaus | Grillikatos ja palju sis. kauppaan |






