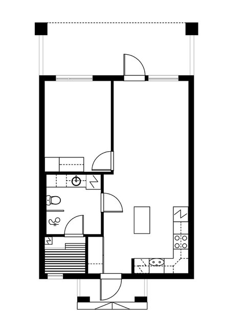
Utrasta Pielisjoen tuntumasta nyt tarjolla siististi pidetty saunallinen kaksio. Eteistilan yhteydessä säilytystila, vierestä avautuu keittiö riittävin laskutiloin, erillinen saareke helpottamassa arjen askareita. Olohuoneesta käynti takapihan terassille ja makuuhuoneesta löydät kiintokaapistot kodintekstiileille ja vaatteille.
Kylpyhuone varustettu kaakelipinnoin, tämän tilan yhteydessä kodinhoitohuonetila pesukoneliitäntöine sekä käynti ikkunalliseen saunaan. Lattiamateriaalina asuintiloissa parkettialattiat. Tästä muuttovalmis koti pariskunnalle, yksinmuuttavalle tai miksei myös asuntosijoittajalle taloyhtiölainan vähennysoikeuden kautta.
Asunto heti vapaana uuden omistajan käyttöön ja huoneistolle kuuluu autokatospaikka (2) yhtiöjärjestyksen mukaisesti.
Asunto Oy Joensuun Empunkulma on rakennettu v.2016 omalle tontille Joensuun Utraan. Asuntoja taloyhtiössä on yhteensä 12 kappaletta ja lämmitysmuotona toimii kaukolämpö.
Varaa oma esittelysi ja tehdään Sinunkin asuntounelmistasi totta!
Tilaa ilmainen arviokäynti
Asunnonvaihto kannattaa aloittaa nykyisen asunnon hinnan arvioinnilla. Näin saat raamit uusille unelmillesi.
Asunnon perustiedot
| Kotiavain | 80476710 |
|---|---|
| Osoite | Lasikuja 8, 80170 Joensuu |
| Tyyppi | Rivitalo |
| Omistusmuoto | Oma |
| Huoneistoselitelmä | 2h, k, kph, s |
| Huoneet | 2 |
| Asuintilojen pinta-ala | 45 m² |
| Kokonaispinta-ala | 45 m² |
| Lisätietoja pinta-alasta | Yhtiöjärjestyksen mukainen ja isännöitsijäntodistuksen mukainen. Tarkistusmitattu: Ei |
| Kerros | 1/1 |
| Rakennusvuosi | 2016 |
| Käyttöönottovuosi | 2016 |
| Vapautuminen | Heti |
Hinta ja kustannukset
| Myyntihinta | 68 933,90 € |
|---|---|
| Velkaosuus | 48 066,10 € |
| Velaton hinta | 117 000 € |
| Neliöhinta | 2 600 €/m² |
| Hoitovastike | 209,25 € / kk |
| Rahoitusvastike | 299,54 € / kk |
| Yhtiövastike yhteensä | 508,79 € / kk |
| Vesimaksu | Vesimaksuennakko 20 € / kk / hlö (Ennakko, tasaus kulutuksen mukaan) |
Asunnon lisätiedot
| Sauna | Oma sauna |
|---|---|
| Parveke | Ei |
| Tehdyt remontit | – Silikonien vaihto keittiön ja kylpyhuoneen saumojen osalta 12/2025 – Seinäpintojen uusiminen olohuoneesta12/2025 – Etuoven paikkamaalaus sekä karmien maalaus 12/2025 – Saunan lauteiden hionta ja käsittely 12/2025 – Kylpyhuoneen lattiasaumojen tehopesu 12/2025 – Terassin oven sälekaihtimien uusiminen 12/2025 |
| Asunnon kunto | Hyvä |
| Lämmitysjärjestelmän kuvaus | Kaukolämpö ja lattialämmitys |
| Sähköliittymä siirtyy | Ei |
| Lunastusoikeus yhtiöllä | Ei |
| Lunastusoikeus osakkailla | Ei |
Asunnon tilat ja materiaalit
| Pääasiallinen rakennusmateriaali | Tiili |
|---|---|
| Keittiön kuvaus | Liesi (Keraaminen liesi), työtasot (laminaatti), seinät (maali), lattiat (parketti), jääkaappipakastin, uuni, astianpesukone, liesituuletin ja erillisuuni |
| Kylpyhuoneen kuvaus | WC-istuin, bidee-suihku, lattialämmitys, peilikaappi, pesukoneliitäntä, pesuallas ja allaskaappi, seinät (kaakeli), lattiat (laatta), Kodinhoitohuonetila kylpyhuoneen yhteydessä. |
| Saunan kuvaus | Seinät (puu), lattiat (laatta), Sähkökiuas |
| Olohuoneen kuvaus | Seinät (maali), lattiat (parketti) |
| Makuuhuoneen kuvaus | Lukumäärä: 1, seinät (maali ja tapetti), lattiat (parketti), Makuuhuoneessa kiintokaapistot. |
| Muut huoneet ja tilat | Eteisessä liukuovellinen peilikaapisto |
| Säilytystilojen kuvaus | Kaapistot ja lämmin ulkovarasto |
| Kattotyyppi | Harjakatto |
| Katon kuvaus | Pelti |
Taloyhtiö
| Taloyhtiön nimi | Asunto Oy Joensuun Empunkulma |
|---|---|
| Isännöitsijän yhteystiedot | Kontu Oy, Heikki Tiitinen, Kauppakaari 1, 80100, Joensuu, 010 830 4126, heikki.tiitinen@kontuoy.fi |
| Huolto | Huoltoyhtiö |
| Hissi | Ei |
| Taloyhtiön autopaikat | Autokatoksia: 12 kpl |
| Muuta taloyhtiöstä | Kaapeli-tv ja urheiluvälinevarasto |
| Tehdyt remontit | – Rakennukset uudehkoja (valmistuneet v. 2016), tiedossa ei laajempia korjaustarpeita. – 2022 Vesikaton yläpuolisten Iv-kanavien ja – hormien pellitysten rajakohtien tiivistykset. – 2021 Ulkoalueiden puurakenteiden huoltomaalaukset ja – käsittelyt. |
| Tulevat remontit | Kunnossapitotarveselvitys 2025-2029 – Piha-alueen asfaltointia suunniteltu yhteistyössä naapuritaloyhtiön kanssa. Toteutusajankohta ei vielä tiedossa (hanke lykätty toistaiseksi tulevaisuuteen). – Yhtiön ulkoalueiden ja kulkuväylien kunnostusten / parannusten suunnittelu ja toteutus 2025-2029. – IV-kanavien nuohous/ puhdistus (suositus n. 10 vuoden välein) 2025-2026 – Vesikaton toimintakunnon jatkuva seuranta ja akuutit korjaukset. 2025-2029 – Asuinhuoneistojen seinärakenteiden halkeamien korjaustavan selvittäminen taloyhtiön parhaan edun mukaisesti 2025-2029. |
| Energialuokka | Ei lain edellyttämää energiatodistusta. Vanhentunut 31.7.2025 (C2013) |
| Tontin pinta-ala | 2 551 m² |
| Tontin omistus | Oma |
| Kiinteistötunnus | 167-12-156-2 |
| Kaavoitustiedot | Joensuun kaupunki |
| Kaavoitustilanne | Asemakaava |






